- 菁菁的朋友家是我们做的纯设计,她和父母找到我们,特别礼貌友善的一家人,接触下来,决定委托我们进行全案的设计落地,我们拿到户型图和设计需求表时,其实是很兴奋的,对于单身小户型的旧房改造,内容和可推敲性挺多的,我们摩拳擦掌最后优化讨论出了三稿平面方案,和业主沟通后综合几个方案的优缺点,根据菁菁的生活习惯最终以这一稿来进行落地。
- 居住诉求:自住与短租两方面的需求,首要为自住,希望在现有条件下尽可能的扩大空间感,需要足够的储物收纳空间,希望充分考虑采光条件和灯光设计上让居室比较敞亮,不喜太昏暗,窗前空间想有效利用,卧室需要有书柜,卫生间想要干湿分区,有收纳空间,装饰和家具摆放不显得杂乱拥挤,有一定留白。
- 生活习惯:周末和睡前有阅读的习惯,作息时间朝九晚五,比较规律,在家一般看书打游戏Netflix。
基装:51000
主材:47000
定制衣柜、橱柜:40000
软装:12000

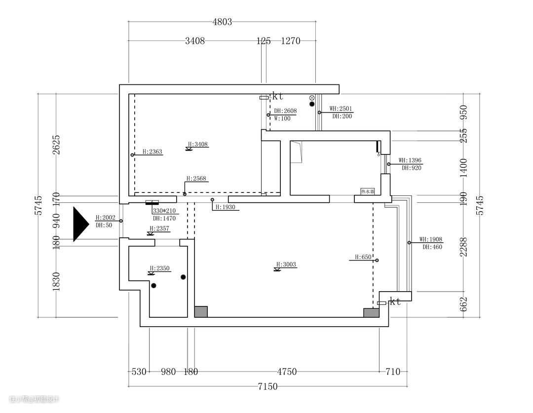
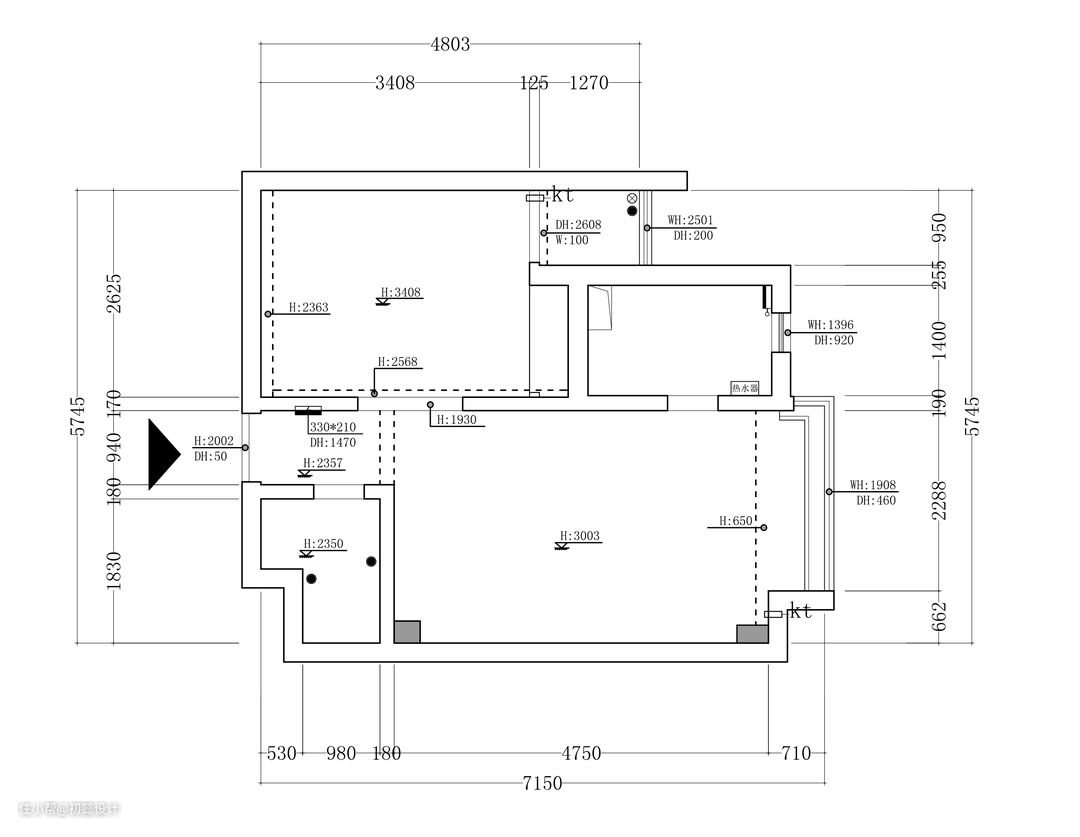
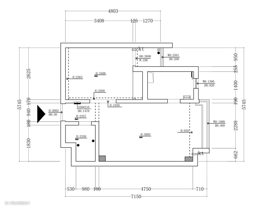
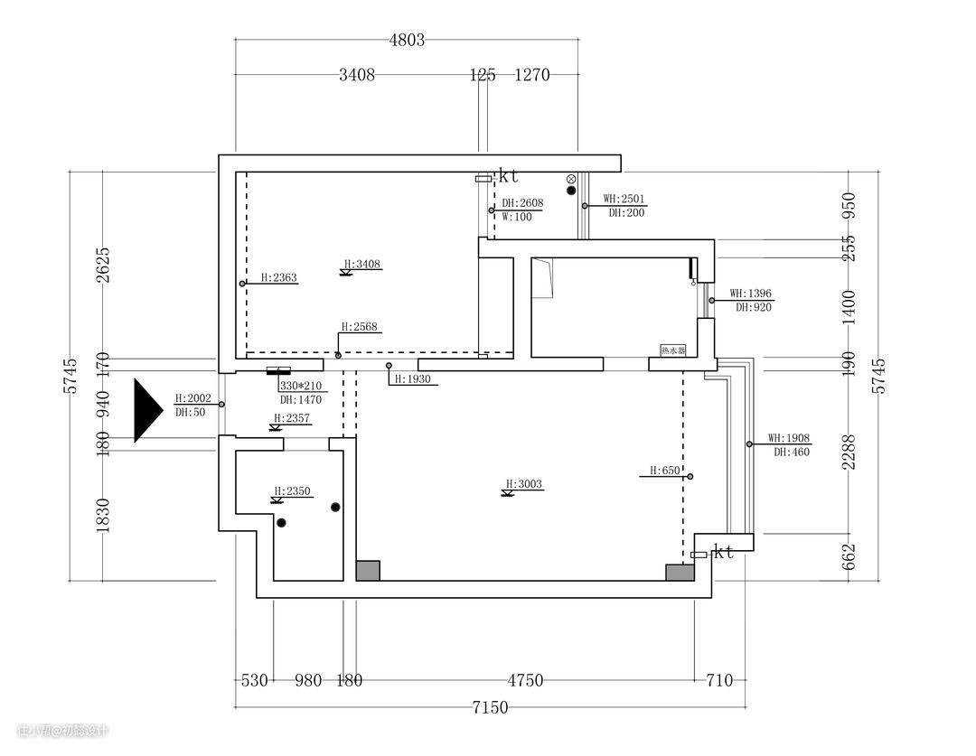
户型分析:
这是一套旧公寓,室内37㎡,户型比较方正,一室一厅一厨一卫的划分是合理的,但原格局未能有效利用,收纳空间极少,卧室采光面微弱到近乎没有,小阳台未能有效利用,原卫生间小,并且无采光,使用不便,厨房的操作空间太短,不实用,客厅层高3m,卧室层高3.4m,内部墙体都可以拆打。

平面要点:
入户门改为外开,鞋柜与卧室书柜背靠代替墙体节省空间,卫生间朝公区方向移动加大,淋浴和泡浴两者兼顾,公区将朝向改变方向,用榻榻米储物柜形式代替沙发,电视机位的视距拉长,使观看体验更佳,打破客厅与餐厅的分界,整个公区是一个多功能的活动空间,榻榻米连接储物高柜,将冰箱和洗衣机穿插在柜体之间,采用开放式厨房,操作台面更充足,同时将窗户的自然光线共享给整个屋子,卧室改变开门方向,整合家务动线、居住动线、来客动线,榻榻米床一面连接书柜、衣柜,一面连接梳妆桌与地台休闲柜,整体性更强,空间利用最大化,整体空间划分打造有序、整体,并保留一定的留白和疏密度。

①入户鞋柜+电表箱柜
②游戏机柜+洗烘一体机柜+公区储物高柜
③公区榻榻米休闲柜+公区储物高柜
④厨房地柜+吊柜
⑤梳妆桌+书桌+榻榻米坐台抽屉柜+地台休闲柜
⑥衣柜+书柜+榻榻米床
居家就离不开储物,怎么才能看起来干净整洁呢,不是柜子多就可以完全解决的,柜类分区和结构格局的设计也是至关重要的环节,那必须是所有东西有合理的归置位置,储物容积、尺度、距离科学合理,居家环境才会更理想。


原装修拆除后,梁是参差不齐的,以最低梁为标高,设置鞋柜高度,在假梁与真梁之间围合吊顶,入户顶面保留了一部分原层高,吊柜背面是有一根横梁,我们把它和吊柜处理在了一起,攀爬梯延伸至顶,不仅可以当挂架,同时也方便顶面吊柜的使用,装饰与实用同在。

墙体全部拆除后,我们将配电箱隐藏在鞋柜里面,高度刚好使用,关上柜门就干干净净的啦。


卫生间扩大后,新建墙体顶面留有一段玻璃采光面。

浴缸处是原户型结构柱,我们直接左右封平浴缸,留出置物格,一面朝浴缸,一面朝淋浴房,就不需要在墙面打孔外露置物架了。



电视机位置比较局限,我们在墙面做了凹凸的层次关系,采用黑色的磁性漆,使顶面采光玻璃与电视机位横向延伸保持平行,达到一种平衡。

公区开灯效果▲

公区关灯效果▲
公区照明采用顶面线条灯均匀布光,并且进行了分组,可选择不同的明亮度,榻榻米的深度大于一般沙发,制作带弹簧的坐垫与靠垫,坐躺都可,桌子是选择的多功能伸缩带滚轮的形式,方便移动与不同场景的变化,电视机与游戏机的线我们都预埋了管道连接至旁边高柜里面,使电视机面可以保持干净整洁;榻榻米顶面的梁加宽处理与榻榻米面齐平,形成更干净整体的块面关系。

椅子也是选择折叠式的,方便收纳在储物高柜里面,柜体深度加深与墙体齐平容积更大。

洗烘一体机藏在柜体里面,烘干后上方可以进行衣物的晾挂,还设置了感应灯条,使用更舒适。


桌子随意移动变换可作为阅读桌、餐桌、吧台……





卧室格局是纵深的长条形,本身采光面是最小的一个面,所以灯光照明也是采取的线条灯均匀布光,这种方式可以使空间不会太有暗角,达到合适的明亮度;衣柜、书柜、榻榻米床、多功能梳妆桌、坐台休闲区采取定制的方式,不仅可以根据空间和使用设置比例, 在保证整体性的同时,我们在层次高低和储物上面结合翻板柜和抽屉柜也做了不同的考虑方式。


灯光处理上有墙面延伸到顶面的关系,除了视觉与光照度的考虑外,也是因为原始梁比较不规则,用干净简洁的线条灯来弱化厚重感,更显得轻盈一些;木色与白色柜的穿插组合,是为了让空间在保持干净的同时多一份温润感。


关上所有线条灯,不同的场景下我们有设置桌面聚光台灯、氛围吊灯以及休闲区壁灯,根据需要使用不同的照明方式。


《奇想与微笑:太宰治短篇杰作选》是菁菁喜欢的一本书,异想天开又有趣,太宰治是日本颓废作风的无赖派小说家,在大多数人心里,他就是“丧”的代表,堕落、毁灭;在少数人眼里, 他其实又是一个纯粹至极的人,风趣幽默、天真无邪;极具反差,却又那么真实。

菁菁的气质在我们眼里和这套小屋的环境亦是那么相合;设计之初,我们就希望用我们的“奇想”赋予这套居室温暖与柔和,让空间和居住者之间产生互动,拥有一种和谐舒适的“微笑”关系。

原公区照片▲

原卧室照片▲

原厨卫照片▲
这套案例的空间设计其实并没有挪动原始的功能区域位置,我们重新进行功能的拆分与整合,将储物设计与格局设计互相穿插取长补短,按照业主的生活习惯和功能需求采取定制化打造,这样使整个空间更整体也更实用,所以定制化是真的可以贴合到每个人不同的需求与比例尺寸。