装修案例说明:
进门与阳台处上、下两层储物柜的设计为这个小户型增加了不少收纳空间;把原来的卫生间一分为二,让七十平方米的小空间也拥有才梦寐以求的主人套房,实现了两房两卫空间。我们在满足生活上方便的同时,把各个方位空间精雕细刻:
实用的多功能书房、唯美休闲的客餐厅、独立特色的干湿分区等等,营造了这个小而美的居家空间。

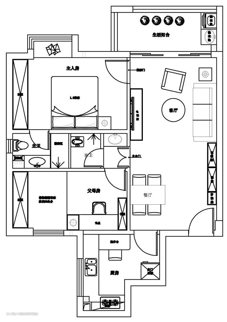
本案例为小户型,77.5平方米,两房两厅两卫~

利用入门处的空间设计到顶收纳柜,下层作为鞋柜;上层可以收纳其他杂物;中间层留空摆放喜欢的装饰品。


电视背景墙采用文化石设计

蓝色的沙发与杏色调的客厅相配;
沙发背景设计壁灯,并用两幅挂画装饰

沙发与阳台之间的空间设计边几,收纳小件的东西

从阳台看大门口全景

所有空间的主次分明,空间虽小,但并不杂乱

用比较流行的五彩碟来装饰餐厅背景

餐厅的后面即是厨房,方便用餐

厨房宽敞明亮,各功能分区非常明确

洗手台用砖砌而成,铺贴的多彩色调小砖显得温馨又突出家的味道;客卫采用干湿分区设计,比较符合日常起居的使用习惯

客房采用榻榻米设计;为使空间利用的最大化,在榻榻米下设计抽屉和一排到顶衣柜

另一侧设计收纳柜和书架

书桌把客房的整个空间连成一个整体

利用主卫门外的空间刚刚设计到顶大衣柜,为这个小户型增加更多的收纳空间

暖暖的灯光配上蓝色的床头靠背显得很温馨

墙上的钉钉,作为装饰也作为挂件

床头柜可放置小物品

由原来单个卫生间相隔而来,设计了相对独立的淋浴区和马桶。
梳妆镜采用的是带收纳功能的镜前柜,方便收纳洗漱用品

▲紧张的节奏,容易让人迷失,我们花了一生的时间去了解别人

▲却从来没有花过时间来了解自己,静默的诗意 ,因为爱,充满春色

小小的阳台设计别出心裁。首先设计上、下两层储物柜;下层设计独立半封闭空间放置洗衣机,中间一侧设计洗手盘和梳妆镜;另一侧设计置物层架;
