在以往接触的室内设计项目中,我始终坚持并强调设计首应重视的部分该是功能改造,其次才是硬软装的搭配效果。而市场有一大部分设计师,一味的追求色彩效果,却忽略其功能设计的重要性。
今天就以loft户型为案,说说哪些设计是这个户型必须要注意的。

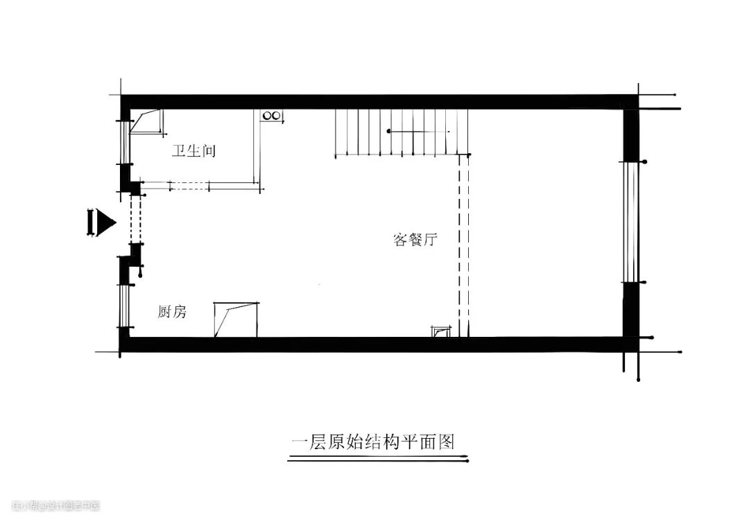
改造前是一个办公室,光线很差,东西也很凌乱。

一层原始钢结构直接把空间分成了两层,完全没有上下呼应,显得空间压抑光线也进不来。






1.结构形式
因为大部分loft格局,基本是长矩形,常规设计的话,并不能从根本上改善房子本身的缺陷。图上,改造后户型平面图中的红色部分,均为这次改造的新建墙体。
优势是:打掉原结构的部分楼板,将客厅层高调整成5.5米,除改善光线外,也会让房子显得更气派;在保证2卧2卫的前提下,一楼拥有独立门厅、超大厨房、客厅;二楼主卧隔出衣帽间,主卫还实现了浴缸和淋浴并存。
2.电动窗帘
对于层高超过3米的,电动窗帘强烈安利,你一定不想体验徒手拉长5.5米的窗帘是什么感觉。当然如果预算不限,来套全屋智能家居,也是相当不错的选择。
3.二楼饮水
作为一名身患懒癌晚期的设计师,是不会允许甲方爸爸体验晚上起夜下楼去厨房找水喝的尴尬,说在二楼放烧水壶的可以绕行了~我在二楼的过道区域特意设计了饮水区,“管线机”这种电器不要太方便,没听过的自行TB哈,这款号称可以取缔热水壶的神秘小家电的工作原理非常简单。
4.二楼卫生间洗热水澡
为了能实现,打开水龙头就有热水,除了楼上楼下各安装一个巨占地的电热水箱热水器外,一款叫即热式燃气热水器的,除了丑外,能秒出热水,这种只有高级VIP才有的待遇,是不是完全可以忍~
5.楼梯选择
一字型楼梯相比U型,旋转,具备占地最小,最不易有卫生死角,及楼梯下最方便做储物的强大优势拔得头筹。

改造后的门厅,定做了尺寸足够大的鞋柜,再也不怕买买买了!左侧还预留了开放格随手放一些包包和钥匙很方便。

嵌入式的家电将空间最大化利用。洗,切,炒的动线使用更方便快捷。

白色的橱柜搭配木色的开放格整体看起来更干净还不单调。

吧台将客厅和厨房紧密连接起来。

零冷水燃气热水器,开水龙头就有热水出来。无需等待。

对原钢结构楼板进行了改造,把光线引到了一层室内使得空间整体都亮了不少。

家里人织的小毯子样子做工和样子都很棒。而且还独一无二。

客户安利的SONY 65寸大彩电,显示效果直逼专业级监视器,内置支持原生杜比视界。

飘窗和电视柜连接起来让空间显得更加宽敞。

飘窗的设计让客厅能满足更多朋友做客的需求。

通过切割钢结构楼板,使房屋一下有了挑高的空间,屋内瞬间明亮了许多,整个屋子的气质都被提升了。

一字型楼梯相比U型,旋转,具备占地最小,最不易有卫生死角。建国小猫咪出镜啦~

床后做了壁龛,细心看原始图的朋友一定发现了左侧其实是管道井,它拆不掉,全砌墙又很浪费空间,所以我们干脆做个壁龛弱化掉它的存在,还能随手放点东西。

主卧旁边做了步入式衣帽间,它的储物功能强大。

墙面做了拼色处理,划分了空间,也不会显得太过于单调。

梳妆台。

作为一名身患懒癌晚期的设计师,是不会允许甲方爸爸体验晚上起夜下楼去厨房找水喝的尴尬,二楼的过道区域特意设计了饮水区,“管线机”这种电器不要太方便。

二层卫生间的干湿分离设计。

黑色的台盆搭配白色的台面更加美观。

下班回家能有一个可以泡澡的地方是多么享受的事情啊!
1.净水机+直饮机
品牌型号:云米MG2-A管线机+安吉尔净水机A6PRO
推荐理由:完美解决二层饮水问题,颜值和使用并存。
2.燃气热水器
品牌型号:海尔JSQ31-16M6S
推荐理由:真正零冷水,开水龙头就有热水出来。无需等待。
3.冰箱
品牌型号:BEKO,CN160220IDX,541升容积
推荐理由:储物空间大,而且带蓝光保鲜,火龙果放进去一个月都不会坏。
4.电视机
品牌型号:索尼,A9F65寸
推荐理由:索尼大法名不虚传,现今消费级OLED电视中最强之一,显示效果直逼专业级监视器,内置支持原生杜比视界,国行无阉割。
以上就是本次案例的分享,喜欢的朋友别忘了收藏哦。
