屋主一口气买下了高层住宅顶楼相邻的两套房,原本计划父母住一套,自己和妻儿住一套,平日下班后便在父母家一起吃饭聊家常。收房以后,屋主实地看了房,才意识到自己与父母并不只隔了一堵墙的距离,自己早出晚归,父母习惯了早睡早起,虽住在相邻的房子里,中间的一堵墙却让他们一星期也难得见上一面。但如果住在一套房里,L哥也有所顾虑,一家三代五口人,生活习惯大不相同,住在同一屋檐下,会不会因为琐碎的日常而产生矛盾?
于是,基于业主的希冀和顾虑,本案便围绕“隔、合”二字铺展开来。
1. 想把两套房整体融合改造为大平层,希望和父母生活在同一屋檐下,但又能够保持“产生美”的距离,同时包容三代人不同的作息时间和生活方式。
2. 需要一个大套房(主卧、衣帽间、卫生间)、两个老人房、一个儿童房和一个书房。
3. 每个空间都要尽可能足够大,以便有足够高的舒适度。

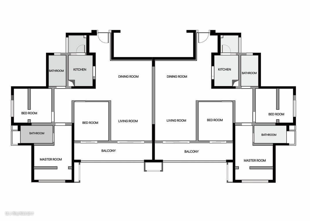
改造前为两套对称的套三户型,客厅被阳台和卧室挤压,显得狭窄和局促。客厅通向卧室的L型过道较长,空间浪费大。

整体户型设计围绕“隔、合”来设计:
1. 合——拆掉中间隔墙,把原本的两套房合二为一;
2. 合——中间区域设计为公共活动区,也就是一家人日常团聚交流的区域。把原来的阳台和一间卧室打通一体做成客厅,增大客厅空间,原本左侧的餐厅做成西式厨房满足男主休闲喝酒简餐的功能。餐厅设置在吧台右侧,起着枢纽功能,把一家人凝聚在一起。
3. 隔——公共区域的左侧为老人主要活动的区域范围,两个老人一人一个房间。由于老人习惯早起做饭,厨房也设置在了老人活动区域一侧,为了提高厨房操作的舒适度,把原来的次卫和厨房打通增大了厨房空间。
4. 隔——公共区域的右侧则是主卧和儿童房,年轻一代和老一代活动区域之间的间隔,不仅协调了两代人作息时间的差异,也让彼此有了独立的空间,互不打扰,互相尊重。

▲ 客厅概念图

把原本的客厅与阳台、卧室之间的隔墙拆掉后,带来的是宽敞通透的大客厅和柔和明亮的自然光。无论是一家五口人齐聚在这里休憩娱乐还是接待亲朋好友,宽阔的空间都给每个人提供了舒适的距离。

▲ 客厅概念图


白和黑奠定了客厅的主色调。墙面、顶面涂刷白色艺术漆,散发出陶瓷般光洁的质感,黑色木皮包裹四周边顶和灯槽,勾勒出黑色的大框架。岩板,木饰面,镜面茶几在光线下散发着冷峻高级的质感,暖色的皮质沙发中和了冷色调,为空间注入了一丝暖意。

鱼肚白岩板拼接成一幅大气低调的背景画,与深色柜体在明度上形成强烈对比,使空间质感更显硬朗。经典的伊姆斯躺椅,兼具美感和舒适,是整个客厅里L哥最喜欢躺的地儿。

沙发背面用深色木饰面打造了凹凸造型的背景墙,时而密集,时而疏散的线条,与窗帘自然垂落的直线相映成趣,丰满了空间视觉。


▲ 餐厅概念图

餐厅右侧墙面采用白色艺术漆,具有艺术的笔触和独特的质感。餐厅吊灯来自意大利品牌Foscarini ,独特的造型和材质加深了空间的艺术氛围

餐边柜采用了“二八”设计手法,封闭的白色的壁橱, 加黑色的开放空间,开合,黑白对比,整个空间趣味、功能、洁净相交。餐桌与中岛台相互呼应,形成空间功能的的共融。

餐桌椅的选择上依然延续了高质感、冷峻的色彩、简练的线条,是霸气男主品味的象征,也是其气质的投影。

西厨被设置在客厅一侧,满足了休闲喝酒简餐的功能,朋友聚会时,也是一个聚集人气的场所。

木地板和地砖的拼接,不仅丰富了空间的视觉效果,也同时划分了两个不同的功能区域。

笔直干练的线条,黑白简洁的配色,高质感的选材,无不透露着低调的奢华。


L哥喜欢深夜加班后回家,独自在吧台喝口小酒抽只雪茄,一天的疲劳也会随着烟雾烟消云散。


厨房地面和墙面采用整体大板砖铺贴,白色橱柜采用无拉手设计,让橱柜显得更加有质感干净。

窄边框玻璃门的设计与厨房简约干练的调性相匹配,透明的玻璃门隔断了油烟,但在视觉上让中厨与西厨保持了贯通。

书房、客厅两个空间并排陈列,地面材质延伸分区,让两个空间好似一体。书房与餐厅之间采用玻璃门隔断,让更多的自然光能被引入餐厅。

阳光透过百叶窗过滤出更柔和的光线,洒在木地板和书桌上,形成了更丰富的光影变化。

书柜悬于墙而空于底,满足储物功能,空间却不显狭窄。




卧室采用天然木皮饰面,配上两侧白色硬包,空间更加温馨洁净。暖色系床头靠背,给空间注入了温润的质感,让卧室更加柔软温馨。

四周边顶镶嵌不锈钢线条,在细节处体现精致。

衣柜靠墙一侧的柜门设计为黑色,在色彩上运用穿插的手法,让空间简约而不简单。


夜深后开启落地灯,温暖柔和的灯光,让家的氛围更加浓郁。

干净整洁是业主对衣帽间的诉求。衣帽间大面积采用白色,其中穿插黑色线条,部分柜门设计为透明的黑色玻璃,避免了整面柜子采用白色的乏味。


衣帽间与主卧一墙之隔,取衣、换衣、梳妆动线流畅。


与其它空间黑白灰为主调不同,老人房以大地色系为主角,用不同层次的大地色搭配白色背景,凸显稳重温馨舒适的主题。

现场制作的木纹护墙板,把床包裹起来,给予老人内心踏实的安全感,让他们能够夜夜好眠。


卫生间延续了黑白灰的主色调,淋浴间墙面采用同种花色不同规格瓷砖错缝拼贴,让深色墙面不会显得呆板。镜柜四周暗埋了灯带,柔和的灯光洒在瓷砖和洁具上,营造出高级的氛围。

