说在前面
生活是艺术的延续,设计不是材料的堆砌,也不是照搬的复制,根据业主的生活状态,深入业主所向往的情景,满足内心的感受,此结构改动较大,原建筑空间凌乱,利用拆改和扩建大面积引入自然光。
蓝色似清透,有点单纯,有点寂寞,有点空灵。白的线条、蓝的墙面,多种色彩的多肉,色彩与光,即矛盾又和谐,这是一种相处模式,优雅而浪漫。无意间出现的艺术品,是对自我的要求,品味的体现。
户型图
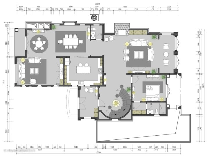
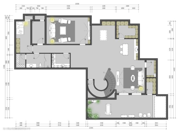
一层平面布置图

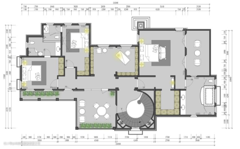
二层平面布置图

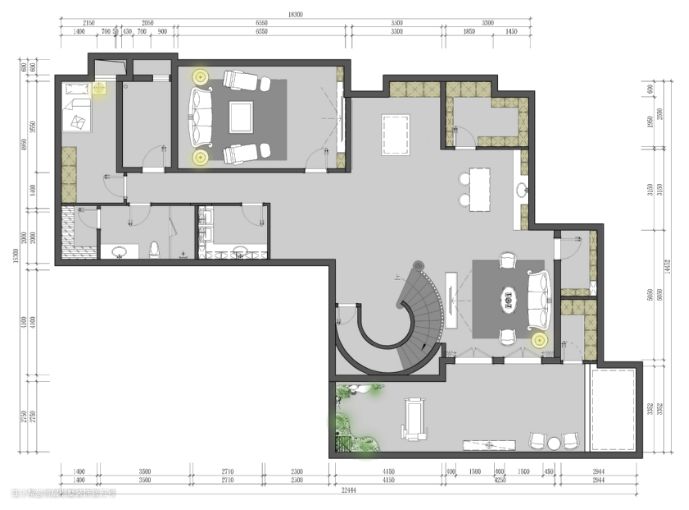
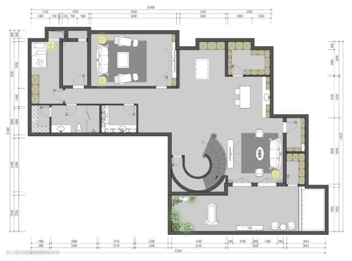
地下一层平面布置图

客厅



餐厅


生活是艺术的延续,设计不是材料的堆砌,也不是照搬的复制,根据业主的生活状态,深入业主所向往的情景,满足内心的感受,此结构改动较大,原建筑空间凌乱,利用拆改和扩建大面积引入自然光。
蓝色似清透,有点单纯,有点寂寞,有点空灵。白的线条、蓝的墙面,多种色彩的多肉,色彩与光,即矛盾又和谐,这是一种相处模式,优雅而浪漫。无意间出现的艺术品,是对自我的要求,品味的体现。
一层平面布置图

二层平面布置图

地下一层平面布置图




