身处钢筋水泥的城市,在疲惫之时总想躲进大自然。在家装设计中融入动物或植物的元素,能让家里呈现自然的灵动质感,是更多人向往的生活空间。
这是一套新交付的精装修户型,原本布局合理,基本已达到可拎包入住的标准,但全户型没有衣柜,空间也没有得到充分利用。业主全部预算在25万内,设计师在首先解决收纳问题的基础上改造布局,再将家具饰物等添置进来,使得空间整体上更加趋于合理化、人性化和时尚感,并最终将成本控制在20万。

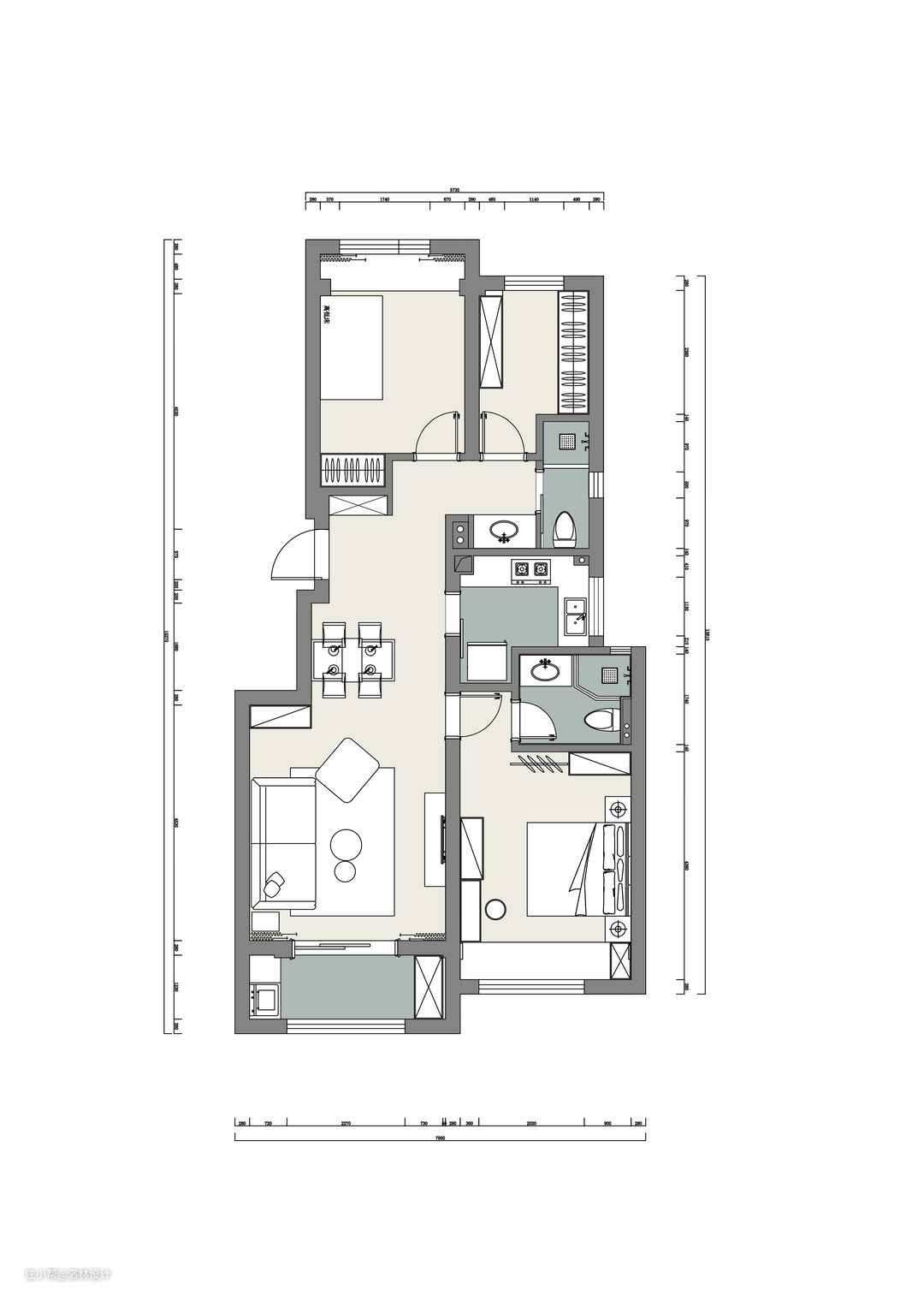
原始结构图

平面布置图
为了有效解决收纳问题,设计师单独把北面小房间改为衣帽间;又为不让主卧有拥挤感,因此没有设立一组柜子;另外,把北面大房间改为客房。

改造前

改造后
客厅是一个家最温馨的集合点。本案业主需要在客厅安装投影,所以除了正常的布置外,增加了坐在客厅观影舒适性的要求。其中作为沙发背景的一面白墙贴了明亮的橙色墙纸,图案是狒狒和变色龙在开花的珊瑚树上晒太阳,铁箍和犀鸟在叫喊和歌唱,灵动立体不呆板。然后,整个客厅再以这款墙纸为设计基点展开软装布置。


家居选品可以展现主人的生活品味,「在有限的预算里,尽可能购买正版家居」是软装设计的出发点。1973年,法国著名工业设计师 Michel Ducaroy 将一筒牙膏本身折叠,由此而来的灵感造就了全球第一款全泡棉沙发的诞生。作为一款备受欢迎的沙发,这次设计师选择了脏粉面料,呼应橙色墙纸,让人一坐下就非常放松。主沙发则挑选了法国品牌 Ligne Roset 的 Polum 沙发,并大胆挑战了蓝紫色。最后配以几何线条的地毯,聚拢整个客厅的中心,和立体颜色呼应。

电视柜上的摆件是业主西班牙旅行带回来的


猫头鹰摆件呼应了客厅的动物元素

左侧的墙面由于要用作投影平时看上去会有些冷清。原精装修吊顶没有加木工板,无法固定投影幕布,于是选择在墙面刷了投影漆,不破坏整体感又能满足功能性。

餐厅空间连着客厅和门厅,恰到好处地利用了过渡地带,餐厅装修会直接影响用餐的心情,为了给女业主营造轻奢的感觉,在细节上花了点小心思。比如,顶部是gubi的吊灯,桌腿蹬腿均采用黄铜,墙面则刷了浅浅的进口涂料,内敛又不乏气质。



改造前

改造后
为了对应整个家的动物元素,主卧靠床的背景更换为墙纸,精心选用了 coleson 的墙纸。由一幅幅的动物肖像构成的图案,仔细看会发现一只相当傲慢的斑马和一只古怪的豹子,辅以柔和的长颈鹿斑点为背景,大色块的橄榄绿。其他三面墙运用接近墙纸背景色的浅色进口乳胶漆来搭配。


老虎地毯则让卧室看起来既可爱又经典,将地毯与丛林感的墙纸搭配,竟然带来一种野生世界的感觉。

为了不让主卧显得压抑,特地没有在床旁惯性设置衣柜,取而代之的是用了原木斗柜衣帽架,作为睡衣和贴身衣物暂时悬挂的地方。

充分利用角落空间,女人必不可少的梳妆台

比起直接在卧室做衣柜来储物,若在空间允许的情况下,专门设计一个衣帽间解决收纳问题是越来越多业主的新选择。本案中设计师果断将小房间作为单独衣帽间,并根据业主需求设计了一面定制移门衣柜,一面为淘宝定制衣帽架,顶部还安装了轨道灯,整个空间简约的白色系,方便经济又环保。

走廊上的这幅画是设计师和业主共同挑选的

理想的居家住宅氛围是融合了主人的小心思,又能容纳其喜欢的文化元素,体现主人良好的生活品位,也让居住者自如地适应周遭氛围,和谐而优美。在大多数爱家人士的心中,居住是一种自我意识的表达,一幅画,一件摆饰,一种色彩……都能成为呈现居住者完整的空间元素需求,如何选择便成为一种认知与技巧。
