=业主信息 =
Catherine(化名)
职业:IT行业主管
爱好:赚钱、健身、学习
常住人口:1人+2猫

有人曾经说过:“谁强大都不如自己强大,与其把别人当做避风港,不如自己有能力遮风挡雨”。今天这套案例的主人公,就是这样一个人。

▲原始户型图

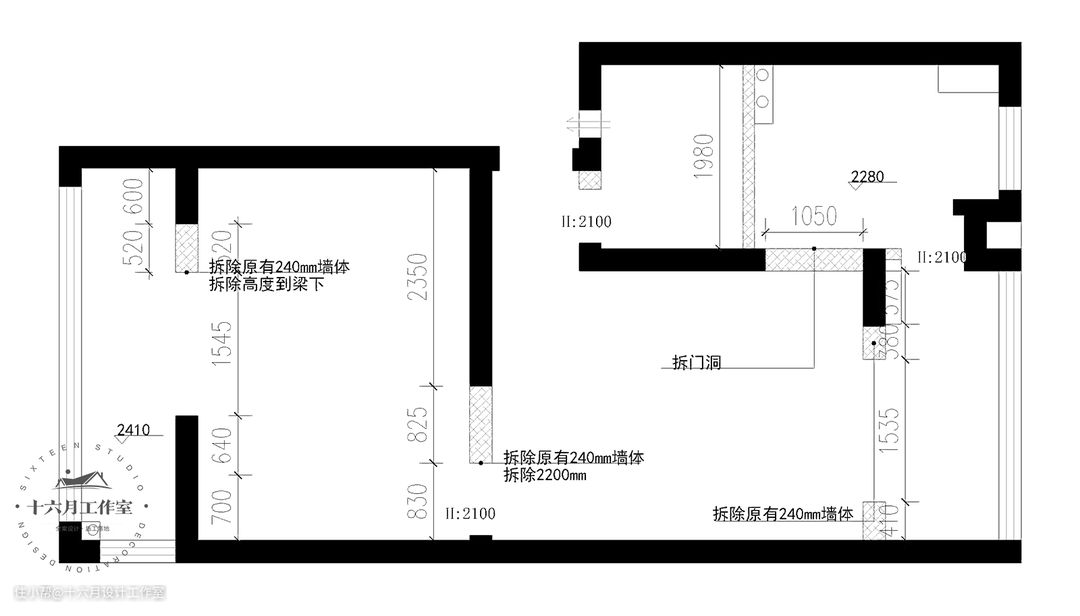
▲改造后布局图
拆除情况:
①主卧阳台拆除原有240mm墙体,拆除高度到梁下
②主卧门口拆除原有240mm墙体,拆除2200mm
③把现有的厨房墙面拆除1050mm,开了一个门洞,作为厨房入口
④客厅的阳台进行打拆,拆除阳台半隔断原有的240mm墙体,拆除380mm

▲户型打拆图
新建情况:
①厨房靠近卫生间的墙面进行了新砌单砖墙560mm
②入户现在的储物柜所在的地方原本是空的,在这里新建了单砖墙,给储物柜的设计留下了部分空间
③厨房到客厅阳台的地方进行了新砌单砖墙680mm
④户型图右下角,阳台的角落做了补窗洞
⑤主卧门口新砌240mm的砖墙,补原有的门洞

▲新建墙体图

改造之前是没有玄关的,入户左手方是一个卧室的入口,现在玄关柜的位置是我们新建的墙体,打造的入户玄关并且做了整面靠墙的白色玄关柜,大面积留白,加上镜下灯的辅助,看起来很明亮,视觉感增强。
而地面的拼色地砖充分表达了室内的灵动感,和客厅的木纹砖形成了一静一动的鲜明对比。

Catherine家的玄关不大,我们在玄关柜下方留下了适当的空间用来放常穿的鞋子,不用每次换鞋都开关柜门,不常用的鞋子整齐的放在鞋柜中,让鞋子不再杂乱的堆在玄关处。


客厅是简单的沙发加电视机搭配组合,把茶几丢出客厅,用一张地毯代替,显得家里空间更大。
地毯也可以作为一个休闲娱乐的区域,有朋友到访或者跟自己的猫咪在一起地毯上玩耍,不会担心其它的安全隐患,对Catherine来说是一件很幸福的事儿。


电视背景墙没有做过多的造型,Catherine不喜欢家里看着电线乱糟糟的,像电视背景墙这种线路重灾区,提前计划好了做电视线盒,把它们都藏起来。



旧房的顶部造型比较多余,而且会让原本就小的空间显得更为拥挤,我们选择直接把顶部的平面造型全部“干掉”,现在给人的感觉空间变大了很多,也不会让人感觉压抑。



灰白+原木的巧妙结合,不反复,不单调,打造出了一个清新舒适的环境,丰富整齐的线条令空间有一种延伸感。整屋背景都涂刷了浅灰色来营造安静的氛围,简约优雅。


运用现代北欧的元素,结合材质本身的质感,搭配低调温润的色彩,在家居各种摆件的交融中,表达出了日常生活的细腻。

墙面大量留白,让自己以后有更多的发挥空间,简洁明亮,视野通透,每个小物件都体现出了Catherine对生活品质的追求。



以灰色系和原木色为视觉主轴,配合简约内敛的木质肌理,通过材质间的相互契合,构造出灵动而让人一眼惊喜的空间体验。



敲掉客厅与阳台之间的隔断,打破界限,相互融合,让空间感得到延伸,大大优化采光、通风和自己的视野,整个屋内光线更加通透柔和。

▲夜晚灯光效果

▲白天灯光效果


阳台做嵌入式的洗衣机把空间利用的刚刚好,丝毫不浪费,这幅画增加了整个空间的层次感。
闲暇的午后,坐在阳台这个小角落;喝喝咖啡,看看书,也是一种奢侈的享受。家就应该充满爱,每个角落都有温暖。


主卧拥有一个单独的大阳台,蓝色的墙面辅以金色元素壁灯做气质床背景,搭配细腻的胡桃木家具,让大面积的蓝色有了时尚气息。



蓝白拼接的墙面,营造出宁静清爽的空间氛围,阳光透过落地窗来到室内,明亮大方。


Catherine家做的不是常规的衣柜衣帽间,当时跟设计师沟通后,最后决定在网上做的定制,几乎是金属支架,没有常规的衣柜板,如果对这种衣柜感兴趣的话,可以参考宜家的“艾格特”系列。


采用半通透的长虹玻璃做隔断(拍照的时候还没安装好),分割空间的同时,增加了空间的视觉通透性。

▲门的样式

抽拉式的裤架可以有效的将裤子整齐的悬挂,避免叠放造成褶皱。



厨房墙面的瓷砖采用白砖黑线,橱柜采用通体白色,很有线条感,三餐四季,这就是我向往的生活。


卫生间干湿分离做的很到位,经典白色大理石瓷砖是纯粹洁净的象征,与生俱来的高贵格调,时尚百搭,有独特的艺术美感。


洗漱台表面看起来很整洁,做了镜下柜,具有强大的收纳功能,不怕灰尘,两旁做了LED灯带,让生活充满小惊喜。
在这个小家里,期待Catherine和她的猫咪们发生更多的故事~



