在认识这对屋主前,总以为现实生活里的浪漫是专属于少男少女的,认识他们后,才明白人生每个阶段都有独属于这个阶段的浪漫。这对七零后夫妻的浪漫,是男屋主牺牲了憧憬已久的茶室成全女屋主想要的衣帽间;是女主人喜欢喝咖啡,男屋主便托朋友从原产地购回咖啡豆;是他们细数着大街小巷他们一起去发现的美食店。原来柴米油盐的日常也可以是另一种浪漫。 在购房前后,两人近三年的线上功课与线下考察,为这个梦想新家倾注了很多、很多。 这算是一套改善型住房,屋里面所有的功能、布局,都融入了两人10多年生活的习惯,同时加入了中央空调、中央热水、地暖、新风、净水、热水循环等提升居住舒适性设备,以及热泵干衣机、洗碗机、垃圾处理器、扫地机器人等提升生活便利性电器,弥补此前刚需房的遗憾与缺失。

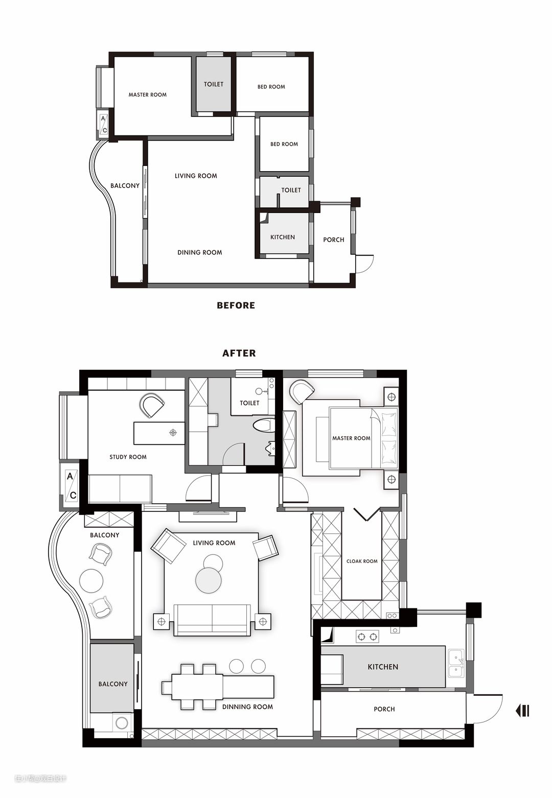
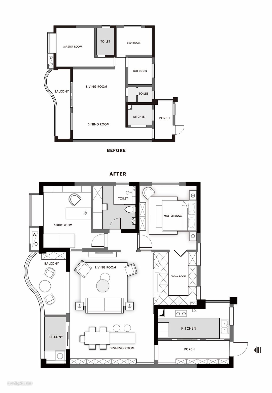
●原始户型厨房面积小,完全不够夫妻两发挥。于是我们在不压缩玄关面积的前提下,仅仅是把玄关从竖向改为横向,厨房面积就增大了一倍。 ●客厅与餐厨区域整体设计为LDK格局,即living、dining、kitchen三者相结合,此处的kitchen意指西厨,与岛台结合可以形成简易备餐区域。 ●原本拉通的阳台被一分为二,餐厅左侧是生活阳台,也是家政区,有搓衣台、洗衣机和储物柜,可以收纳吸尘器等清洁设备。客厅左侧则被规划为休闲阳台,适合养花种菜、喝茶发呆。 ●原本有两个小卫生间,由于长期只有夫妻两人居住,一个大的卫生间远远比两个小卫生间更实用,于是占用部分书房面积拓宽北侧卫生间,大大提高了卫生间的便利性。 ●扩大原本主卧的面积,打通主卧、次卧和衣帽间,改造为一个带有步入式衣帽间的大套房,实现女主人的衣帽间自由。

玄关鞋柜分为换鞋区和储鞋区,柜子的前端部分设计为抽屉,既可以作为换鞋凳,又可以储物,兼具功能和美观。中间镂空设计,可以悬挂外衣、包包和钥匙。鞋柜整体做了上下分色处理,上部分为米白色,与门套窗框色彩一致,下部分为墨蓝色与墙面颜色统一。分色设计不仅增加了鞋柜的趣味性,也让玄关更具整体性,色彩和谐统一。

顺着玄关进入公共空间,餐厅和客厅连为一体,拉伸视线边界,更显宽敞通透。客厅与阳台之间用百叶折叠门隔开,让阳台形成一个独立的休闲角落,为绿植划分出一块单独的小天地。左侧玻璃门后是生活阳台,洗衣晾晒一气呵成,关上推拉门,家政区的杂乱便无迹可寻。

客厅整体以灰色做主色调,以蓝色做点缀,在沉静中添入了几分灵动和清爽。 电视墙用石材造型,在石材左侧开出小窗,与背后的书房相连通,增进了两个空间的互动。

水洗亚麻质感的沙发,为空间注入了柔软,让人一回家就想摊在上面葛优躺。沙发背后便是餐厅和西厨,一人在沙发上看电视,一人在西厨煮咖啡,虽在不同的功能区域,仍能无障碍互动,符合两人独居的生活方式。

壁龛两侧设计了嵌入式储物柜,柜门造型好似两扇双推门,不禁让人误以为门后还有两个房间,在意识上拓展了空间面积。

阳台一角,兼具休闲、储物和养绿植的功能。


餐厅集西厨、岛台、餐桌,多功能为一体。西厨两侧为顶天立低的储物柜,用以收纳各种杂乱的日常用品,为空间保持长期整洁奠定了基础。中间设计了透明的酒柜,展示屋主收藏的红酒和酒杯。西厨地柜上放置了咖啡机和各种咖啡豆,处处彰显着屋主二人对生活的态度——生活就像咖啡,需要细细品味。


西厨墙面用了小方砖斜贴,为用餐空间增添了几分情调。

拍摄期间屋主一边煮咖啡,一边给我们介绍咖啡豆的来源,字字句句间都是对生活的热爱。

岛台台面安装了水槽,再也不用跑去厨房洗水果了。足够宽敞的操作台,日常做做甜品果汁,都能在上面轻松搞定。





卧室作为私密空间相比公共空间,色彩更加丰富有趣,在大面积浅灰色中融入了红砖和灰绿色,对比色碰撞出更具张力的视觉效果。

卧室顶面原本有一根粱,突兀的粱横跨整个房间中,我们为此特地打造了格子型吊顶,让其隐藏于其中,巧妙的让它在暴露中隐身掉了。右侧百叶窗在主卧与客厅之间形成互动的窗口,左侧的百叶门连通了主卧与衣帽间,开门便是一个独立的步入式衣帽间,完成了女屋主的梦想。

窗帘与墙面颜色呼应,展现软硬差异的材质对同种色彩的不同演绎。



精致的衣帽间是男屋主送给女主人最好的礼物。 衣柜设计有藏有露,当季常穿的衣物放置在透明柜门里,一目了然,方便收取。

卫生间延续了公共空间的主色调,以米灰色覆盖整体。洗面台和化妆台合二为一,超长的台面操作方便,大气优雅。


书房用了甜甜的橘粉色,是一个美好的收藏知识和兴趣的空间。书柜与墙面做了统一的分色处理,无缝连接,增强了空间的整体性。书柜设计有藏有露,下部分封闭式柜体储纳杂物,上部分透明玻璃柜收纳屋主的摆件、照片和书籍。


书桌的对面定制了小床,平时可以用作沙发,家里来了客人也可以临时住宿。通过沙发左侧的百叶窗可以望向客厅,各个空间之间都能随时保持交流。

