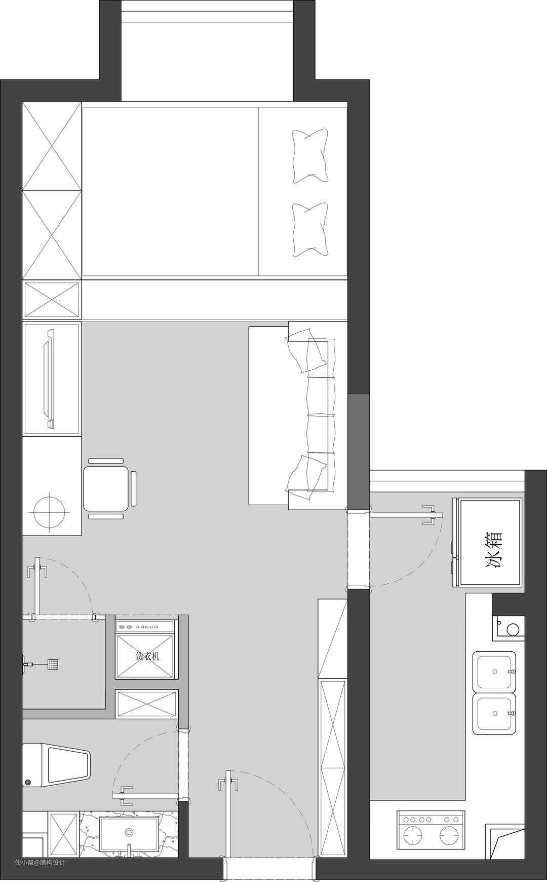
房子不用很大,只要家庭和睦、夫妻恩爱,一样过的很幸福! 项目概况 住宅类型:私宅 家庭成员:2人 套内面积:31平米 空间格局:一居室 房主是通过平台找到的我们。第一次去测量的时候,房主通过物业了解到,阳台左侧的墙有一部分是原始建筑的施工洞,这样就使得户型改造有了更多的可能。 下面是原始户型图:

1.原始的卫生间整体比较小,内部钻石型的淋浴房不是很好用。 2.房间的层高是2.55米,属于高层建筑,向上向下都没有可以扩展的空间,只能在现有空间的基础上进行改造! 3.卫生间门对着厨房的门,风水上不好,卫生间的秽气容易进到厨房,影响身体健康! 业主要求: 1.增加房间的储物空间。 2.把厨房扩大。 3.起居室换一种格局。 通过第一次的初步了解,我们做了4稿方案供房主选择(下面是4稿方案,希望能够对大家有所帮助): 方案一

方案二:

方案三:

草图展示

草图展示

方案四:

草图展示

草图展示

第二次见面沟通,选择了方案4! 1.卫生间整体拆除后扩大,干湿分离。 2.把洗衣机嵌入墙体,洗衣机背面做了一个小的家政柜。 3.原始的厨房门洞封住,在阳台处切割了一个门洞进厨房。
施工前:

施工后:

照片均为手机随手拍摄。
施工前,草图模型:

施工中:


完工后:

防盗门中间开小窗是为了能更好的通风。上面的柜子刚好遮挡燃气热水器的水管,也可以用来储物,放一些不太重的物品。


原始的主电表箱位置没有变动,墙面是浅蓝灰色乳胶漆。
施工前,草图模型:



施工中:

水电施工期间


墙面刷漆,地面刷墙固!


木地板铺设,选购的竹木木地板。

完工后:

带USB的插座面板,柜体是全屋定制,床是某宝购买。

家政柜,用来放吸尘器、扫把、家用小工具等!

定制柜体

穿衣镜!

搬家整理中!

纱帘作为软隔断使用,女主人休息的时候,男主人有时候会在办公,软隔断做遮挡!

茶几、沙发某宝购买!

施工前,原始照片:

方案草图模型:




施工中:

水电施工

水电施工

砌砖抹灰

贴砖:


橱柜安装中:


原始户型的橱柜是一子形,台面尺寸较小,冰箱在起居室,拿取不方便。改造完后,冰箱—水盆—灶台动线合理。

原始的门洞,墙体厚度有22厘米,用5公分厚度的轻体砖砌筑,做了一个17厘米深的壁龛用来放调料等储物使用!
施工前,草图模型:




水电施工中:


贴砖。(选用欧神诺的灰色哑光砖)


洗衣机预留的尺寸,刚好嵌入,误差1厘米,非常感谢瓦工师傅配合、厂家的精准测量。装修是一个团队协作的工程,每一个细节都很重要。



卫生间下面的是个猫门!定做门之前,在网上选好了猫门寄给了厂家。不想让猫出来的时候,这个小门可以关上。平时开着,可以来回串!O(∩_∩)O

室内门安装,固定!

花洒安装,淋浴房尺寸由原来的850mm钻石型改为1000*1150的长方形,使用不拥挤!

卫生间干湿分离,安装喷枪便于清洗马桶以及墙地面!
花费清单:





科勒花洒,居然之家购买,特价款。 ——实事求是,正其不正以归于正也——

感谢房主的热情款待!O(∩_∩)O
问:装修这套房子最大的难点是什么? 答:房主准备在外面租房3个月就搬回来住,留一个月的通风时间。给到施工的时候是两个月,抛去周末无法施工,从搬家开始,约时间拆除、砌筑墙体、水电瓦木油、主材选购安装、软装进场等等,时间比较紧张。 问:如何有效控制装修预算? 答:整个装修费用大致可以包含5大项:1.设计费 2.基础施工 3.主材 4.电器 5.软装。 只要前期设计方案定下来不做变更,那么基本上可以做到总造价5%的浮动。除非是工长恶意增项,或者选择套餐的时候,没看懂包含哪些施工项目,以为全包了,施工一半发现这不含,那不含…… 主材、电器、软装的费用都是能前期根据设计方案确定的,基础施工,如果是新房的话,方案定下来,工长去一趟现场也是能确定的。如果是二手房,拆除的时候不知道底层结构是什么,比如碰到沙灰墙、瓷砖下面还有一层瓷砖层,或者需要打原始垫层等等,这些都是要费用另计的。碰到这种情况,让工长先报需要增加的费用,了解清楚后再施工,做到心中有数,也好把控整体预算。
