2019年的春夏,一个淅沥沥小雨的日子,我见到了“糖藕妈”的好闺蜜,她即将要入住在愚园路上,联排老洋房中的一室小户型,来来往往的老邻居,从小就熟悉的环境,让她舍不得搬的更远。即便是一间小小的居室,能在有回忆的地方开启自己的新生活,谁会不羡慕呢!

除了提出满足基本生活的需求,她还提出了几个属于自己的生活状态,需要在设计时一起考虑: 1、需要泡澡的浴缸 2、洗衣机和烘干机各一台 3、不常做饭但需要做早餐,偶尔有朋友来家里吃饭 4、电视所放的位置,最好在工作区和用餐时都能看到 5、需要投影幕布的播放方式 6、做暖气片和壁挂式空调 7、给常住的小伙伴“灰灰”宠物犬在卫生间留出一个放小厕所的区域。 8、工作区书桌需要摆放3台屏幕。
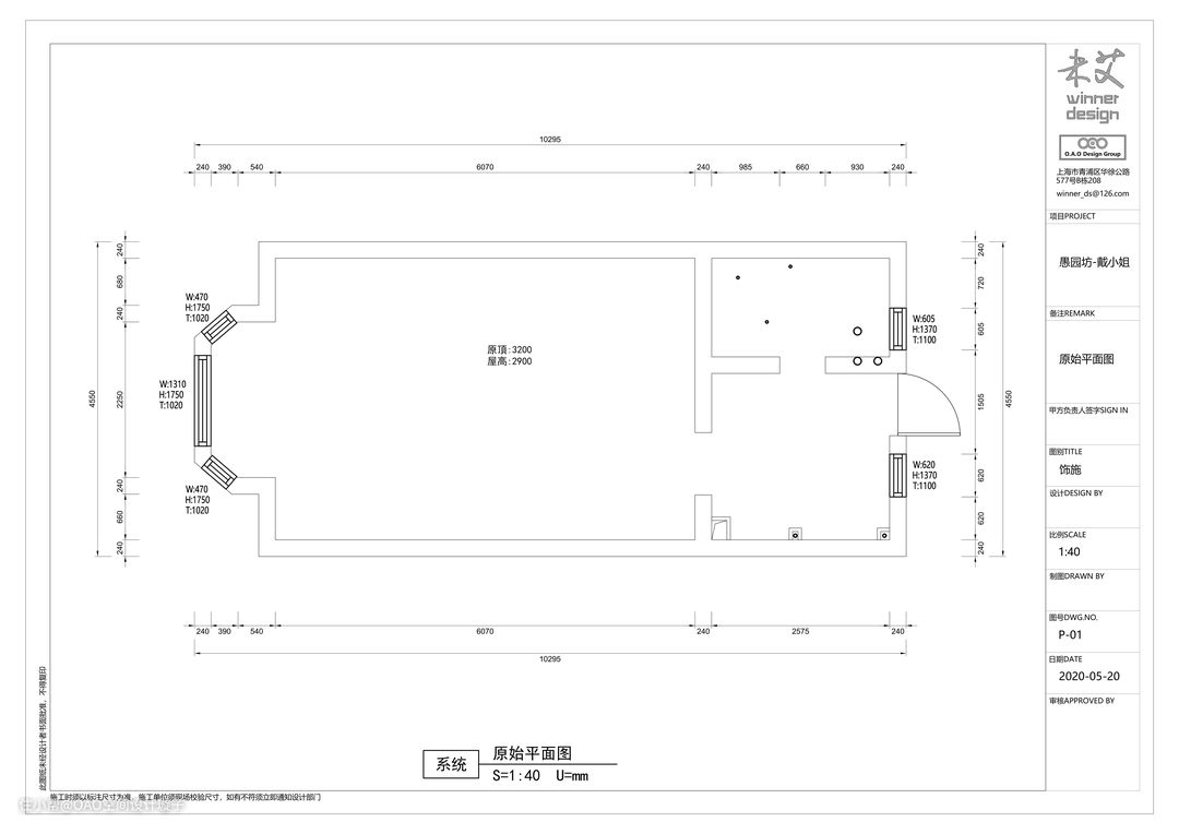
交谈中,我们了解到原本只有两层的小别墅在80-90年代时期经过一次集中改建,二层之上的建筑和每家每户的卫生间都是砖墙结构,而原本属于卧室的部分则保留了木质结构的基础。由于是历史保护建筑,我们在进行平面规划的时候需要尽可能要保留原有的户型结构,尽量少做拆除建筑来满足她的生活需求。

打开进户门就可以一目了然的户型。上一次的装修,猜测大概距今也经历2代人的风霜雨雪了吧,尽可能的多做柜子满足曾经住在这里的过客,刷着红色油漆且褪色的地板倾诉昔日的热闹景象,带我们穿越过了肩配五星的年代,恍惚间回到旗袍卷发的幻想中。

在房间中唯一的八角窗望出去,即便是像那天一样小雨不停的日子,也能感受到还有不错的光线引进来。 站在这间23.8平方米使用面积的小户型中,还在感叹层高居然可以做到3米以上的舒适,就听到楼上的邻居从卧室走到厨房的脚步声,看来隔音的处理也是此次设计施工必须要做的啦!

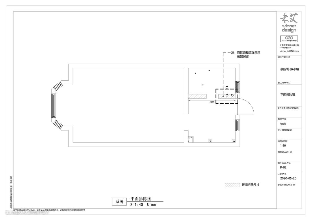
现场勘测中,厨房与卫生间之间的隔墙因装修使用时间太长,已经出现了瓷砖脱落的问题,拉网变形露出了藏在墙中间排水主管道的蛛丝马迹。 分水管道都以“L型”的连接方式汇总到主管道,排水管道路径已经过长,能否尽可能保留所有的墙体结构,使用原有的排水管道位置来完成这次设计呢? 我们接着看!

旧物拆除中,除了拆除原有的固定家具,也拆除了卫生间和厨房的瓷砖,本是做了内嵌柜的加厚墙体,也变得没有什么支撑力。拆除两层的天花,保留到贴着木主梁的一层天花。而地板下除了木主梁就是楼下邻居的天花板了。

最终确定的平面方案,除了改动卫生间与厨房间的隔墙,其他需要排水通气的位置,均未做变化!

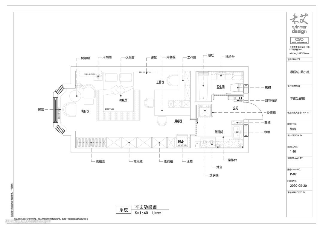
在入户门的左右两侧增加了可以收纳外出鞋和雨伞等小物的订制柜,与视线基本平行的中空套柜除了可以随时观察大门状况,入户回家的随手小物也方便放置。

柜下的小夜灯可以在夜晚提供更安心的照明,也为夜晚起床行走提供便利,浅灰色的防滑砖使用,则考虑不论是从下雨的户外回家,还是从旁使用水的卫生间走过,都能够确保安全。 经常出差的工作行程,也许没有很多时间做清扫工作,有些许灰尘的地砖,看起来也不是很明显,在忙碌的日常生活中稍微解放家务压力,好像也不错呢!

点亮玄关的墙面射灯陪衬的是对生活和艺术的愿景,再适合墙面的挂画尺寸,在心爱它的人眼中,也比不上画面内容本身所带来的一点点欢愉。

与入户门一柜之隔的厨房,特别让归家人有种两点一线,离开工作回到家务的生活疲惫,而一副中意的挂饰,可以悄悄让回家变的有了仪式感。


从玄关延伸至卧室门口的厨房空间,特别选择了不规则的混色墙面砖来装饰,从视觉关注重点的角度削弱厨房功能带给人的繁重感。

隐藏在玄关后尺寸刚刚好的洗衣机和烘干机,默默的承担起他们的工作吧!
先来一张卧室的模型&现场照片对比吧!麻雀虽小五脏俱全,虽然一眼到底但功能不少,一起来看看吧!

模型&现场照片

利用最靠近厨房的柜体区域做一个可以收纳零食、餐具和放置家用小电器的早餐区,现在人们在冰箱使用上,早已颠覆了爸妈年代的“冰箱=剩菜剩饭箱”的观念,冰箱安放在早餐区与厨房的动线中间位置,准备早餐的转身就可取拿冰箱食材,餐台到冰箱间1米的动线尺距离,即使两人同时操作也不会觉得拥挤。

这块0.75*1.35米的用餐区台面,最多可以容纳4人同时用餐,虽然这样的情况在日常生活中并不多见,万一遇到突然想做桌美食犒劳自己的日子,这样的餐台就可以派上用场啦!

从事金融行业工作经常需要同时查看3台电脑荧幕,这个L型转角书桌不仅满足她在家办公的需求,工作时遇到纸质文档太多,“借“用餐区的台面用一用,摊一桌也不怕没地方啦!

对了!说好的吃早餐和工作时都要能看电视新闻呢!这个6米面宽、60公分深度的通顶衣柜+展示柜+电视柜组合,在这个小小的居室完全感受不到它巨大的存在。 但在集合了不同功能的柜体组合之上,还增加了一个小玄机:壁挂电视轨道,有了这个轨道小配件,早餐起床第一件事就是打开电视看新闻的习惯,无论是在休息区还是在吃早餐或是工作,都可以移动电视机位置,达到最好的视线效果。

电视在休息区

电视居中展示

电视在用餐区 没有打开全部的灯光,也能看到房间内充足的光线,休息区无主光源照明,夜晚起床只要伸手就可以找到床头背旁边的开光,无论是打开衣柜展示区的层板灯,还是床头背景的洗墙灯、或是照亮走道的轨道灯,都不会因为直射眼睛感到刺眼的光线。

一本书一杯茶,在某一个轻松的周末下午享受阳光,坐在舒服的跨脚沙发上听楼下邻居互相打招呼的声音。 房间内随处可见家人或朋友的合照,少而精致的饰品装点出生活的气息。

卫生间内的台盆柜和镜柜,包容了卫生间所有的收纳功能,台盆下放着软水机和小厨宝,斜切角开放柜内,使用的纸巾等常用物品都方便取拿,也就是利用这个斜切角的内收柜空间,可以把宠物犬“灰灰”的小便盆放的刚刚好。

镜柜的设计中,20%留出常用洗漱用品,80%收在镜柜内,保持台面的整洁。
有小伙伴问衣柜电视柜在移动电视不会卡到电源线嘛?毕竟衣柜的深度有60公分呢! 当然在柜体深化设计时,尺寸已经经过测算,放置插座的背板深度不仅要刚刚好方便插拔,在移动电视背板到最边侧时,也要保证移动距离不会扯到电源线。
有小伙伴问衣柜电视柜在移动电视不会卡到电源线嘛?毕竟衣柜的深度有60公分呢! 当然在设计进行到审核配套厂商柜体深化设计时,尺寸已经经过测算,放置插座的背板深度不仅要刚刚好方便插拔,在移动电视背板到最边侧时,也要保证移动距离不会扯到电源线。整个过程都需要室内设计师把关。

