这间只有45平的小屋位于北京市东城区。业主是一位年轻的律师,与我们惯常想象中律师严肃低调的形象不同,她是一位性格热情直爽的女生,在设计前期沟通中我们收到了业主长达60页、上万字图文并茂的设计需求,里面不仅包含详细的需求说明,更多的是她对于一些风格的想法和思考,这让我们很好地了解了业主的审美和需求,也促使我们大胆地将这次设计的基调定为热烈、温暖、以色彩碰撞出蓬勃的生命力和复古的摩登气息。 在一般的认知中,小户型似乎就应该是四白落地清淡简约,这样才能显得空间“更大”,实际上能够让空间显大的并不是颜色的深浅,而是更整体的设计手法和更“斤斤计较”的细抠尺寸,我们也希望这次的设计能够打破大家对小户型设计一贯的误区,在我们看来,极小户型同样可以丰富而热烈,我们希望每一个家都是独一无二的。

改造前

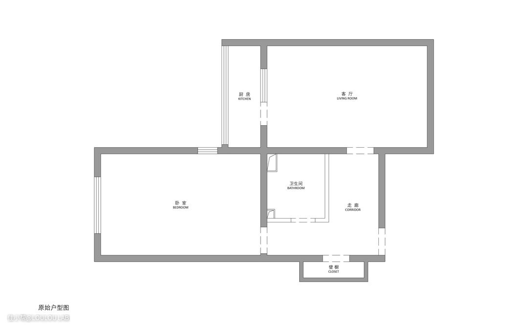
改造后 房子使用面积只有45平,户型本身空间划分明确,且基本都是承重墙体,因此我们没有对房屋格局做过多调整,厨房、餐厅、客厅融为一体,形成LDK空间;把采光最好、拥有整排窗户的房间作为卧室;为了解决卫生间空间狭小的问题,我们将洗手台区域移出卫生间,以满足业主洗漱物品繁多的需求,同时借用卫生间的空间面向走廊设置了一个专门用于收纳清洁用品的储物柜。

效果图平面图

效果图轴测图



我们试图在玄关打造一个极具戏剧感的空间,在开门的瞬间如舞台剧拉开了帷幕,这种带有强烈个人气质的视觉冲击带给人归属感。中心位置的反弧形墙面对玄关空间形成退让,既弱化墙角尖锐的存在,又强调了视觉的中心。地面的正弧形矮台还可作为换鞋凳使用。暗红色墙体与墨绿色柜体的撞色以及黑白方形拼色地砖都强化了整个空间的摩登感。

红色高半墙由玄关延续至客厅,大大增强空间的整体性和延伸感。


玄关一侧的椭圆挂镜既是穿衣镜,又通过反射扩大了空间视觉,旁边的黄铜搁板作为展示及收纳的补充。

原户型卫生间空间过于狭小,我们将洗手区纳入到玄关侧面,通过弧形墙体与玄关中心的弧形墙面形成连续的呼应,并以金色元素点缀其中。

客厅区域用几何色块的拼接作为不同高度红色半墙的过渡,,并作为一种特别的装饰性元素地限定了客厅的空间属性。


客厅边几、地毯、抱枕等软装的选择上都在一定程度上呼应了空间中的色彩元素,通过不同材质的表达使整个空间的色彩丰富而和谐。

红色的背景墙上随意的几幅挂画在灯光下也颇有几分艺术馆展品的调性。


开放厨房延续了暗红和墨绿的撞色,红色吊顶与其他空间形成区分,反光灯槽为这一区域增添了漂浮感。

集成灶旁边做了双面柜,靠走廊一侧收纳了燃气表、净水设备及一些厨房杂物,靠灶台一侧则以搁板的形式方便摆放调料等瓶瓶罐罐。

吧台侧板设置了可扩展桌面,在朋友聚会的时候可以容纳四到六人同时就餐。

夜晚在暖黄色灯光照射下整个空间显得宁静优雅。


卧室风格我们刻意使之与客厅形成反差,不同于公共空间浓烈的色彩碰撞,卧室采用低饱和度而高明度的橘粉色和Tiffany蓝撞色,营造一种温暖明媚的梦幻感。床头选择了黑白千鸟格图案,吊灯、壁灯也都选择了黑白色调,烘托出低调而精致的氛围。

床头背景墙通过石膏板拉槽以及深浅不同的橘粉色而产生丰富的肌理感。

房间一侧设计了L形半开放式衣帽间,通过玫红色丝绒窗帘区隔,保证私密性,空间可开可合。


墙面颜色随光照强度也会产生变化,在阳光饱满的午后满屋明亮温馨,在夜晚灯光照射下又别有一番沉静安谧。
