通常在接触到房主时,我愿意多花一些时间来跟他们聊天,这样你会知道更多详细的需求,对方脾气的冷暖也决定了他们后期对于颜色和风格的趋向。相信我,其实很多人都不是真正的知道自己想要什么的。 当然,当看到这个房子的时候,我觉得接下来的工作会很好玩:广州老城区旧房改造,从房子的建筑结构看,有点像老早之前的集体宿舍的结构。在详细沟通以后,发现里面的功能多数都要乾坤大挪移!可以绞尽脑汁去实现一个东西,在我看来,实在是太好玩儿了!

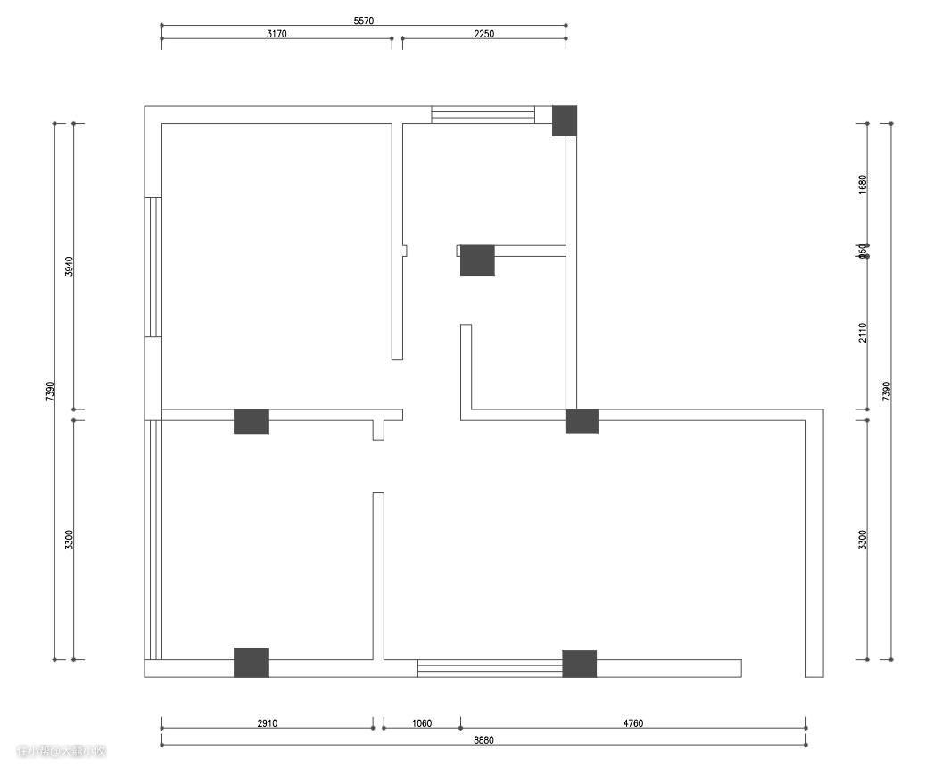
户型方方正正,套内面积大概50㎡,楼层在7楼,住到这儿的家长多数都是为了孩子读书,因此在未来的12年,他们一家三口都会住在这里。因此好好规划未来十几年的生活就变得非常重要,每个细节考虑到,今后使用起来才顺手。

结构对于广州的老房子来说,这绝对属于超出预期的正常!最不好处理的就是横架在房子中间的两根梁。


勘测过现场后,我们达成了一致的想法: 1、原有厨房和卫生间的位置进行调换(别担心,楼上楼下的邻居早已经换过来了) 2、开放式厨房,冰箱一定要放在一起 3、家里一定要有足够的储物空间 4、客厅要有孩子的学习区 5、没有阳台,设置烘干机 6、喜欢绿色和原木色

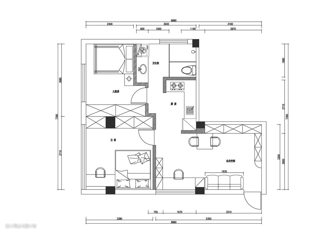
前前后后改了六次,终于把平面图定下来了。大量的储物空间,客餐厅一应俱全,孩子还能一块学习天地,与书柜融为一体;两个卧室都有大量的柜子用来收纳;卫生间做了独立分区,早上的使用高峰期几个区域可以同时使用。

一字长厅包含了餐厅和客厅的功能,但为了隐藏横梁做的吊顶总觉得压抑。

原有的厨房挪动就意味着煤气表、水管等都需要重新安排位置,令人尴尬的是,原来厨房和卫生间的隔墙里还藏着三根下水管。

卫生间夹在中间,常年没有光线,不通风容易有味儿。

充满年代感的榉木门框对于寸土寸金的小户型来说,还挺多余的。

两个卧室的面积其实都不小,这间房打算给小孩使用,但需要适量压缩,给厨房和卫生间腾留空间。

还是同样的问题,建筑结构的梁太高,而且还挂在房间正中间!而恰巧这间房,是主人房。虽然我们测量过可以不把床放在梁下,但吊顶完成后始终还是压抑了些。

所以最终我和屋主敲定了这组方案,舍弃电视墙,在客餐厅做L型收纳柜用来储物,只做一个简单的沙发平时休息。这样就把鞋柜、储物柜、餐边柜全部都融为了一体。用灯光槽的方式弱化梁边缘,使空间从视觉上看着不会压抑难受。

由于老建筑不规范的关系,后期施工时发现灯光槽的位置实现不了,因此后面又转换了位置。

儿童房拆完之后发现中间有根柱子,只能用装饰手法优化。

厨房墙面选用了网红小白砖,地面是地砖和地板做的拼接。 事实上为了把钱用在点子上,我从一开始就建议全屋直接在地砖上铺木地板,节省了大量的关于地面打拆、搬运和铺贴的费用。因为我始终认为,小户型被压在家具下面的地面面积太多,在这个上面去花钱不划算!

地板铺贴总共花了三天的时间,打扫好卫生以后整体的感觉就完全不一样了。 我一般是建议把柜子做在地板上的,这样接缝口会更好看,但是这里户型小柜子多,如果先做木地板很容易在柜子安装时导致木地板划伤。因此,大家在“先装木地板还是先装柜子”的问题上还是因地制宜吧!

由于空调安装的位置导致灯槽无法按照原来的设计安装,但变换一下位置效果也不错,最主要是弱化梁对人产生的压迫感。

孩子的房间没有在摆书桌,因为本身房间已经压缩了面积,所以主要的功能就是收纳和睡觉。正如我之前所说的那样,床我依旧是建议不要买床箱,床下面留空对于湿气重的南方来说非常的有必要。

厨房和卫生间是这套房子里唯二贴砖的地方,由于地砖和地板的厚度不一致,所以一定要精确算好尺寸才能保障两种不同的材质拼接在一起的时候不会有高低差别。

厨房和卫生间是这套房子里唯二贴砖的地方,由于地砖和地板的厚度不一致,所以一定要精确算好尺寸才能保障两种不同的材质拼接在一起的时候不会有高低差别。

淋浴房和马桶间独立开来做了不透明的烤漆门,对于早上忙着上学和上班的一家人来说,能同时使用卫生间显得多么的重要! 从这个角度就可以看出原有的卫生间沉箱降下来多少!如果一味的找平过去,卫生间就会很压抑,因此我果断让工人把卫生间吊顶升到最高能做的地方。虽然感觉好像露出了梁边(其实是卫生间的沉箱),但卫生间绝对不会感觉到压抑了呀!

一个洗手间,最后容纳了独立的淋浴间、如厕间,还能有一个1.2米的洗手台,并且放置了洗衣机、烘干机,是不是感觉Amazing?空间只要合理的规划好了,你想要的,都可以实现。 最后就来看看成品吧!

毕业照是住进去一段时间后去拍的,已经有了很多生活的痕迹。 进门正对的,是常用的鞋柜,旁边是可以放换季的鞋子和其他用品的收纳柜。两面柜子的厚度其实是不一样的,中间还把柱子隐藏掉了。

小空间就是这样:吃完饭的坐沙发上跟没吃完的聊天,或者孩子在写作业,爸爸在沙发上打王者,妈妈在餐桌上用电脑赶课件。

当时建议的是折叠的方桌,不过屋主执念要张六人台……安排!当时因为白色面积过大把卧室墙面刷成了深灰色,配上宜家白色的书柜,倒是相得益彰。

在两个卧室拐角的位置购置了一个落地的置物架,这样可以收纳的位置就更丰富了。


住进去一段时间拍照的好处,就是到处都有生活的痕迹。有了生活的气息,空间也会变得灵动起来。

对面那户一直看着我们施工,等我们快完工的时候,他们就照着我们的设计对自己的房子动手了!我们无法避免抄袭,但是能让人去照搬的,说明是被认可的,对么?
这房子从开始接触到最后入住,前前后后应该差不多一年的时间,由于前期沟通得透彻,后期屋主给予了我极大的信任。 我非常感恩这份信任,因为我一直认为,一个家需要按照主人想要的样子呈现出来,一定是大家共同参与得到的结果,如果合作的双方有任何的存疑,都会导致最后结果的不美好。 我非常感谢这份信任,他们几乎接纳了我给的所有建议;而我所有的努力,都是为了在未来的时光里,在这个房子里历经的一切都能成为美好的印记,刻进每一个家庭成员的记忆相册中。
