
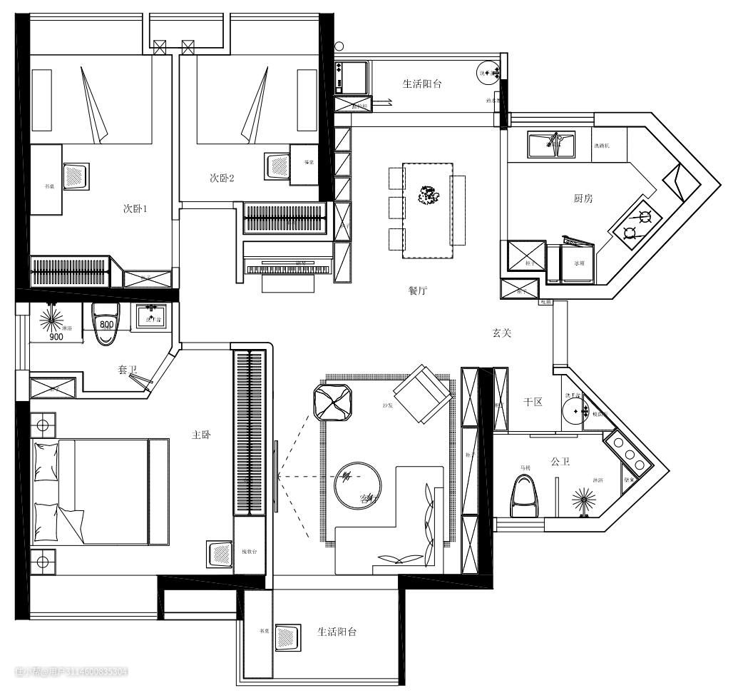
原有平面布局规划合理,因此在改造过程中,设计团队主要通过改动细节来优化居住体验,结合居者生活习惯安排收纳储物的位置,改善空间利用度。

①客厅的宽度足够,拆除客厅与主卧之间的墙,重新规划后让一部分面积给主卧做衣柜,实现客厅与卧室的双赢设计。生活阳台包入客厅,两者形成自然的延伸感,室内空间感舒适。 ②餐厅和钢琴区充分利用走道和主卧让出的空间,不同功能区很好融合,且动线更流畅,空间更具整体感。 ③上一任业主将主卫改成其他用途,设计师根据本案实际情况,重新规划出主卫。主卫房门做成斜面,避免卫生间棱角太强太生硬,让进入房门的视角更大更平润。

改造前光线不足,风格混乱,收纳较为凌乱。

设计团队运用了大量浅色材料,打造明亮简洁的室内空间,呈现与原有状态截然不同、焕然一新的新家。不做过于浮夸的表现感或设计感,只做经得住时间考验的居住体验。

在采光源不变的情况上,起居室用浅色系为主色调,让家里显得亮堂宽敞。沙发背后的储物柜主要作书架使用,透明玻璃柜门方便拿取书籍;下方则收纳不常用的物品。

客厅空间摆放一个转角沙发搭配单人椅,自由灵活;沙发背后柜体形式增加更多收纳功能。 天用设计团队将业主喜欢的各种元素,分解糅合,很好地融入家居空间。比如线条感,沙发、书柜、电视背景墙等都一一呼应,保证空间的和谐感。

亮眼的橙色单人椅,搭配自然朴素的大株绿色,阳光透过白色纱帘流淌进室内,营造舒适、安宁的阳台休闲空间。

玄关处望进来,起居室和餐厅分居两侧,以精巧细致的金色元素相互呼应。 走道尽头的挂画元素与空间各项元素契合,前方的长虹玻璃分隔出钢琴位,也避免出现玄关直望房门的尴尬。

餐厅以光和白色的配合,勾勒出朦胧的清透感;又选择较有厚重感的餐桌椅,使空间整体轻盈而不失稳重,符合三代共同居住的生活习惯。

餐边柜设计充分考虑居者的实际需求,选择大量的方便清洁的封闭式设计,中间留空方便随手置物;而半高的抽屉柜是为了不阻挡钢琴区的采光与视线。

利用柜体和长虹玻璃巧妙地制造凹位,来作为钢琴区,减少与其他功能空间混搭的可能,营造良好的练习钢琴的空间仪式感。

钢琴区

把厨房和餐厅之间的“ɔ”型墙体拆除,小区域分成两部分,分别做成玄关柜和厨房的高柜,弥补玄关无鞋柜的缺陷。厨房通过透明玻璃推拉门,在做封闭式厨房的同时,保证了厨房与餐厅之间的联系。

主卧以挂画的元素为参考来布置。大面积的白灰木色作为基调,使其成为让人放松的休憩空间;轻奢简约的线条和灯具,点缀其中的蓝色窗帘,让主卧从单调乏味中跳出来,很好地展现业主的有趣的个性与生活品位。

床头两边对称金色的装饰线和不对称的软装挂画和灯,以交错设计平衡空间的感受,让其灵动不乏味。

梳妆台

由于居住时间较长,设计团队为小朋友的成长需求预留出足够的改变空间。现阶段儿童房充满童趣感,墙漆的颜色与软装配置相互对应。

主卫将洗手台外移,同时增加一面顶天立地的储物柜,方便洗护用品的收纳。柜子下方以足够的高度支撑,避免水的侵染。长虹门、玻璃隔板让卫生间更加通透开阔,使用起来不会造成压抑感。
