相爱的两个人,充满仪式感的生活,一个大小刚好的房子,是很多人的心之所向,正如本案的业主,他们是一对即将结婚的恋人,把法式艺术与家融合,把日子过成浪漫主义的诗歌,甜蜜美满、和如琴瑟。 我们给这套作品起名《衡微》;衡,代表着北斗星,寓意美好;微,见微知著,意在表达设计的细腻精致。
项目地址 / 合肥 - 中海央墅 设计风格 / 法式 半包价格/38万 项目面积 / 300㎡ 设计团队 / 云端设计研发组 施工团队 / 合肥飞墨设计

时代的洪流翻滚而过,设计的定义从不是单一不变的,也从不是追求简单的美观;空间是丰富的,有层次的,无论是一个精致的装饰品,还是一栋房子的功能空间。
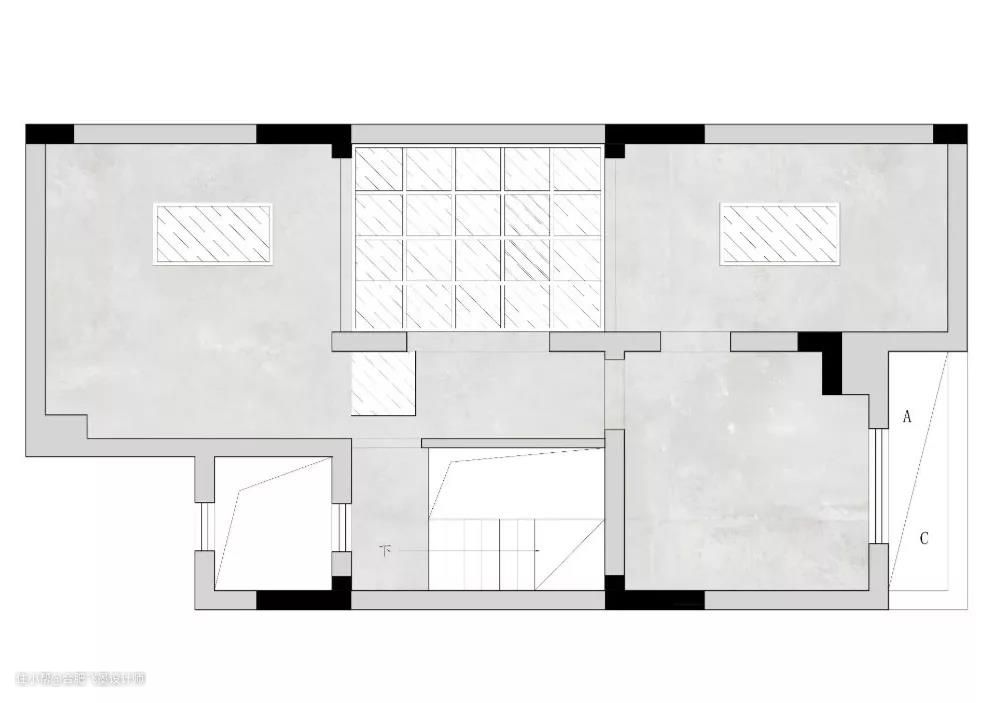
含负一楼在内,这是一栋5层的小别墅,负一楼主要作为屋主的休闲娱乐区,规划了健身房与家庭影院。 Before▼

after▼

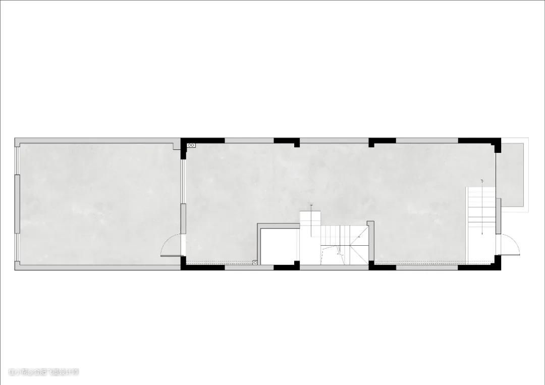
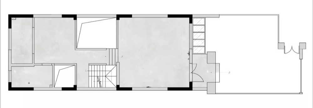
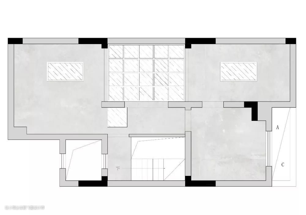
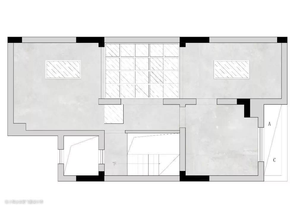
原始户型平面图▼

一楼主要规划了院落、客厅、餐厨与一个“鸡肋”天井。

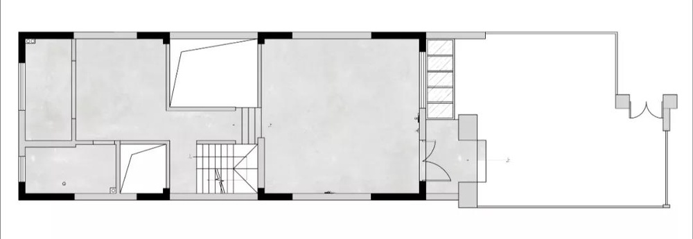
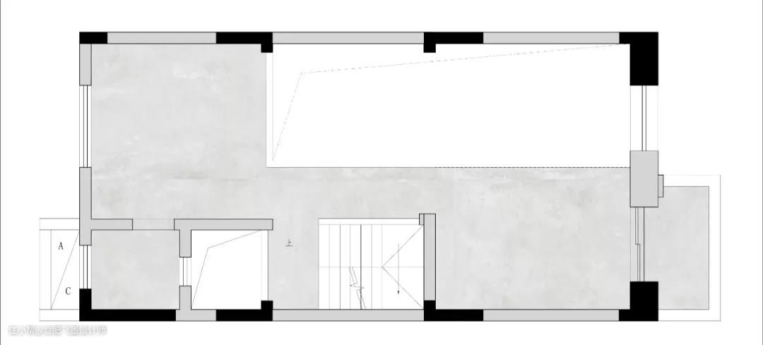
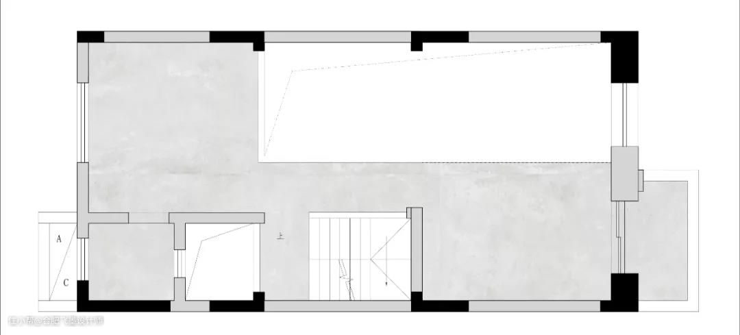
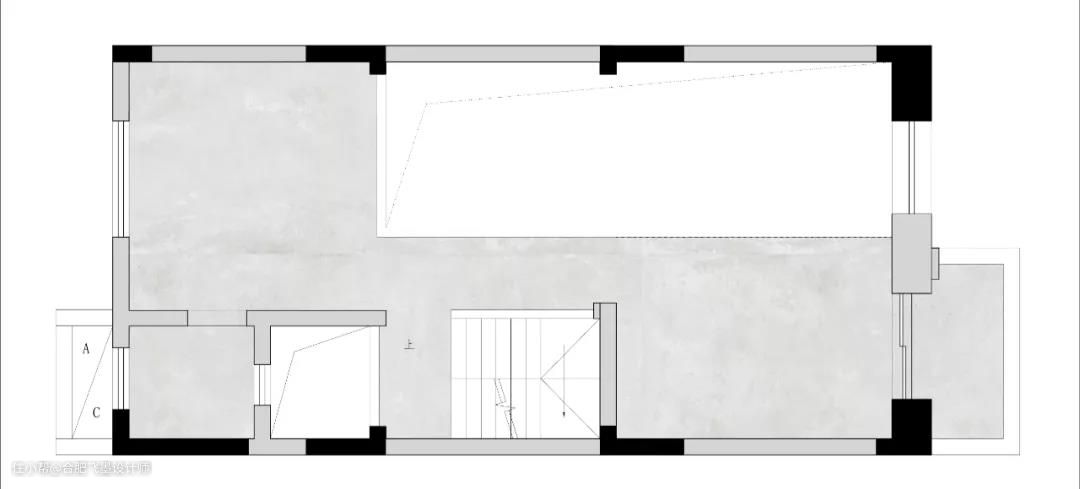
平面布置方案图▲ 从建筑的形态着手,深层次的感受空间的张力,将自然、生活、艺术,与这栋房子交汇,融合,重生。 规划多功能客厅,社交型餐厨空间,全屋安装影音系统;原始天井保留从一层到顶层的挑高,拓宽思路,把景观植引入了室内,设计为景观花园,增加了空间趣味性与生命力。

对于年轻的夫妻而言,生活的一切都是新鲜、美好、精致的,罗曼蒂克的浪漫从不是故事书里的几页纸,用设计打破思维的桎梏,予生活更多的可能与品质。 一排书柜,满足客厅的展示与阅读功能;

客厅吊灯:

电视不再是客厅主角,置于一隅给生活腾出更多的空间,大理石壁炉造型与黄铜镜搭配,复古浪漫;侧望天井,阳台和植物丰满视觉享受;墙面精美的石膏线条、复古黄铜摆件...无一处不精致,无一处不美好。


落地灯:


生活不是一成不变枯槁无味,艺术的气息、舒适的享受,也是人生的组成;阅览一本书籍,品味一杯咖啡,听一曲音乐悠扬,享一段曼妙时光;偶尔有客来访,整体雅致大方,不显奢华不失格调,人在其中,自在其中。



早起,磨一杯醇香咖啡,吃一片温热吐司,享受刀叉交碰的人间烟火气。 餐厅吊灯:

业主的父母在附近有一栋房子,所以业主不常在家做饭,餐厨的空间便不用考虑油烟的困扰,将小阳台扩入厨房,扩大厨房的使用面积,并将餐厅与厨房连接在了一起,做了一个敞开式的社交性餐厨空间


茶具全套:

餐厅的走道对面是一楼的卫生间,设计师巧妙的利用护墙板设计了隐形门,与墙顶的石膏线完美契合,既有隐私性,又有整体性,细致之处,方显精心。 护墙板与石膏线的组合,造价并不高,但却很容易营造出空间的线条感与质感,选择合适的方式,生活与艺术,并不冲突。

业主一直觉得天井是最鸡肋的一个存在,同小区的很多人都把它现浇成了房间;显然,这并不是从事艺术类工作的女业主想要的。千篇一律的设计既无法满足艺术造诣,也会影响空间采光。 对于房子,她更加注重光线的穿透、线条感的营造。所以,在设计师的建议下,将天井的顶部用透明材质封顶,保留原始的挑高,用玻璃做了一个围合型的室内景观,使大自然的格调融入室内,阳光填充空白,家,这个生活的容器,正因为不同,才更显个性。

静谧的午后,阳光穿过天井在室内跳跃,光影透过玻璃星星点点的洒在厨房的花砖上,洒在客厅的沙发上...把生活的底色摊开,是花开时的芬芳,是泥土上自由、温暖的味道,是最本真的幸福体验感。

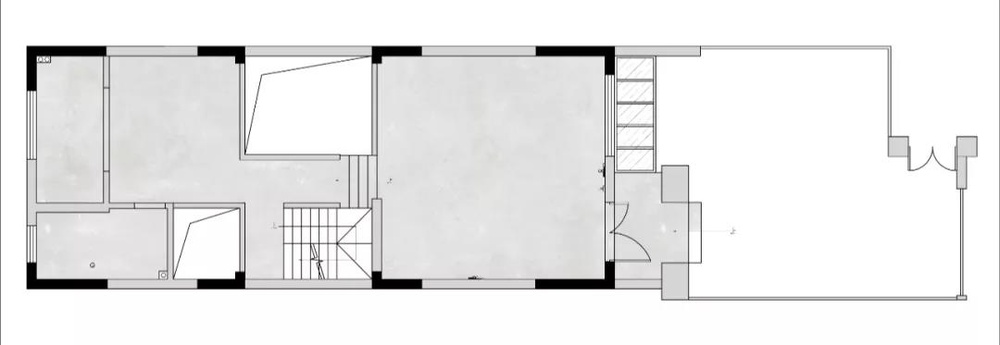
Before▼

After▼

二层是为儿童房与老人预留的房间,内部配备了独立卫生间,方便家中的所有成员都能便捷的起居生活。
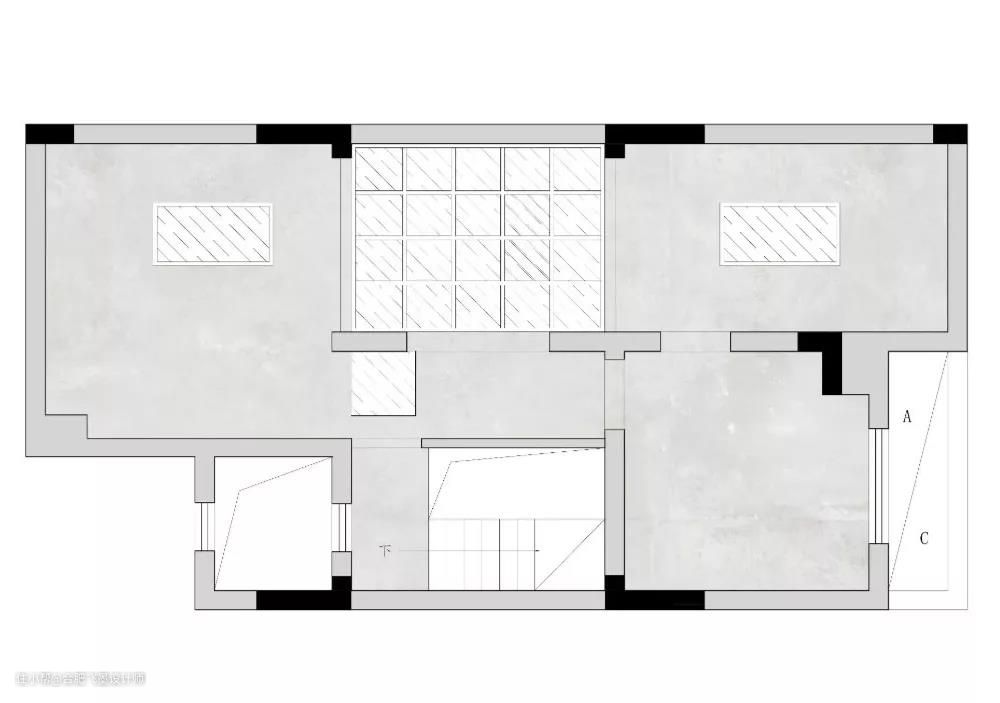
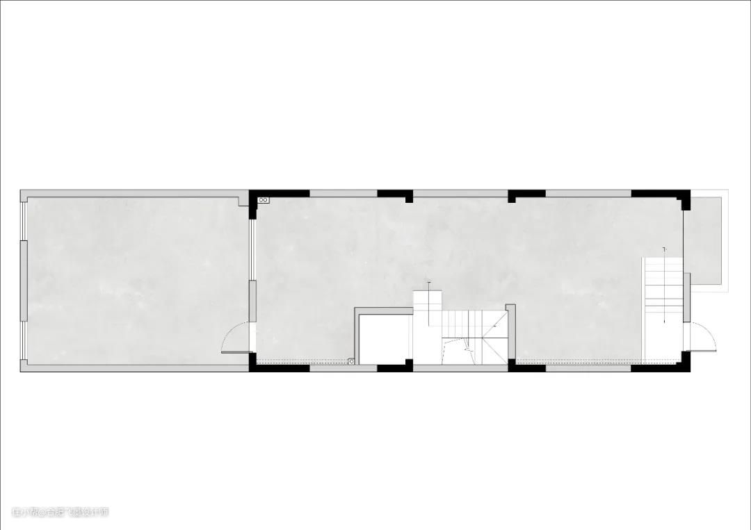
原始户型平面图▼

平面布置方案图▼

三楼一整层都作为屋主的使用区域,舒适的卧室配备了一个四分离卫生间,让三楼的舒适度达到最佳的状态。 女业主一直希望拥有一个大大的卫生间和衣帽间,我们把她的这个梦想在卫生间里都得以实现,卫生间内同时配备了衣帽柜以及梳妆台,满足多样化的生活场景。

原始梁体下掉过多,为了保证层高,我们做了一个圆弧造型的处理,完善空间的艺术性,有时候,正是因为不完美,才能成就别具一格的设计。 配色柔和宜人,细节精美雅致,家具大气舒适,予生活以舒适感。 主卧床头吊灯:


花瓶:


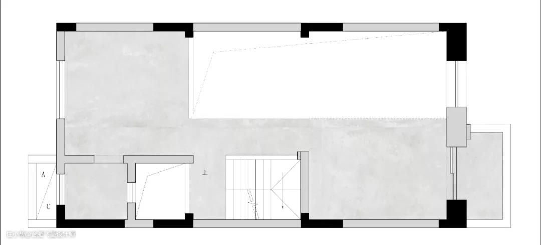
Before▼

After▼

女业主是一位画家,生活要与她的气质相匹配,于是在四层为她规划了一个超大画室,砸掉与天井相接的墙体,改为整面的玻璃,让光线在空间内更好的穿透;让生活的艺术与女业主的艺术气质相互成就。
业主二人,对生活的品质、艺术的造诣,有着自己的高要求;设计正是因为差异,所以独特;在全案的设计中,我们从材质、工艺、色彩、光线等多维度出发,寻求艺术与生活的平衡点。 通过对美的独特理解、对居住者的细致洞察、对作品的反复打磨,站在当下,观察居住者未来的生活,精准把握城市高净值人群对家的需求,让设计,历久弥新,打造国际化私宅范本。

总费用200万左右,硬装140万(含电梯),软装20万左右 大部分家具来自【合肥摆境家居】 ●部分软装清单

●柜门把手参考 衣柜柜门
