户型解析
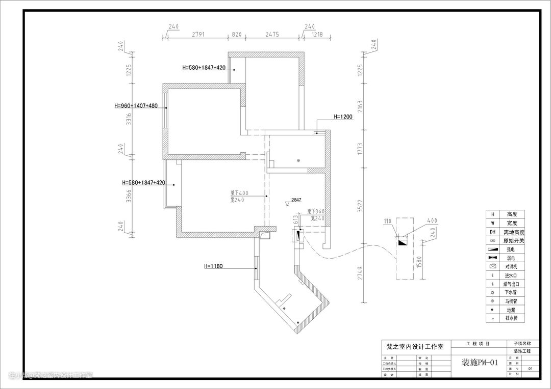
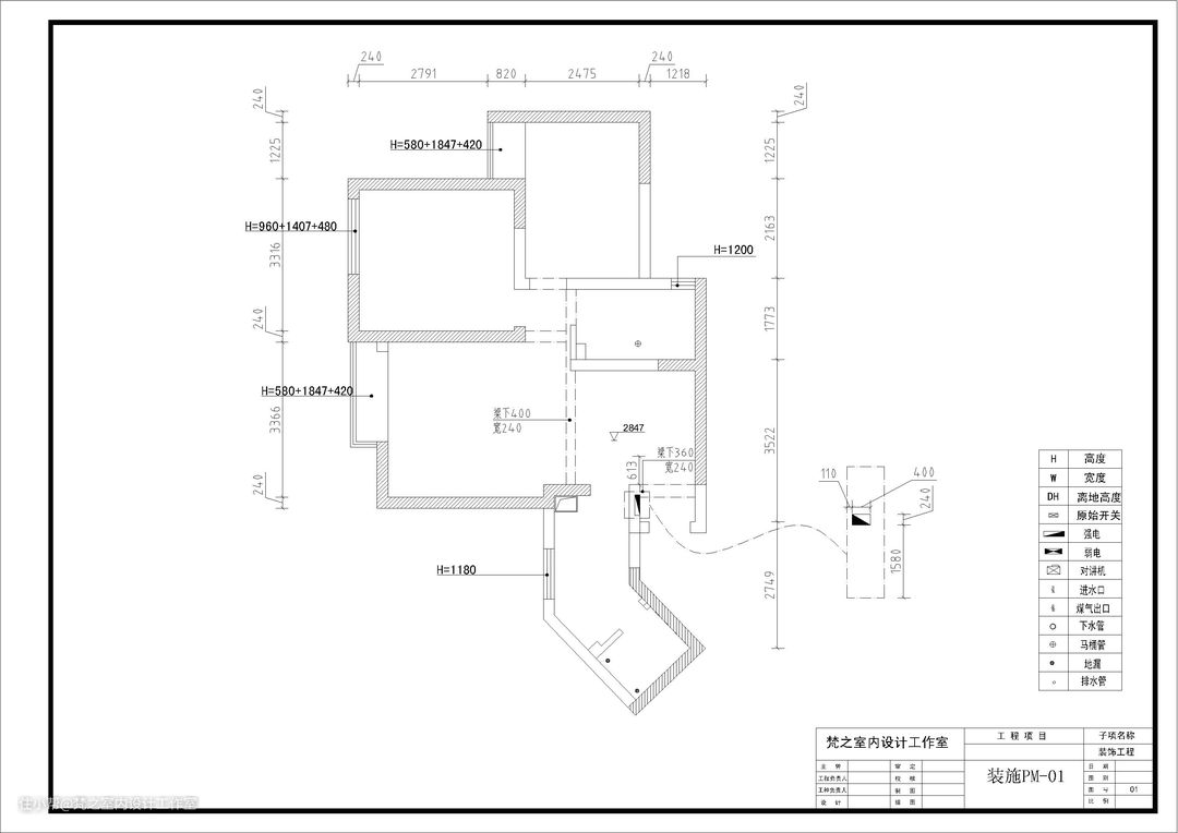
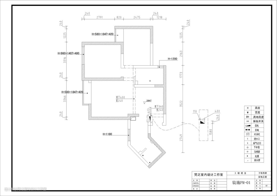
原始户型图: 原始户型比较方正,但是厨房偏小,放不下冰箱。而且厨房空间很小,不能做平开门。生活阳台也很小,放不下洗衣机跟洗手池。客厅沙发墙在厨房门这一边,不是很合理。

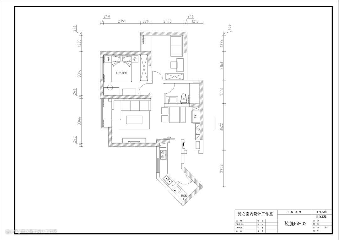
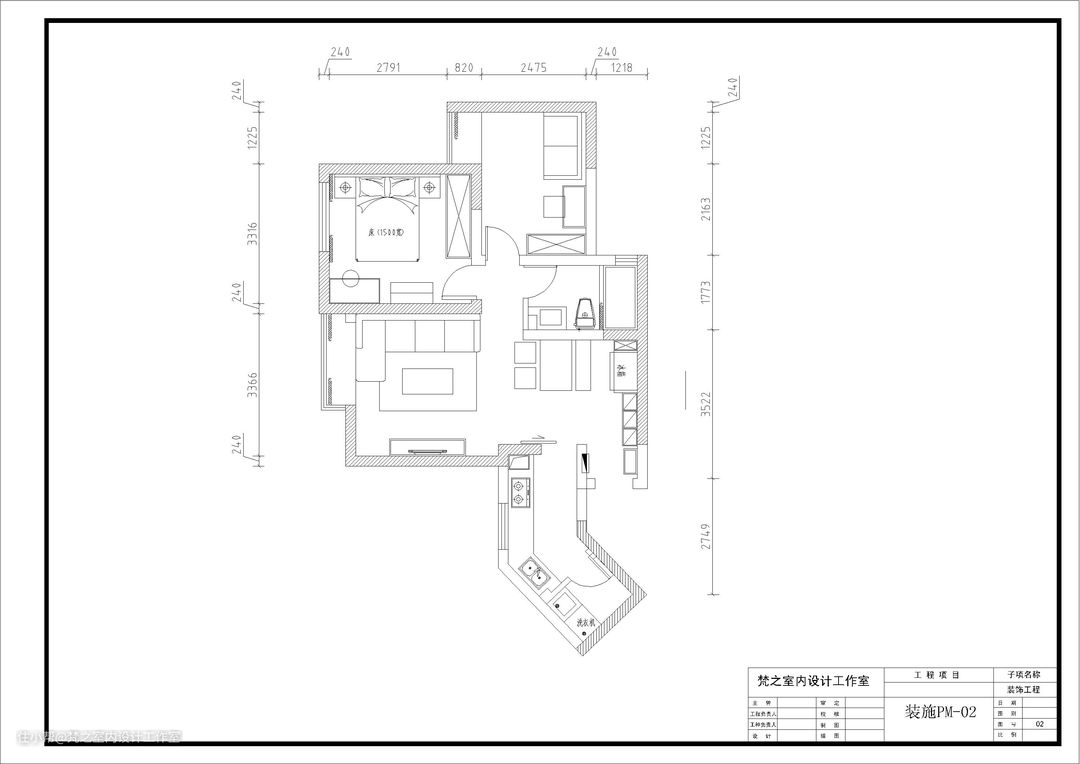
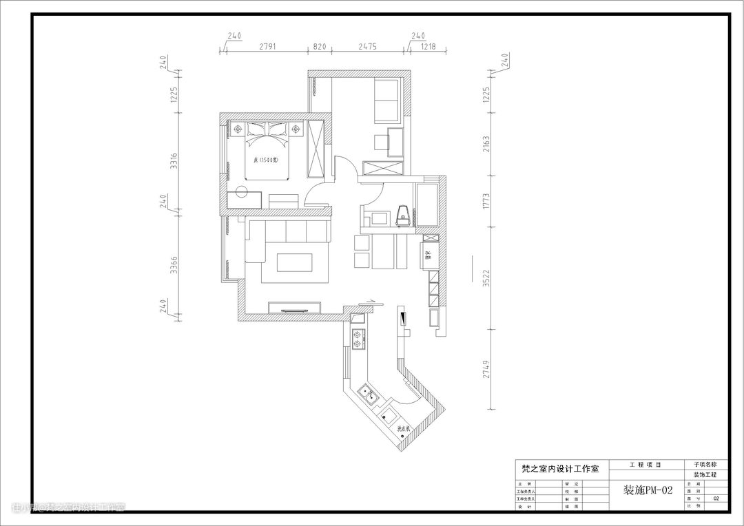
平面设计图: 厨房门做了推拉谷仓门,方便厨房的使用,增大厨房空间,生活设计了洗衣机跟洗手池,餐厅设计了整面墙的鞋柜跟储物柜,把冰箱内嵌储物柜里。客厅沙发墙跟电视墙换了一个方向。卫生间砌了一个浴缸,既可以淋浴又可以泡澡。

玄关
入户玄关设计了大鞋柜和储物柜,储物柜里内嵌了冰箱。

客厅
客厅沙发墙跟电视墙都刷成了深蓝色,从色彩上呼应。

沙发买的灰色沙发,配上蓝色的抱枕跟沙发墙非常搭配,沙发墙设计了置物板,放一些小饰品。

从客厅看餐厅。

从客厅看餐厅,非常的大气。

电视墙也没有做任何造型,设计了隔板,可以放一些小装饰品。

厨房谷仓门颜色是粉色,跟蓝色的墙面形成强烈的反差。

餐厅
餐厅墙也是深蓝色,配上粉色的置物架,颜色上形成非常强烈的反差,餐厅灯也是金色的,非常具有轻奢感。

餐厅的小装饰品。

厨房
厨房墙砖是小格子白色砖和粉色的砖,地砖是灰色六角砖,非常的具有个性。

主卧
主卧背景墙选的树叶花纹的墙纸,非常具有个性,床上四件套跟窗帘也是绒布,非常具有质感。

卧室床头设计了高地错落的吊灯,非常的具有设计感。

床是选择的金色床,和整个房子的五金件颜色一样的,非常具有感觉。

女主人非常的上镜。

卫生间
卫生间墙砖跟厨房是一样的,墙面是白色跟粉色的小格子砖,地砖也是粉色砖,浴帘也是选择的粉色的,五金件都是选择的金色,非常具有质感。

