男主程序猿,生活被工作填满,少有的空闲时间喜欢美食、烹饪及跑步; 女主是老师,拥有规律的作息,偶尔在家办公,大部分居家时间喜欢绘画和手工艺。 是安静且宅的夫妻俩,节假日会一起做饭、收拾、看电视;工作日女主人就会安排自己学习或运动,默默等男主人加班回家。 俩人都喜欢干净、简洁、温馨的风格,设计师从业主需求出发,以白色及原木色为主色系,量身定制。 家,不是公司不是学校,它是一个港湾,它是你最想要的样子
Before-原始结构图

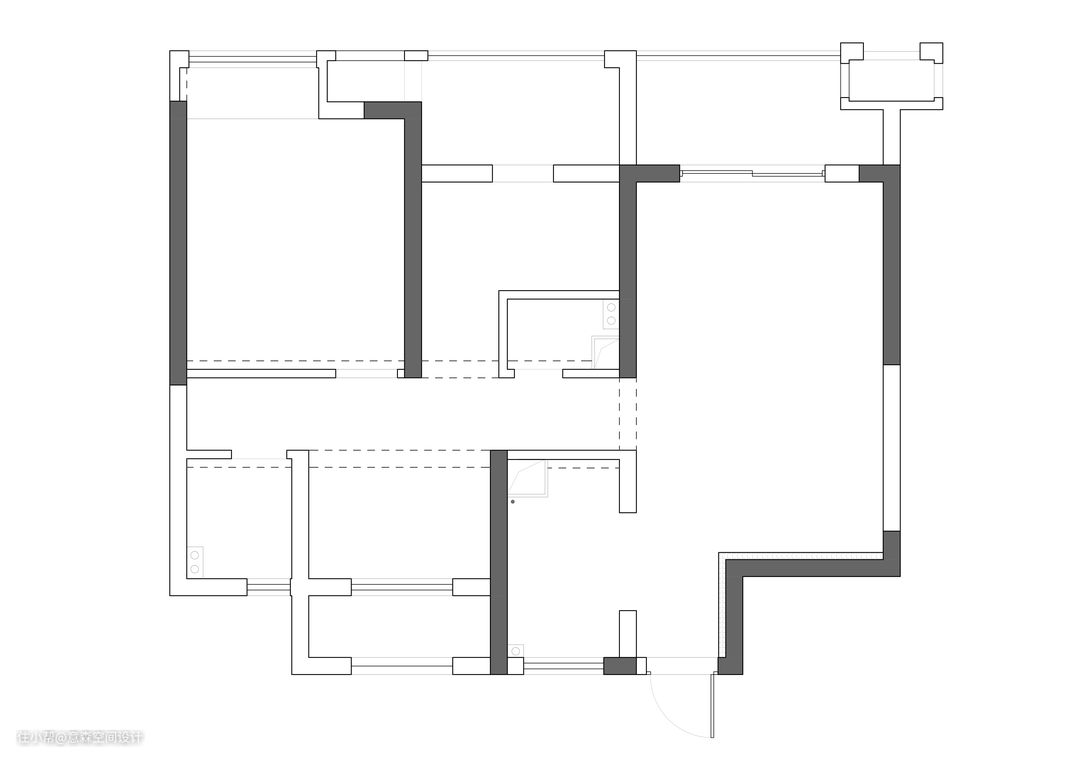
After-平面布局图

玄关紧挨着半开放式厨房,用地面材质,自然切割出了这片区域 左右两侧分别设有置物架、全身镜及收纳柜 不管是出门之前整理仪容还是归来之后脱帽换鞋,都方便至极

厨房和玄关用了同色的黑白地砖 既美观又易于打扫 将厨房与客餐厅进行了视觉上的区分 厨房满足了喜爱下厨的小俩口对集成灶、净水器、垃圾处理器等一系列的需求 烟道位置设计师改成了留言墙,沿用整体风格

目前小俩口自己居住 未来的2-3年内会考虑宝宝以及老人的加入 设计了收纳足够的餐边柜以及四人位餐桌,以满足未来的需求


客厅挨着餐厅及阳台,视野贯穿 中间无隔断的设计将自然观引入室内,增加采光

L型沙发和可移动茶几的配置 为宝宝的到来做好准备

白色+木色的壁龛 舒适且整体性强 同时兼备强大的收纳功能

木色奔跑于灰白之间 贯穿于私密空间 黄色的点缀 让沉稳中带有一丝活泼

小巧精致的梳妆台 让女主人时时刻刻都美美的

飘窗功能强大 喝喝咖啡看看书,也可做做手工或画画 岂不快哉?

出于职业需求 小俩口都需要书房 足够好的采光 足够大的书桌 办公学习的好去处


生活阳台沿用玄关厨房的地砖 有种首尾呼应的感觉 日常的洗晒工作都可在此完成


卫生间在走廊尽头 主卧、次卧和书房都很便利 电热毛巾架、壁挂马桶、可抽拉水龙头、恒温花洒、大台盆 业主的需求,设计师统统安排

加大的台盆和可抽拉水龙头是出于未来宝宝洗澡方便的考虑 同样这长长的置物架也给未来宝宝做好了准备

