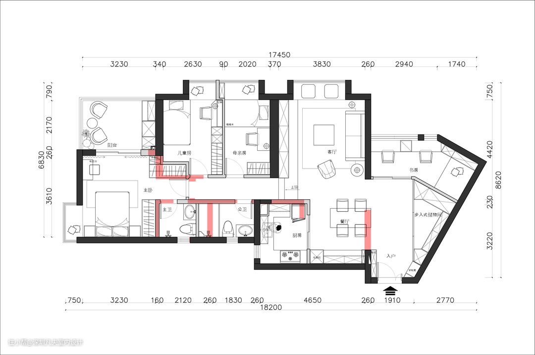
整个设计最大的亮点,更多的在户型改造上,入户异型空间的处理,将书房部分平行墙体,再将三角形部分刚好作为一个储物空间,这样,从入户进来完全看不出户型的异形感,书房的了两扇推拉门让光线充分进入到玄关,解决了原来入户的采光问题,其次主卧的适当借用儿童房的空间,将儿童房的不好用空间给到主卧,虽然只有60CM却让主卧多了三门衣柜,以及两个洗手间的尺寸取舍上,因为尺寸的问题,我们保留了公卫的足够舒适度尺寸,主卫放弃常规淋浴房的设计,只作为备用冲凉使用,将空间的利用率做到最大。 包括书房,由于尺寸的问题,我们书架特意让开榻榻米的空间,让书房又能在来客人的时候可以充当一个客房。


我们把平面上原始结构用红色的表示出来,这样,可以看出我们在格局上的一些调整,因为这些小的调整,让空间有了翻天覆地的变化。在后续的图片里我们有详细的介绍。

整个空间的收纳也是一个亮点,我们做了一个储物空间的数据计算, 在这个110平方的空间里,整个空间的投影储物面积居然达到了30平方左右, 如果算立体容量的话,居然高达50立方的收纳空间, 也就是说差不多半个房子面积的收纳空间。

整个设计最大的亮点,更多的在户型改造上,入户异型空间的处理,将书房部分平行墙体,再将三角形部分刚好作为一个储物空间,这样,从入户进来完全看不出户型的异形感,书房的了两扇推拉门让光线充分进入到玄关,解决了原来入户的采光问题.


还有就是厨房面积不大,我们在餐厅这面结合鞋柜做了一整面的餐边柜,将西厨功能延续出来,让厨房空间得以延续。我们拆除了餐厅和入户过道的墙,把鞋柜和餐边柜融为一体,模糊掉餐厅和入户的关系,于是餐厅的空间就可以借用到过道的共融空间,这样,餐厅看起来就特别阔绰了,解决了原来餐厅过于狭小的问题。


换鞋区:利用斜角巧秒的做成一个换鞋空间。

鞋柜和餐边柜的完美结合,形成对称式餐边柜,满足厨房不大的西厨延续功能,餐厅和玄关的共融,让空间显得特别阔绰。

异形入户处理后,完全没有异形的感觉,空间方正,而光线充足。

如此强大的储物间,就这样悄然的隐藏在这干净整齐的墙板之后。

三角形储物间终于露面了,无比强大的收纳能力。


细胳膊细腿的灯,茶几,沙发,让空间更有设计感。

太强大的储物功能了,却丝毫不觉累赘。

这个电视背景拥有三大功能,看书,看电影,储物。

这不就是1平米阅读角吗?让日常阅读成为习惯。


踏步和大理石的处理底座的处理,第一解决了三步楼梯过于累赘的视觉感觉,让柜子脱离开瓷砖地面,避免拖地影响柜子的寿命,其次就是增加了一个可以席地而坐的地方。


这个西厨区几乎承载了客户生活的大部分操作,完全解决中厨过小的问题。生活极其便利,强烈建议每家都应该有这样一个地方。


鞋柜和餐边柜的结合,扩大了视线,让空间更加协调。

生活源于细节的美好。


中厨

侧面式设计水杯位置,让杂乱不对客,方便又美观。

干净而舒适的卧室,阳光明媚,北欧表情的产品还是挺给力的。

连妆台的壁灯都和画巧妙的搭配在一起,毫无违和感。

局部开放的挂衣空间,可以放置当天的外套或者手包,十分有必要,靠床头柜衣柜的分柜门设计,让空间更方便使用,避免床头柜遮挡整个柜门。



生活的美学,有了好的收纳,家里才能总是那么干净整齐。

听客户说,这个摇椅跟了他们家好多年,我想这就是家的味道吧。

可摆动台灯满足了阅读和缝纫的需求。

满满的回忆,蒲扇,老款温度计,老花眼镜,以及华南牌缝纫机。



一个人的空间,自在舒适。


小孩房,干净清爽,有展示,有收纳。

虽然不大,却功能强大的书房兼客房。

闲暇之余来场亲子围棋,爸爸在旁边吉他伴奏,该何等惬意。

柔和的光线下,无比宁静。

生活其实也可以很精致。HAY的宣传册也可以当拍摄利器哦。

阳台超大容量的洗衣机柜,洗手台,烘干机,洗衣机,储物柜,拖把池,一一具备,忘记拍洗衣机旁边这个柜子是如何和拖把池完美结合的了。下次补上。


扩大后的公卫,阳光而舒适。

强大的储物

多功能使用

