越多越多的人喜欢简单的东西,更多的把实用性放在了装修房子的首位。我们这位业主也不例外。业主一人住这套房子,并不考虑把过多的空间拿去考虑做客房,怎么自己使用舒服怎么来是宗旨。重点提出了几点要求: 1、装修后呈现的质感 2、居住后的舒适度 3、色彩上的美感。 接着就来说说我们的交谈过程:业主和我们谈装修的时候压根没说自己喜欢什么样的感觉。我们各种聊的内容就是怎么去保证睡眠质量,怎么保证装修出来以后所有的产品呈现出质感,怎么考虑洗漱空间有收纳功能。不过后来似乎这样的沟通更能去了解业主对于房子的构想,而且也更加能理解的业主对房子的整体考虑。这也许更是我们和其他业主去沟通的另外一种方式。当你完全的掌握了业主的方向后再提出设计的方向,基本没差!

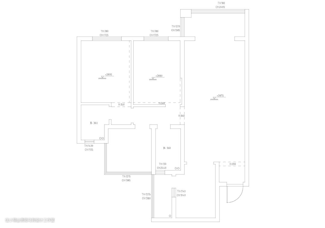
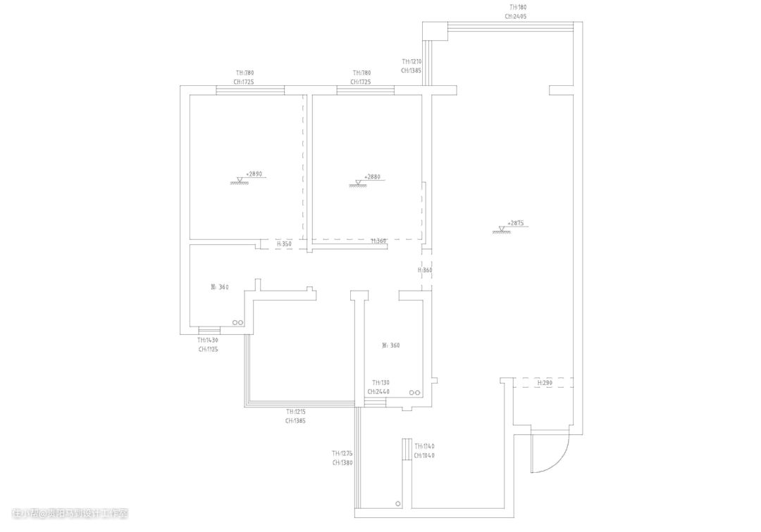
原始户型图上有两个小问题。 第一问题是主卫比较小,但是又想做到干湿分离。 第二问题是厨房到生活阳台的动线影响到了厨房是使用空间。

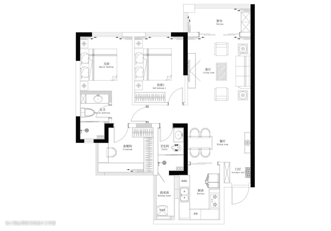
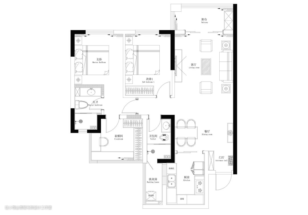
修改后的平面图很完整的解决上房屋上的缺陷。 1、次卧改为衣帽间,做成套间后,把原本的主卧衣柜空间拿给了主卫做洗漱台,解决了干湿分离的同时,充分收纳了所有的卫生间杂物。 2、厨房原来的门封掉了,从次卫走生活阳台。厨房功能应有尽有,从洗碗机到蒸烤箱都一应俱全了。 3、因为是单人住,所以我们并没有加大鞋柜的面积,把进门的所有空间放空。

鞋柜中间部分和底下部分都做了灯带,方便拿取鞋子。

蘑菇换鞋凳。#玄关

真正开始入手设计后,我们先分析了基本的设备需求。地暖、空调、新风、净水四大板块中,地暖是必须项,认真分析后,摒弃了空调和净水,加了新风。原因比较简单,贵阳天气不热,新风加入后一定程度的调节了室内的温度。净水的设备比较多,生活阳台空间不足,自然会影响到后期的晾晒问题。 这里重点给大家说下新风,为什么选择新风,业主家的房间比较靠近马路,晚上睡觉一定得把窗户关上,卧室内的气流不通畅,装上新风完全是改善睡眠质量的保障,所以毅然决定下来。#客厅

整体的空间设计都偏向简易的灰调,不论是电视机背景墙还是沙发背景墙都是用石膏线条来修饰墙面。这里要给大家说下,如果真的比较重视墙面的质感,一定要选择比较理想的乳胶漆,好的乳胶漆成膜很好,这样才能保证墙面滚涂以后呈现出理想的肌理。#客厅

灰调确定后,一定会选择跳色,和业主也比较合拍,很快的确定了很正的橙。#单椅


如果觉得家里比较空的装修朋友,还是建议买一张地毯,这样就可以使得空间更有呈现。#石膏线条


落地灯非常重要,除了解决客厅看书的光源问题,装饰上也是锦上添花。#落地灯


这块橙色是整个家里设计的重点,我们按效果图上完全的做了还原,找到了厂家定制了一比一斗柜。搭配了最合适的植物。这里也是全家的最亮点部分。#客厅


放空的空间被橙色占据后,并没有丝毫的觉得浪费。#餐厅

厨房的采光由于受到生活阳台的影响,在切菜区我们做了灯光补充,正常在实用上做到尽善尽美。#厨房

这里也给大家说下我们厨房的电器选择:四门冰箱→因为分类会更加清晰;洗碗机→现在的洗碗机已经很实用,真正意义上的解放双手;蒸箱→做西餐不多,或者不是专门要做焗饭或者披萨的情况下选蒸箱会更实用一些,小的烧烤可以买台面上的小烤箱;分体的烟机、灶→和整体贴合度高,比集成灶好看

业主对睡眠质量的要求比较高,为了达到舒适度,做了以下几个调整: 1、背景墙的暗色系处理,然后蓝色比较安静,调整空间的氛围; 2、窗户更换比较好的隔音窗户; 3、床垫选择比较好的品牌,睡眠时和人体的贴合度更佳。 #主卧

黑白的线条感猫猫挂画。

业主的阳台是小花园,各种小花还是培植阶段。#阳台

卫生间我们这里也来说说为了体现质感的几个要点: 1、瓷砖的凹凸纹理感(材料的选择) 2、以大替小,改善空间感(瓷砖的铺贴方式) 3、重点规划颜色对比差,分割的空间用不同的颜色去做表达(设计的表达方式) #卫生间

墙面的瓷砖统一用了1200*600的上墙铺贴。淋浴间的瓷砖不同于外面,我们用了白色的细条纹做独特的点缀,让空间自成一派。#卫生间

这张照片是用来重点说明凹凸性的哑光瓷砖,在灯带的作用下特别显高级。

次卫的卫浴柜的选择和客厅的斗柜一样,黑色金属细条腿,纯白的磨砂台面。

现在更多的衣柜考虑以挂为主,之所以正面的柜子做的高度超过了梳妆台的高度,是一个挂衣区。 黑色的镜面玻璃门做点缀,当然必不可少的加了灯光方便拿取衣物。#衣帽间

所有家具购置后补的小椅子,简单,舒适。#衣帽间
这次作品的灵感来源是有一次看到一个视频,说的是在一个很完整的素描作品上突然来了一道很鲜艳的颜料,显得画面感更加生动起来,也更加有想象空间的发挥,然后也想着家就是画卷,也可以来这么一笔。
