其实本案业主孙姐是原来的客户介绍的,他们是同事也是朋友。孙姐看了他们家的设计改造和风格觉得比较喜欢,之后也找到我们,对于黑白极简的风格定位是一开始就比较明确的。

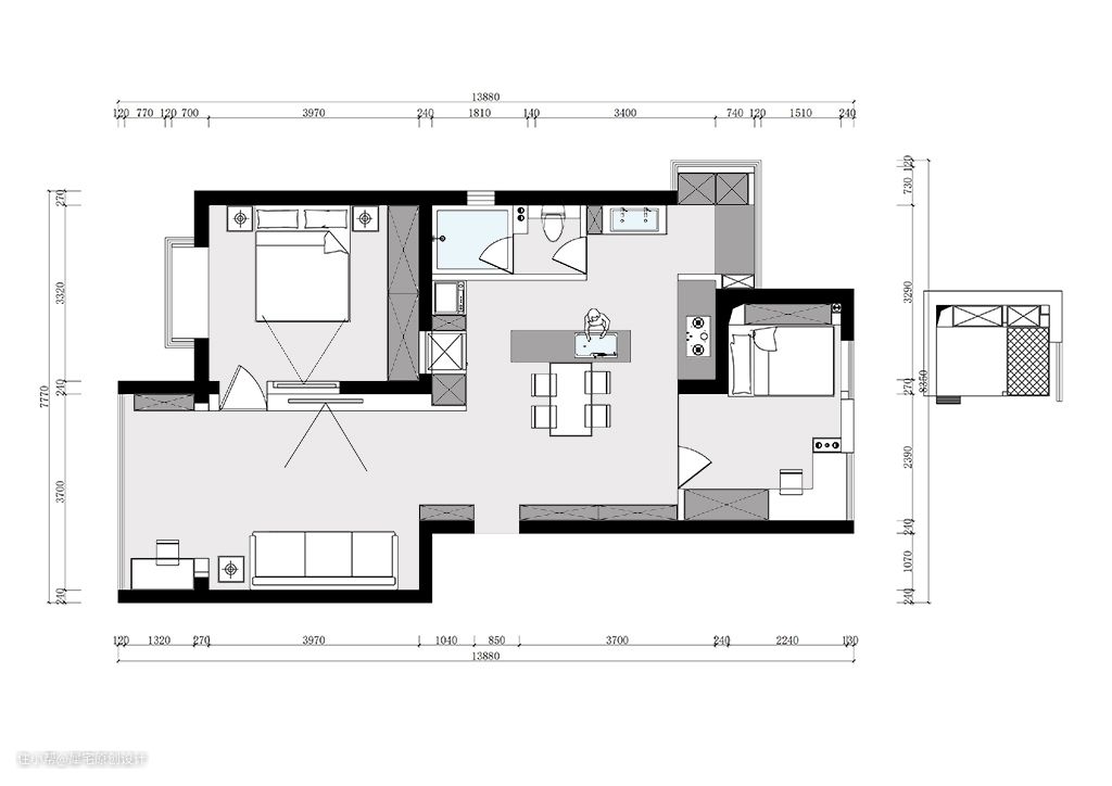
传统的三口之家居住,孙姐特别要求就是想进门的时候视野可以开阔一些,储物空间多一些,因为鞋子、衣服比较多。

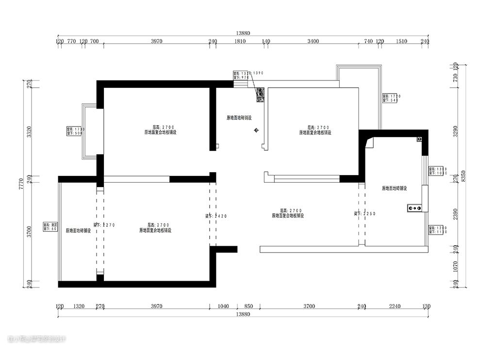
改造的中心思路是以餐厨为中心,客厅/房间/卫生间围绕式包围餐厨空间,将次卧室打开变为开放式厨房区域,原本通厨房的过道还是保留作为餐厅及鞋柜区域。

第一次去看房子的时候,进门正对着的是次卧室和卫生间,上家为了进门的采光,将次卧室的隔墙变成了玻璃,进门其实也是过道餐厅的位置,所以空间上会比较局促,动线也比较常规,很多空间被浪费了。我们通过重新改造,提升视觉感和空间感。


我们把厨房和次卧位置调整,相当于把原来的次卧和客餐厅整合成一整个公共区域,大大提升了整个进门的视野感和通透感。

在整个空间基调上,本案主要以黑白灰的色调及各种灯光的配合去呈现出来的。进门过道从顶到鞋柜上的磁吸灯,起到一个空间区域的指引和柜体照明作用。

大部分情况下家里之所以显得乱主要是出于收纳空间不足,就像之前因为入户没有玄关柜,所以门口堆满了每天换下的鞋,但拥有一整面的鞋柜之后,足以放下上百双鞋,再也不用担心门口乱了。

改造后,整个格局其实是以厨房为中心。借用一句广告语:一个人的生活因为柴米油盐变得更加生动,而两个人的生活因为柴米油盐变得更加温馨。

全屋除了灯光以外,唯一的装饰是对着入户门的一幅画。因为整个空间都是横平竖直的感觉,设计师特别以亚克力材质为底板绘制了一幅弧形线条的油画,为空间增添一丝趣味,还和儿童房形成了色彩的呼应。


原本的次卧室被打开以后,飘窗怎么处理其实是一个很大的问题。因为这个飘窗高45公分,成L型,是一个采光点,但是除此以外没有功能上的有效利用。 我们最终是将靠西面的一段窗户封住,刚好利用原本的高度及空间,变为一个电器高柜,靠北的窗台加了两个抽屉,正好可以形成一个操作台。牺牲一小段采光点,换取更多的功能区域,这也是设计中的一个抉择吧。

另外,次卧室打开后,卫生间也可以形成干湿分离。


客厅照明都是以辅助光源为主,顶上的磁吸灯,背景墙的暗藏灯带,及沙发边的落地灯,三种灯光配合形成一个从顶到地整体的客厅照明系统。

极简的线性灯形式既能和整体风格完美融合也能很好的烘托气氛。

只有黑白的空间难免显得清冷,装饰壁炉的设计在冬季可以调节空间气氛。

电视背景墙上隐形门设计确保背景墙整体感,后面隐藏的是主卧。

沙发旁的吊灯来自进口品牌flos,光色、角度都可调,能够适用不同风格和空间。

阳台设计了书房,另一面是大储物柜。屋主特别注重收纳功能,我们贴合当下大部分人的储物习惯,每个区域都有相对应的储物空间。进门一大面鞋柜加上衣帽柜,厨房储物柜,干区储物柜,阳台储物柜,卧室大衣柜等。

书房也延续黑白极简风格,采用定制铝板制作书架、书桌。


主卧室的照明设计也是这样一个原理,灯光不单单是一个照亮的作用,也起到调节空间氛围和装饰的作用。

隐藏灯带倾斜一个小角度可以打出更漂亮的光影效果。

用硅藻泥做出的装饰背景,简洁环保。床头隔板正面做一个倾斜的切面,视觉上会显得更轻盈一些;

窗台也采用铝板包围,比起普通的大理石窗台板更为时尚美观。

儿童房的改造是比较有意思的,分为两层空间,做了一面攀岩墙,兼具休息、学习和娱乐功能。



