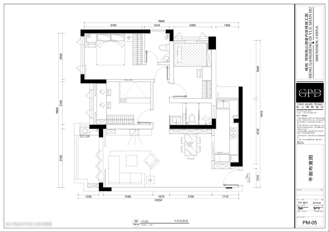
户型解析
房主是五口之家,为了让小孩以后读书方便,便买下了这套学区房。89㎡的房子面积不大的情况下,需要保留三房,给孩子的成长提供足够学习和玩耍空间。设计师根据房主需求,将空间利用最大化,提高居住舒适度。因为面积有限,房主不喜欢太厚重的感觉,喜欢简约,住的舒适。 ①厨房空间狭小,生活阳台实用性不高。 ②厕所的面积不大,空间相对局促。 ③户型南北通透,采光好。 ①把原来连接厨房空间的生活阳台打通,扩大了厨房空间,提高使用舒适度。 ②把主卧厕所的墙往外推出了一些,扩大了厕所面积。 ③阳台做了封窗,延伸到客厅,让客厅更宽敞明亮。

客厅
客厅无主灯,用大量的射灯和氛围灯作为辅助光源,整体的色调营造出一个简约清新的居家环境。无需夸张的装饰,运用简单却不失细节的布局和设计,让空间视野更开阔。

主卧
主卧营造一个高级整洁的感觉,整体是一个黑白灰色调,特意做了个圆形嵌墙夜灯,配以深咖色的木作,展现主人品味。

次卧
为了空间利用最大化,客房为榻榻米设计,增加了储物空间的同时也保障了一米五的床的空间。局部点缀跳跃的绿,活泼不失品味。

儿童房
儿童房打造成了绿色自然的空间,使用动物玩偶作为装饰,亲近自然又充满童趣。在色彩明亮的绿色基础上增添了柔和的粉色,彰显了小公主向往的浪漫情调。

其他
客厅实景图

客厅实景图

客厅实景图

客厅实景图

厨房实景图

次卧实景图

次卧实景图

儿童房实景图

主卧实景图

