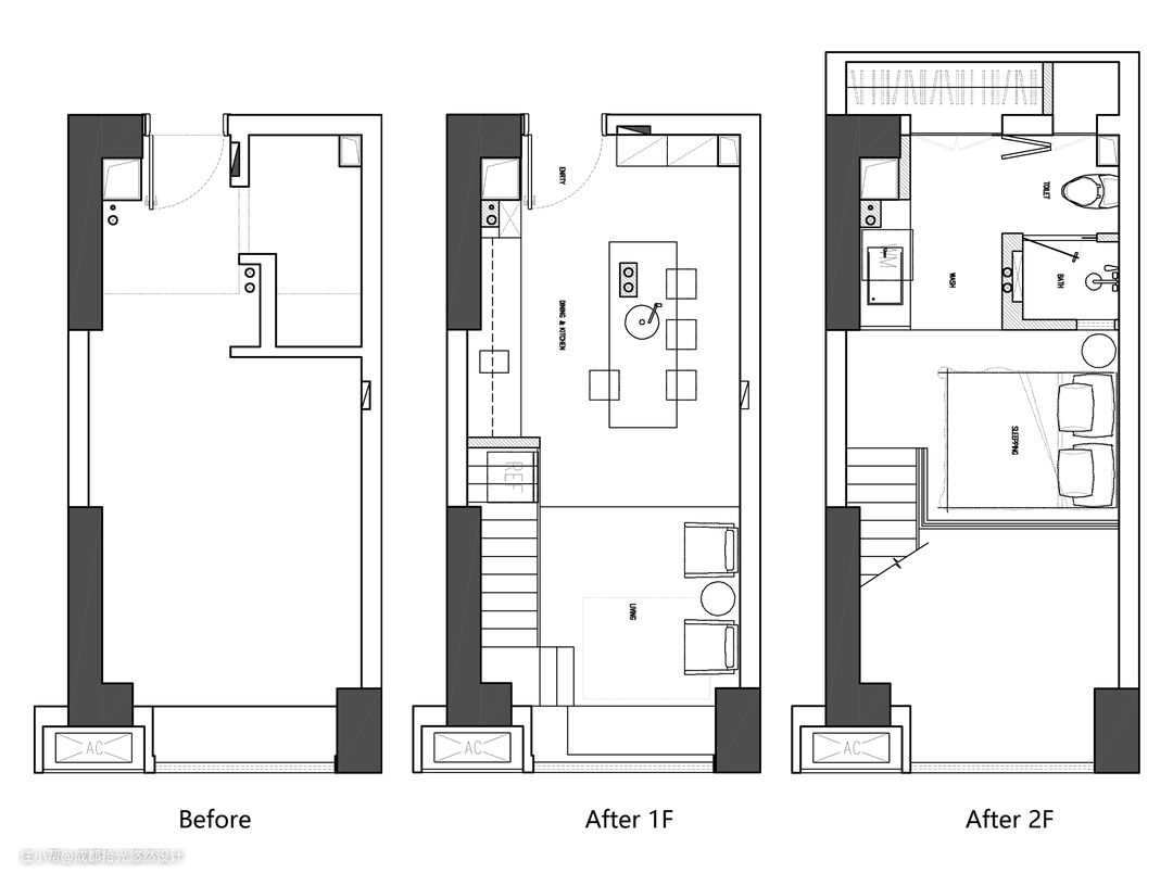
▂ 屋主需求Ⅰ ● Demand 1. 层高4.8米LOFT公寓,套内面积仅20平米,单面采光,东北朝向。 ● Solution 1. 利用4.8米层高搭建了二层空间,将客厅规划到窗前,并做了挑高处理,联系起两层空间,也将采光无阻碍的引入室内。 ▂ 屋主需求Ⅱ ● Demand 2. 卫生间排污管位于中部,想拥有轻度使用的烹饪功能。 ● Solution 2. 将排污管包成方形,与吧台餐桌结合,并与橱柜一同组成开放式的餐厨空间,满足轻度餐厨功能需求。 ▂ 屋主需求Ⅲ ● Demand 3. 可满足使用者娱乐、餐饮、休闲、轻度工作,满足使用者中短期的舒适居住。 ● Solution 3. 一层整体为“动区”,使用者各种娱乐活动可以在这里进行,并与二层“静区”分离。

今天这间民宿的拥有者是一对可爱的小两口儿,也许是认同我们的价值观,第一次见面就愉快的委托我们来设计他们期待的小民宿。原本一套作为投资性的公寓,脱离了传统网红民宿的气质后,在他们的期望中越来越充满家与爱的独特味道(就有内味了)。 在设计的交流过程中对他们理性、直率的性格留下了深刻印象。 虽然这个过程里面临了不少挑战,但都被我们一同克服,最终不负期望,将设计完美落地。这个以家的标准严格打造的暖宅,所使用的部分东西品质甚至超出屋主的常住宅,甚至我们一度忘记了这是间民宿。


玄关鞋柜为壁挂式设计,悬空的鞋柜下考虑使用者进门便方便的完成脱鞋换鞋归置的一系列动作,保持鞋柜前通道整洁,哪怕是一间投资性公寓也要从私宅的角度考虑使用者的感受,这个容量可满足客人中短期居住的需求。 鞋柜旁边设计全身镜,无论是中长期自住时的日常生活、亦或是短途旅行至此的人们,这面镜子就是人们美好穿搭的记录者。



吧台与餐桌相互结合,小水槽就近设计在吧台上边缘,无论是吃一份简餐还是水果,有了它的存在就不用手忙脚乱的准备食材和清洗餐杯、水果了。 2.2M长的实木大吧台不止一日三餐那么简单,与小伙伴们开个party不在话下,还可以围着桌子来几局卡牌游戏。 吧台与对面橱柜一起组成开放式餐厨空间,满足使用者轻度餐饮,左边的冰箱门上,写着小两口对即将到来的客人的祝福与期待。




飘窗与沙发结合设计、联系上地台、带置物空间的楼梯的设计,界定出客厅的新范围,也减低了原本过高的飘窗的高度,让飘窗变成了舒适沙发。 从俯视的角度看客厅全局,两把具有东方气质的黑色Y chair与剑麻地毯、脏橘色坐墩,在客厅里围合成互动性的休闲空间。

利用楼梯间隙设计的置物架,整体材质使用板材比起做储物柜性价比更高。在大小不一的置物柜中安装了电视,满足使用者观影需求。

亚麻灰窗帘从二层直接垂向一层,夏天的风流淌进客厅,空间仿佛也随着窗帘一起轻盈惬意起来,盖毯、地毯、抱枕等棉麻布艺,与藤编材质一起为空间注入了自然氛围。 靠着抱枕,在地毯上席地而坐,与同伴或畅谈人生,或分享旅途见闻,岂不美哉。


半透的锤纹玻璃扶手给二楼的睡眠空间增加了更多的通透性与氛围感。 在玻璃扶手旁摆放上1.6米的双人床搭配气质棕的软包大靠背,提升床品舒适度。

睡眠区与浴室仅一墙之隔,给舟车劳顿的人们提供便利,清洗掉在外的疲惫,转身便能投入柔软亲肤的床品,感受裸感优质的舒适睡眠状态。

站在床边与处于一楼的小伙伴也能产生轻松地互动。 床头垂吊一盏复古茶色玻璃氛围灯,白天为睡眠区增色添彩,到了夜晚便行使它最原始的初心,包裹着夜色伴人入眠。



浴室柜旁的隔断是我们从二手市场淘回来的老门板,经过设计师“贾师傅”的一番巧手改造打磨成新的门板。 从废物摇身一变成了有颜值有故事的女(装)同(饰)学(物),为空间增加一番独有的东方气质。 淋浴间与睡眠区之间设计了一扇长条形采光窗,用锤纹玻璃阻隔视线,制造出犹抱琵琶半遮面的效果,让位于屋内的淋浴间也能有充足的自然采光,同时保证了使用者的隐私性。

在方案落地的过程中,为了有更好的居住体验,屋主两口子花了不少心思,在我们的共同努力下,这座房子终于将以理想的状态迎接每一位客人。 当一个民宿被主人以自己家的态度来对待,倾注了主人对生活的热爱时,入住其中的客人一定也不会感到冰凉,并可以在这里放松身心,拥有一段美好回忆。
