户型解析
现代轻奢风格既有简洁的设计,又不失细腻的质感,这样的风格正是人们中意的风格,这套房屋的主人是一个在意品质和细节的人,通过对多种风格进行比较,觉得现代轻奢风格更符合自己的期望,今天小编就带大家一起来欣赏下这套现代轻奢装修案例。

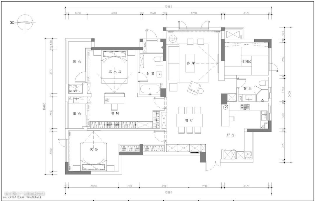
从户型图可以看出房屋有三个卧室,主卧带有一个卫生间和阳台,主人可以根据装修需求对卫生间和阳台进行设计。
客厅

客厅结构比较方正,整体给人一种宽敞通透的感觉,站在地毯边能将整个客厅一览无遗,简约大方的吊顶上安装着多个射灯,能给客厅带来充足的照明。

造型简约的沙发上摆放着多个靠枕,沙发旁的角几上摆放着相框和台灯,沙发另一边摆放着造型精巧的高脚台灯,沙发背景墙用金属线条进行装饰,两幅抽象的画作增加了客厅的艺术气息,简约大方的大理石茶几上摆放着精致的花瓶和装饰品。

半高的电视背景墙用灰色墙砖铺贴而成,宽大的液晶电视能让人们更好的观看电视节目,简单图案组成的地毯增加了客厅的层次,室外的光线透过纱帘洒进来。
餐厅

餐厅和客厅在一个大的空间里,简约厚实的黑色餐桌搭配有着弧形椅背的餐椅,带有纹理的地面能够反射光线,造型简约的壁柜里摆放着精致的玻璃酒杯和装饰品,设计精巧的吊灯悬挂在餐桌上方。

餐桌上摆放着精致的餐具和花瓶,两个花瓶里插着不同颜色的花朵,给餐厅增添了几分色彩。
主卧

卧室床上铺着舒适的床上用品,简约的床头柜上摆放着相框。

卧室有一个单独的梳妆空间,既可以梳妆,又可以办公学习。
经验问答
最值得推荐的软装好物有哪些? 装修这套房子最大的难点是什么? 最满意的设计亮点是什么?
