1厘米是多长?指甲盖那么宽,螺丝钉那么长。放在平时,长了短了,你都不会在意的长度,放在净层高2.75m的空间里,却有我们设计师在为了1厘米的吊顶高度守在现场让工人吊顶的 “锱铢必较”! 在层高仅2.75m的有限空间,实现业主装吊顶、装地暖,还要装美式风格的设计需求,不仅是硬装造型个性化的大挑战,也需要设计与施工的无缝衔接,才能保证设计落地能呈现最佳效果! 正如设计师分享一样“在处理户型现实和居家梦想的矛盾,其关键不仅在于空间规划和风格搭配,也看重过程中的细节,才能实现最初所期待的平衡关系!”

平面图

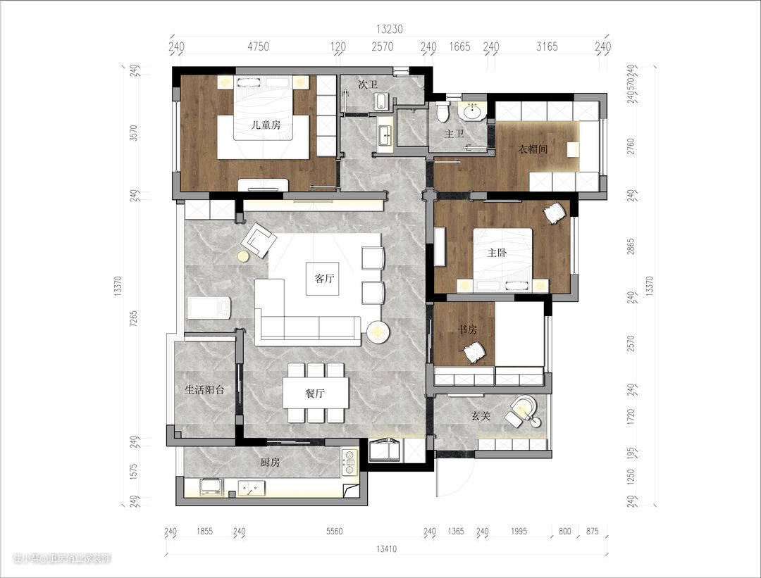
平面布置图 #空间改造亮点# 1、将原有生活阳台与厨房打通,增加厨房使用面积; 2、原始阳台一分为二,一半与客厅打通,扩大视觉空间,一部分保留作为生活阳台使用,保证后期室内美观度; 3、原始主卧可变性小,所以将两间次卧合并作为主卧使用,套房设计提高居住舒适度。


蜂蜜色护墙造型让整个空间更具美式的大气感,复古绿的皮质沙发是业主的心头好,精致时尚。


在寻找实用与颜值的平衡关系中,设计师一方面选择用边吊设计满足中央空调,另一方面增加“井字型”造型突出美式风格的精致,整体高低有度的顶部效果带来更强的视觉冲击感,大气之余也不会有空间的压迫感。


公区一改常态没有选择老式的踢脚线,而是大胆的选择半护墙设计,个性独特设计让室内更具复古韵味。




餐厅区域的顶部造型呈栅栏设计,可以让人有视觉中心的同时,忽略层高不足带来的视觉压抑感,是设计师给的小惊喜。


蜜蜡色方桌搭配上一束热烈艳丽的鲜花,为美式风格的家庭空间打造一份浪漫、惬意的情调。



主卧在拥有独立衣帽间后,卧室的休息区域仅仅只需要满足休息和颜值两个维度,因此家具陈设简单清爽,还选用了业主最爱的复古绿系家具,搭配浅色墙布, 柔和而有质感。




嫩绿色+普罗旺斯紫,整体颜色偏浪漫小清新,轻松而自在。


一个完工作品里有着业主的信任+团队的专业,一直努力为业主实现梦想家,感谢所有为这个“家”付出的你。
