本案屋主是2位年轻女孩,元气满满对生活充满热爱, 对家居品质有一定的追求,希望通过设计师之手打造出舒适且实用的家居环境。 刚拿到这样一套“老破小”的二手房,业主十分担忧,因为本有的格局,零碎狭小,通风采光等都有问题,厨房和卫生间面积狭小,位置也很不理想,与自己想要的样子相距甚远。

▲原户型图

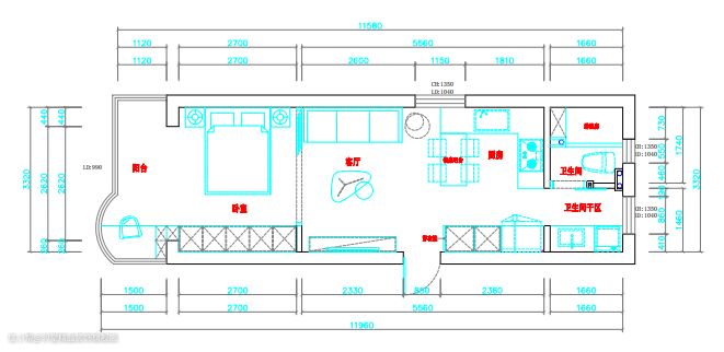
▲设计平面图

改造前装修需求: 1、通风采光要保证 2、开放式厨房 3、足够的收纳 4、灰色系现代简约风格

改造方案: 1、打通客厅与卧室之间隔墙,改用长虹玻璃三联动移门。 2、打通阳台,作为工作区域,并延伸了卧室空间。 3、将原本厨卫相对格局改为并排式,厨房做成业主想要的开放式。 4、利用墙面设计大量柜子做收纳。 设计上,整体风格是现代简约灰色系,呈现出一种高雅、细腻、稳重、精致而有素养的高档感受。

进门玄关是一整面的穿衣镜,方便出门整理着装。转角过来是挂衣区,进门的长外套之类的都可以挂在这边,还可以存放包包、钥匙等物品,下方专门设计放鞋处,十分方便。 玄关柜正好与整墙餐边柜无缝衔接,完美融合,实现空间高效利用。


客厅与厨房餐厅一体化的设计,让整个空间显得宽敞明亮。

卧室和客厅之间打通用长虹玻璃移门进行隔断,既保证了卧室的私密性,也保证了客厅的通透性和采光。

灰黑色的搭配,让整个空间十分高级,期间橙色部分的靠枕和装饰画,成为一抹亮丽的点缀!

客厅与厨房餐厅一体化的设计,让整个空间显得宽敞明亮。

开放式厨房,U型布局形式,灰色柜门,白色台面十分相搭。取消传统的独立餐桌,用吧台来代替,延伸了厨房操作台面,用餐和操作俩不误。

偶尔在吧台边小坐和朋友喝喝茶,也是十分惬意的一件事。 厨房对面墙面,设计一整墙高柜,把电器和冰箱都嵌入进去,还预留了充足的储物空间。


卧室打通与阳台隔墙,延伸了卧室空间,改善了采光与通风条件,便在阳台设计工作区域,满足业主办公的需求。

在床尾设计一整排大衣柜,形成整个家的收纳主力,灰色岩石纹络磨砂面板,配黑色线条拉手,线与面的结合,干净利落!


床头两盏不对称的灯饰,形成好看的光晕,打在墙面上有独特的装饰效果。 左边阅读灯,可以灵活的调节灯头,根据阅读角度进行调整,配合床头小桌几,形成良好的阅读氛围。

卫生间整体设计在房屋最隐蔽的角落,减少卫生间的潮气和细菌以及洗衣机的噪音对其他空间的影响。 同时设计干湿分区,马桶和淋浴区在里面,台盆和洗衣机在外面,干净卫生,使用起来非常方便。


