生活在大都市,公寓往往成为大多数年轻人的选择。此公寓层高为5米,单层面积只有35平米,有别于传统三房两厅格局,可以加建楼板,住宅的空间被合理地设计和分配,居住实用面积可达到70平米。现在越来越多屋主向往开放式生活空间,这种公寓,空间的利用超出预期。业主是一对年轻的小夫妻,有个2岁左右的小男孩。在整体风格上,选择LOFT风格,突显他们自由 开放、热爱生活,热爱运动,喜欢文艺的性格。其实,世界上不乏豪宅或是精装修公寓,可在预算有限的情况下,真的是缺少太多太多“简单、舒适、实际”的居住空间。在种种限制中,能否破茧成蝶,全在于客户与设计师的协同配合。#loft #小公寓 #公寓 #工业风

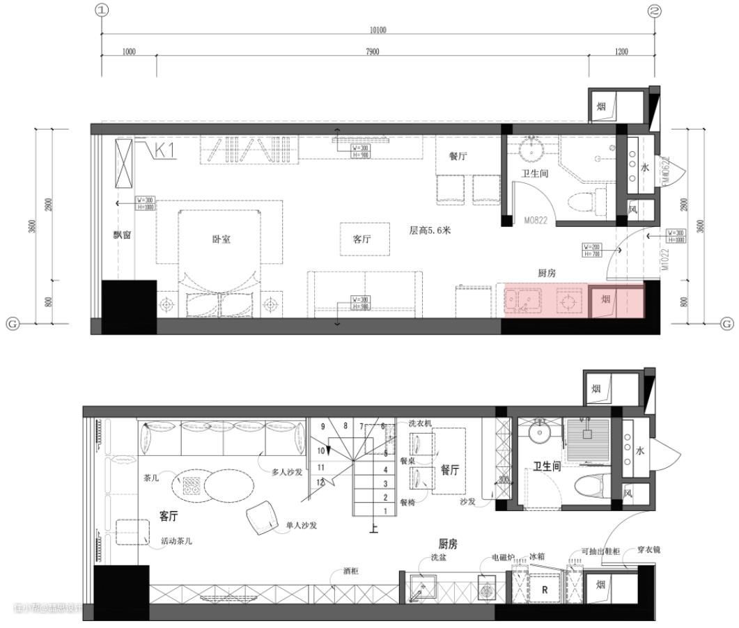
原始平面图 户型分析: 户型特别狭长,一面采光,将近10米长,面宽净尺寸3.4米 层高有5米 缺点: 1.户型只一面采光,空间狭长,里面采光较弱。 2,空间分隔比较困难,相互干扰较大,独立性不强,空间的利用是难点。 3,入门口狭窄,无鞋帽空间,厨房面积小可操作面太拥挤,实用性不高。 4,梁比较大有一米高,室内有一个大承重住浪费空间比较大。 5,卫生间太小无阳台,没有洗衣机的位置。 优点:层高比较高。

一层平面布置图 甲方期望: 1.空间尽量显大一些,采光要比较好,不能显黑,不能显都得堵和拥挤。 2.入门口能有鞋柜位置 3.厨房台面要大且相对独立最好不能影响客厅 4.有独立面餐厅区域 5.客厅要大一些,能满足偶尔朋友小聚或接待 6.最好要有两个独立房间,要有一个儿童房,小孩子有自己的空间,要有私密性。 7.家里杂物比较多,要有足够多的储物收纳。 8.期望家里有一些调调和气质,喜欢LOft风格,对电视剧里的LOFT公寓的文艺范特别没有免疫力。

二层平面布置图 平面重新规划后,做了两层、一层有独立的门厅,厨房,餐厅,客厅及卫生产间区域,二层为主人房卧室,书房,儿童房,卫生间。大大提高了空间的实用性及品质。连接两层的黑色悬挑钢结构楼梯,轻巧空灵,结构感实足,让LOFT气质范尽显无遗。原户型布局并无鞋柜的功能空间,入门处比较窄进门后很局促,进门就到厨房的区域,厨房正对着卫生间,感觉非常不好。所以设计师对空间及尺寸重新进行了梳理,把厨房功能后移,利用原厨房区域改造成独立的玄关门厅,这样进门就有一个缓冲空间,另外腾出的空间把鞋柜功能做进来,设计师将入口的玄关、需要被存储的冰箱、酒柜、书柜等家居用品创造性的整合到一个集中墙面柜中,让空间整洁干净,提升空间生活品质。因空间尺寸有限,我们把鞋柜做成整面可抽拉式的大容量鞋柜,这样就不用太担心鞋子太多而不够用。其次把冰箱也嵌入到其中,冰箱的上面也利用空间暗藏了热水器,每一处空间做到最大化的利用。 假如说一层是公共开放的使用空间,二层则是相对安静私密的独立私人区域,有一个宽裕的主人房,开放式的书房,一个非常实用的带学习区小孩子房,另外更值得一提的是设计师在这小小的空间还做了一个独立的卫生间。在这个面积有限的小小公寓内设计师让它实现了双卫生间,大大提高了小空间的生活品质。

全房收纳功能 整体系统的规划设计,让小家越住越大。#loft #小公寓 #公寓 #工业风
入门区域/厨房/餐厅

一楼的层高净高为2500mm为原天花,所有的天花上的灯具都采用原顶明装,墙面暗藏灯的间接照明打造温馨典雅的气氛,让空间更舒服。钢结构楼梯成为空间主角,极简且实用,剔除任何多余部份,让空间更穿透通灵,LOFT气质范尽显无遗。 #喆思设计 #loft #小公寓 #公寓 #工业风

厨房后移,厨房和餐厅能无缝衔接,生活起来更便利。为了空间尽量显宽敞实用,居家所需的强大收纳功能全部以“立体集成壁柜”式的方法解决储藏烦脑,强大的收纳让空间更干净,整洁及实用。 #loft #小公寓 #公寓 #工业风

可抽拉式鞋柜 充分利用600mm深的鞋柜尺寸,改变鞋柜的形式,大大提升鞋子的储藏容量,成了小空间大容量的储藏神器。#loft #小公寓 #公寓 #工业风

独立的餐厅功能,个性十足的餐厅装饰吊灯,让餐厅别具一格。

#喆思设计 #loft #小公寓 #公寓 #工业风

客厅电视背景一整面的集成式壁柜结合氛围的灯光营造,品味感十足,跟杂乱说BYEBYE。客厅的艺术吊灯为客厅空间增添文艺气质。 #客厅 #loft #公寓 #小户型 #工业风 #文艺

飞人乔丹 全能王科比...NBA巨星的辉煌是我们多少人的记忆,也是男主人的最爱。 #客厅 #loft #公寓 #小户型 #工业风 #文艺

钢结构楼梯结合整面墙的镜面设计让空间更显张力视觉更丰富,让小空间变成大HOUSE。 #钢结构楼梯 #loft #公寓 #小户型 #楼梯 #工业风 #喆思设计

#loft #小公寓 #公寓 #工业风

二层空间隔墙分隔设计师采用钢和玻璃结合现代设计语言,让光线渗透进每一个空间。软装精挑细选的艺术灯具及挂画结合灯光的渲染提升空间文艺气质。#loft #小公寓 #公寓 #工业风

#喆思设计 #loft #小公寓 #公寓 #工业风

特制的钢管焊接成书架,结合实木层板让书房流淌出工业的气息。(为了这个书架,反反复复设计师可没少发时间,但最终出来后的效果还是不错的)#loft #小公寓 #公寓 #工业风

色彩丰富的小孩房,独立的学习区域 小孩房的床下也是超大容量的储藏空间。

小孩房的床下是超大容量的储藏空间。

小孩子独立的学习区 #loft #公寓 #小户型 #收纳 #工业风 #文艺 #儿童房 #喆思设计

二层的卫生间也采用的玻璃隔断,目的是让空间和采光更加通透和明亮,布艺的拉帘保障了空间的私密性。卫生间采用干湿分区。 #loft #公寓 #小户型 #工业风 #卫生间

入口/厨房/餐厅/效果图 现场对楼梯处的钢结构隔断进行了简化,让空间更开敞明亮 。#loft #小公寓 #公寓 #工业风

客厅效果图#loft #小公寓 #公寓 #工业风

主卧室效果图

卫生间效果图

立面的设计分析,对造型,色彩,材料及灯光在空间的整体分析应用及规划设计。#loft #小公寓 #公寓 #工业风

立面的设计分析,对造型,色彩,材料及灯光在空间的整体分析应用及规划设计。#loft #小公寓 #公寓 #工业风

主材物料设计
