本设计装修方案,是拿了2020年红棉奖的作品,名叫《幸福港湾》,接下我们详细解析该方案。 一、项目背景 本案位于广东省揭阳市,是广东省东部的三四线城市,生活与工作节奏比较悠闲,楼价也适中,业主在装修上要求与投入都比较高。 当然,当地人大部分人,对装修设计要求都比较高,比较舍得更多预算放在装修上,对装修家居环境美观与实用性都比较要求。 二、项目概况 1、户型:三居室,大3房+3卫生间 2、常住人口:年轻业主夫妻+父母+孩子,一共5口人 因为是和父母一起生活,要考虑到他们的特殊需求,确保家居设计的安全性和舒适性,从精致中感受生活,设计师给作品取名《幸福港湾》。 3、户型问题:各空间区域过大,入户整个大厅像横厅户型,需要做到精细划分,不然容易造成不规则浪费。 4、业主要求:以石材为主,装饰空间显得大气、奢华一点,主卧空间要加衣帽间满足女主人生活要求,老人房必须单独配置卫生间生活起居很重要,另外看有没有空间额外做一个区域,用来读书、待客、品茶、储物都可以。

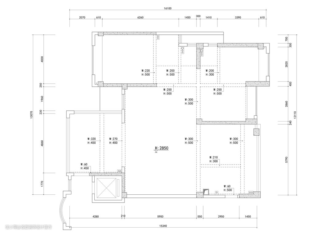
▲原始户型图 三、设计思路 1、色调/配色:以高级灰+极简白为主色调,带来低调、华丽和精致轻奢的感觉,其中还融合了各种不同的材料(通体砖,大理石,不锈钢,玻璃...)外加整屋定制柜体,给整个空间的肌理感特别出色,满足年轻业主对简单轻奢的要求。 2、空间布局:客厅笔直的进深通道,开放式客餐厅也扩大了整体的空间感,增加家庭互动性,开阔空间对老人体质和心情也有好处,三个卫生间满足日常生活需求,常用的次卫更是设置洗手池外移干湿分离,对业主家人生活想得极致周到;另外,独立设置了休闲区空间。

▲空间布局图

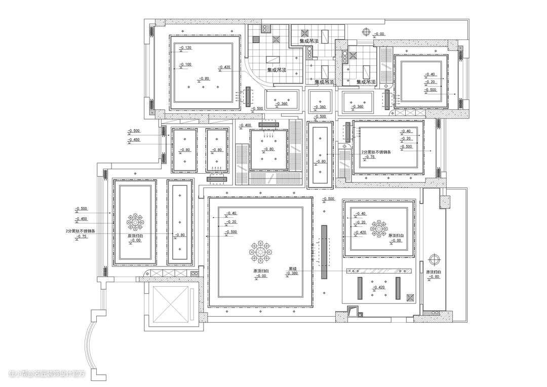
▲天花布局图


1、空间:入户空间(玄关):该空间比较大,设计规划时,与业主商定,这个空间是定义为接待客人茶室与玄关门面担当,是室内与户外连通处;业主希望做到大气且收纳性强。 2、动线设计:进门后,【正面】是待客餐桌椅+玄关柜+玄关背景墙;【左边】是落地窗,通透地落极大增加室内观赏性;【右边】是一整面墙都定制做柜体,扩大整体收纳空间。细节上,柜子中间设计开放格子,可以放一些装饰品、随手物品;下方镂空方便放鞋,端部弯曲设计充当进门扶手,非常方便符合人性化;【顶部】叠层天花+水晶大吊灯。 3、整体效果:通透大气,收纳性强,隐藏性也强。 4、详细的细节效果图与施工细节图解如下↓

▲效果图 左侧定制柜体,内部采用黑色层板,鞋柜用灰木纹色定制整体,门右侧也是采用灰色仿大理石纹理瓷砖,不同色阶的色彩调和,大气又内敛。

▲入户左侧定制柜 右侧背景墙采用灰色大理石平贴,两端采用爵士白大理石平贴,两根9厘板打底贴灰色硬包区分两者,在用黑钛不锈钢条收边,置入灯带装饰,黑与白相间,高低起伏的节奏。

▲入户玄关背景墙
1、空间:休闲区 2、空间规划:设计时,通过横截客厅空间,一起制造了休闲区和衣帽间两个区域,且待客的休闲区是独立的,不连接室内主要活动区域,也保留了一丝隐私性。 3、风格定位:一开始设计时,该休闲区空间的风格定下与外部一致的,后期,因为柜体定制预算,同时,业主也不想休闲区过于稳重端庄,想以活泼积极作为要素,所以,也做了修改,详细可以见后面的实景图。

▲效果图 更改过后柜体两端采用透明玻璃,空间通透不止一点点。一同修改的是墙面瓷砖上墙代替了原本的墙布,目的就是保留原本的端庄稳重感。简约、轻奢的时髦沙发,通过简单的蓝色、黄色饰物点缀,完全不会“高攀不起”,更多的是淡雅和低调。


▲休闲区实景拍摄图 对比后,基本整体还原我们当前设计的效果,该区域大部分软装饰品,由我们整理好购买链接,发给客户选择确定后,下单购买。如果,您想要该清单;可以评论区,私聊我们。 详细《休闲区软装清单》如下:

简约、轻奢、极简,是本作品的主要元素,客厅后期装修方面也做了相应的修改。 1.动线设计:通过室内石拱门,【右边】是沙发休闲空间;【左边】电视观影空间,大理石带来的质感美让人羡慕;【顶部】做了天花吊顶,精致水晶灯光彩夺目。 2.整体效果:通透大气,宏伟壮观 3.详细的细节效果图与施工细节图解如下↓

▲效果图 电视背景墙和玄关相比,全选用了爵士白大理石平铺,底部用了灰色底板分隔,原本是搭配土耳其灰大理石和定制浅灰色电视柜,暗色不同色阶的调和搭配,后期经过修改干脆不用电视柜,底部就变成了爵士白大理石一字型充当纳物和装饰,也别有一番韵味。

▲客厅电视背景墙面 相比开始的用厘板打上底色做硬包,加上大理石线条装饰和不锈钢线条收边。墙面刷淡蓝色漆更显清爽,简单大方,大理石与乳胶漆的材质碰撞,充满无限可能。

▲客厅沙发背景墙面 虽然缺少了原本的色阶高级,但后期通过软装高调置入水晶灯,用驼色皮质沙发来烘托高级感,巧妙的混搭组合,打造一片能够让身体完全放松,又感到无比温馨的环境,这才是设计师想要达到的境界。





开放式厨房是对现代化的时尚生活直观追求的一种体现。 1.动线设计:往前走去便是餐厨,尽头是观景阳台,【右边】带吧台开放式厨房,【左边】餐边柜带酒柜一体设计,【顶部】同样华贵吊顶。 2.整体效果:通透大气,实用精美。 3.详细的细节效果图与施工细节图解如下↓

▲效果图 和休闲区一样,开始浅灰色与黑色定制组合,修改成了同样的白与黑的定制组合,黑与白的对称美,且有分布不同的不规则美,但大致风格是没有改变的,保留了黑色透明玻璃柜门,符合酒柜的展示隐约美,另外将左右两侧的开放格子合并大空间,一侧还做成方格存储酒,颇具实用。

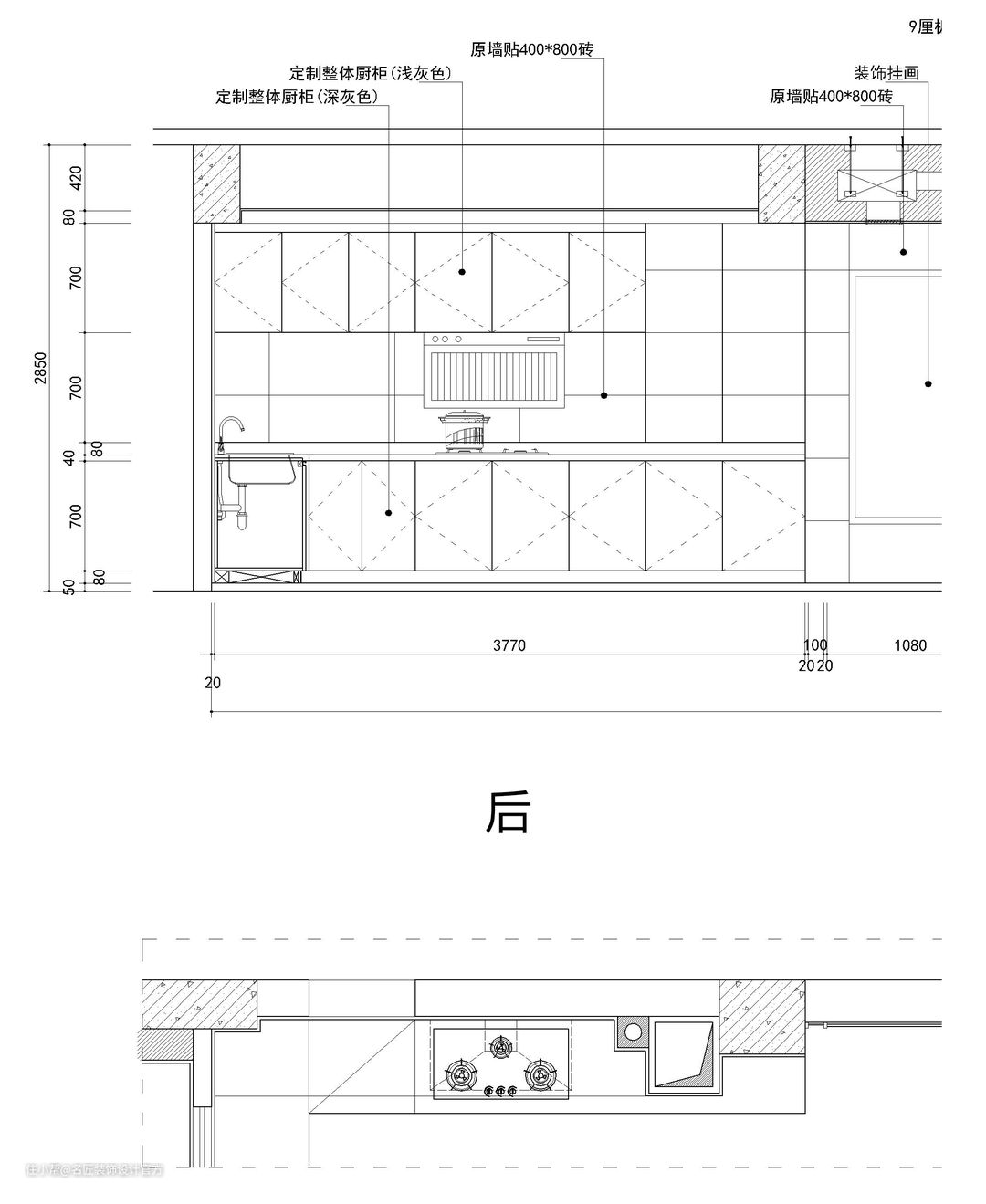
▲餐厅餐边柜墙面 厨房橱柜用深灰色和浅灰色搭配,加上玻璃的置入,空间不会显得脏乱差,另外墙面横贴400*800原墙砖,厨面也是用白色石英石,这样空间配色不显黯淡,且空间会显得宽敞,符合厨房理念。

▲厨房橱柜墙面 由于客餐厅使用了过多白色配色,所以原本白色吧台也改成了黑色仿大理石瓷砖加黑色石英石,也起到分隔功能区作用,吊顶样式也是如此,吧台中间镂空设计也增加收纳空间,拿取也非常方便。

桌椅也采用了驼色加灰色搭配,不经意的造型几何,也有几分趣味性。




▲客餐厅完工实景拍摄图 该区域按效果图一比一装修还原,还原效果基本达到100%。 该区域软装饰品,我们也整理了清单;可以评论区,私聊我们,详细发链接。 详细《客餐厅软装清单》如下:

卧室相对就没有过多的复杂装饰,业主也要求大气简洁一点。

▲效果图 虽说空间讲究大气简洁,无繁多装饰、造型,但软装上设计师通过多种颜色点缀,也为空间增色不少。橘黄色和淡蓝色的窗帘作为视线重点,特别吸引目光,墨绿色的舒适躺椅、淡紫色的硬包背景墙、乳白色的欧式床家具、木色的拼接样式地板,无不是种视觉享受。

文艺插画瓷器装饰,也能起到弱化家具带来的奢华感。


▲主卧室完工实景拍摄图 主卧室效果图设计时比较内敛,我们在完工,在软装加入比较多亮色的元素饰品,整体气氛更活泼。 该区域软装饰品,我们也整理了清单;可以评论区,私聊我们,详细购买链接可私发。 详细《主卧软装清单》如下:

老人房讲究足够舒适和谐,充满中式传统韵味。

浴室柜上墙+台上盆是现在的主流设计,加上感应灯和镜前灯,从此过上精致生活。

《休闲区软装清单/单价》 懒人圆凳:60元 陶瓷鹿饰件:120元 铁艺茶几:1050元 布艺立式台灯:300元 轻奢布艺沙发:1800元 ——合计:3330元 《客餐厅软装清单/单价》 抽象艺术画:799元 文艺摆件:260元 全铜壁灯:800元 极简餐椅:338元 布艺沙发:2500元 双人摇椅:1980元 大理石不锈钢茶几:2700元 ——合计:9377元 《主卧软装清单/单价》 北欧床头小吊灯:110元 创意花瓶摆件:90元 欧式复古床头柜:1100元 北欧蜗牛椅:1488元 ——合计:2788元
1、该装修花了多少钱? ——60万元 2、为什么造价比较高? 原因一:当地毛坯房是框架结构交付业主,装修前需要砌墙,费用在400~600元/㎡。 原因二:做了全屋砖上墙/大理石,涉及到干挂工艺。 原因三:做了全屋天花外加中央空调。 3、为什么常住人口5人,只有三房三卫? ——该房子是业主改善型住房,业主有多套物业。 其他关于该方案的问题,大家可以评价区,提问,我们将会逐一回复。
