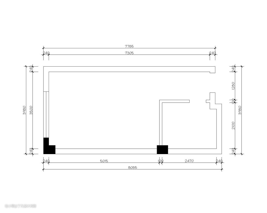
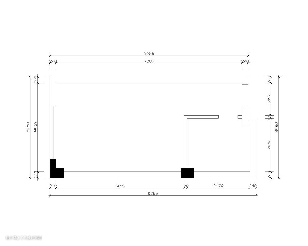
户型解析
此案子是个30平不到的单身公寓,因为面积比较小,所以业主想合理规划一下。平常的家用电器都要具备,想着怎么摆放舒适。这个户型作为单身公寓,卫生间面积相对有点大,空间浪费。
前后对比


缩小卫生间空间,扩大公共区域,但是同时也要保证卫生间的空间舒适性。把就寝区域和客厅进行区域划分,明确功能分区。厨房和客厅共用空间,因为空间比较小,所以不能设置明确的餐厅区域,可以与客厅共用,比较灵活。
客厅





墙面多用乳胶漆和墙布,整体效果比较简约。合理化利用空间,让小公寓也同样舒适。一个人生活也可以过的很好,很丰富。
经验问答
如果你喜欢我们的设计,就收藏点赞吧! 不定期更新作品~
