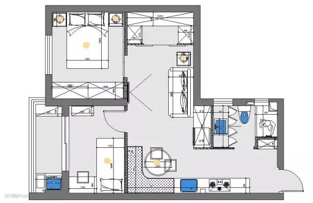
户型解析
对于小户型装修来说,实用是唯一的诉求,尤其是对自住的小户型,装修时必须要考虑到至少未来20年内的生活需求。正如这间50㎡的小户型,虽然面积不大,却能满足夫妻俩新婚、生育、来客等多种需要,两室两厅的结构里,小面积也可以充满创造力。

客厅
客厅内采光较差 四周没有光源 因此采用全白主色调 并用吊顶的落差制造自然光源感

电视背景墙旁是通向主卧的推拉门 这种款式的门相对不占用空间 也能让整个空间显得更为宽阔

冰箱被摆放在沙发旁 夫妻俩都喜欢一边看电视一边聊天 这样的设计也方便取用零食

餐厅
50㎡的小户型也能拥有独立餐厅 秘诀就在于对角落空间的最大化利用

厨房
进门的走廊改造成了一字型厨房 是女主人喜欢白色的清净感 如果没有她这样定期打扫卫生的习惯 还是不建议厨房做成纯白色哦!

换个角度看厨房 是不是感觉50㎡的空间远比想象中宽敞?

主卧
吊下的床头灯轻灵简洁 床头柜的设计细看非常实用 刚好可以配合插座实用

软软的床头靠起来很舒服 家再小也要尽量装的温馨舒适

衣柜拼凑成了卧室电视墙 刚好容纳一人通过的通道虽然有些狭窄 但是这么小的空间里也不能要求更高了

次卧
次卧其实就是从餐厅隔出来的一块区域 宜家的抽屉床和收纳抽屉实用又方便 未来小朋友要用也可以很快腾出空间

卫生间
卫生间虽然不大 却好在有个小小的通风窗 配合仿木纹瓷砖地板感觉清爽又明亮

镜柜和角落的隔板都是小浴室的收纳亮点 重视收纳工作的业主 也不妨试试开发每样家具的更多功能
