1.案例信息: ●小区地址:厦门太湖新城 ●房屋面积:106㎡ ●户型格局:三房二卫 ●设计风格:日式风格 ●案例内容:旧房改造 ●装修公司:易家工社

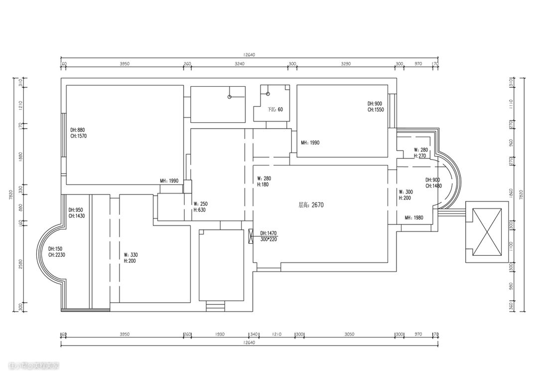
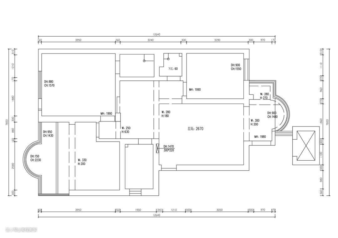
2.户型解析:户型三房二卫106.4平,室内南北通透,采光也不错。相对缺点还是全屋收纳问题,没有做合理的规划,导致日常生活之后杂乱。其次就是卧室色调搭配的不合理,导致卧室十分昏暗。 3.业主需求: ●希望改造之后的客厅能够通透明亮 ●希望保持卫生间的干湿分离,还能增加收纳区 ●希望全屋多一点收纳空间 ●希望主卧可以拥有一个办公区

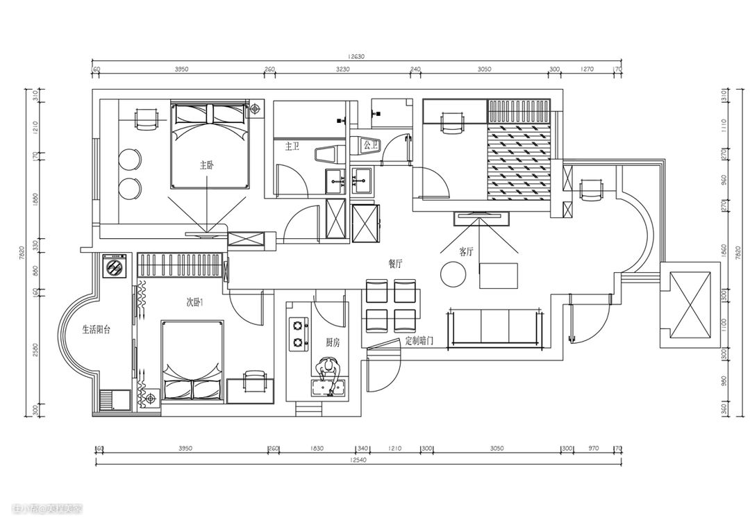
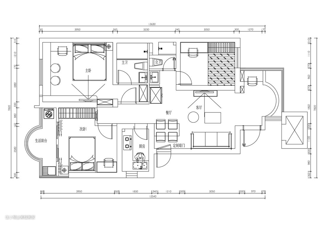
4.设计思路:设计师主要是针对原先收纳不足的缺点进行重新规划,并且能把原先家里一些比较鸡肋的地方利用起来,将原本分布不合理的地方改造好。其他方面就没有多大的改动,只在原有户型的基础上做了一些小调整,让之前的生活习惯有所延伸。 ● 原入户圆弧区域堆放杂物,抬高外扩改成休闲区。 ● 消防过道设计了折叠餐桌,实用不占地方。 ● 扩充主卫空间,做了干湿分离。 ● 主卧融合了电脑桌、飘窗柜、吧台等功能。 ● 原主卧的门封墙后内嵌了一个展示柜。

可以直观的看到在改造之前的家就是“杂乱”!

这是改造后客厅面貌,利用暖色系+原木定制家居把整个空间打造得明亮通透且实用起来,美观宜居符合个人喜好。
业主C先生一家在这套老房子生活了很多年了...老房陪伴着一家人的生活与成长,多年来虽时时小添小改,但是它随着时光变迁逐渐不太便利和舒适。

在成长过程中,C先生对这套房子也是熟悉得不能再熟悉。知道它的便利和不便,知道知道哪些东西有用哪些没用,也知道该如何才能让这个家变得更舒适,知道家人每天的起居习惯,知道四季的太阳几点能晒进窗户......


10多年前装修的弊端就是简单粗暴规划餐厨区、客厅、卧室以及卫浴间、生活阳台,满足日常生活即可,对于收纳单纯通过购买柜子来解决,每个空间里原可以用作收纳的位置像边角料一样被浪费。


设计初业主也明确跟设计师交代,家的风格不设限,一切遵从心中对美、舒适、功能和可塑性的需要。极致利用每一寸空间,让不可动的屋子焕发出有韵律的生命感。下面一起来看看焕然一新的房子吧~
进门玄关就是一个圆弧形的的区域,这块圆弧区域面积也不小,单独用来做玄关也挺浪费的,设计师设计靠墙到顶的鞋柜储物柜占空间小,收纳性反而更强了。

圆弧的地方做成榻榻米飘窗,搭配书桌平时可以看看书喝喝茶,休闲+收纳功能强大。

原本的客厅客厅的光线和视野都非常好,但是传统的户型和普通的家具并没有突出优势。一开始在业主在墙壁色卡上选择的是比较深的灰色,在设计师的建议下改成了比较百搭的浅灰色。

客厅边上连着一个小吧台,考虑到不想单独浪费一块位置来置放餐厅,就直接设计了一个小吧台,吧台是客厅定制柜的一部分,不占空间收放自如。

电视背景墙也做了一排柜体,因为原来的家在收纳这一块实在做得不够完美,干脆多做个柜子,一来可以装饰,二来最重要的就是加强了家里的收纳功能。


客厅边上连着一个小吧台,考虑到不想单独浪费一块位置来置放餐厅,就直接设计了一个小吧台,吧台是客厅定制柜的一部分,不占空间收放自如。

延伸出来一截吧台做餐桌,就变成了餐厅,早晚餐都能在这里享用,不用再额外规划餐厅,省去很多麻烦。

家里是真的随处可见摆满了业主收藏的各种手办!
厨房采用L型结构,一边是日常洗、切,一边是烹饪的区域,整体线条干净利落。面积不大的厨房,听取了业主父母的建议,保留了很多原有的便利之处,重新规划了功能区域,完全达到了动线合理,小巧实用的状态。

翻新后的家具是全屋定制的,柜子能够很好的节约和利用空间,一改原来卧室的杂乱,再也不必担心家里的东西过多无处安放拉。

灰色系的卧室看起来略显单调,业主在柜子上加了一点亮黄色,搭配花样手办,恰到好处的活泼感。

拥有阳台的卧室是父母的,平时生活起居走动时,光照强,透明玻璃采光非常棒。平常母亲在阳台处理家务也非常方便。



家里的另外一个房间做成了多功能榻榻米,虽然房间不大但是基本功能齐全,日常家庭杂物的收纳处,也是亲朋好友留宿时的客房。


主卫经过拆除重装后,保持干湿分离的同时合理的利用角落墙面的位置划分出收纳区域,牙刷牙膏等日常用品放在柜子里,台面不再是“混乱不堪”。


设计师在挑选瓷砖的时候一眼相中了这个花色墙砖,搭配灰色调卫生间,干净整洁。

干货清单: 装修公司:易家工社(设计+施工+监理) 全屋定制:生态板工厂 瓷砖:马可波罗 木地板:圣象 卫浴:九牧 橱柜:金牌橱柜 志邦橱柜 衣柜:志邦定制 太邦定制 室内门:曹添门 油漆:立邦 防水:咖乐防水 水管:伟星新材



问:装修这套房子最大的难点是什么? 答:10年前装修的弊端就是简单粗暴规划餐厨区、客厅、卧室以及卫浴间、生活阳台,满足日常生活即可,对于收纳单纯通过购买柜子来解决,每个空间里原可以用作收纳的位置像边角料一样被浪费。旧房翻新的难点就在于如果去平滑的解决这些遗留的老问题,并利用空间规划将利用率提升10%-20%左右。 问:卫生间空间不够,如何干湿分离? 答:一是格局改造,能拆的可以果断拆,从其他富裕的空间区域“偷”面积;二是利用淋浴房或者是洗手台外置的方法。卫生间有很多零零碎碎的小物品,很多人对卫生间的收纳有点无从下手的感觉。其实合理的利用角落墙面的位置划分出收纳区域,这样用心整理,会有一个非常舒服的卫浴空间。 问:设计和屋主的意见该如何权衡? 答:自己住的家应该是融入了非常多屋主自己的心血,所以设计师说C先生的家其实让他操心的地方并不多。归宿,不过是,与家人在一起的每一天,时间好像变得很快,世界小到了方寸之间,同所有人喧闹是孤独,同所爱人独处是幸福。根据实际需求,先设计好自己的生活再设计自己的家也是不错的选择!
