现在越来越多精装交房的了,很多媒体断言精装是大势所趋。相对于毛坯来说,确实是为普通的不懂装修的买房者省去了硬装的繁琐,然而精装房的风格实在是不敢恭维。我们见到的精装房案例里,几乎是清一色的商务风,明明用的材料一般却硬要打造高端大气的感觉。本案是实际使用面积只有38平的小两房,卧室每间只有6平米,客餐厅一起十几平米,也是的浓浓的商务酒店风。lulu是去年9月份在好好住上找到我的,目前她一个人住,不需要次卧希望有个小书房,喜欢轻奢风格。硬装没有改动,只是墙面刷了漆,全程沟通很顺利。


改造前--进门右手边的一面墙,摆满了插座、开关、强弱电箱、还有门禁对讲,而且很乱,分分钟要逼死强迫症的节奏。门都是这种厚重的深棕色。

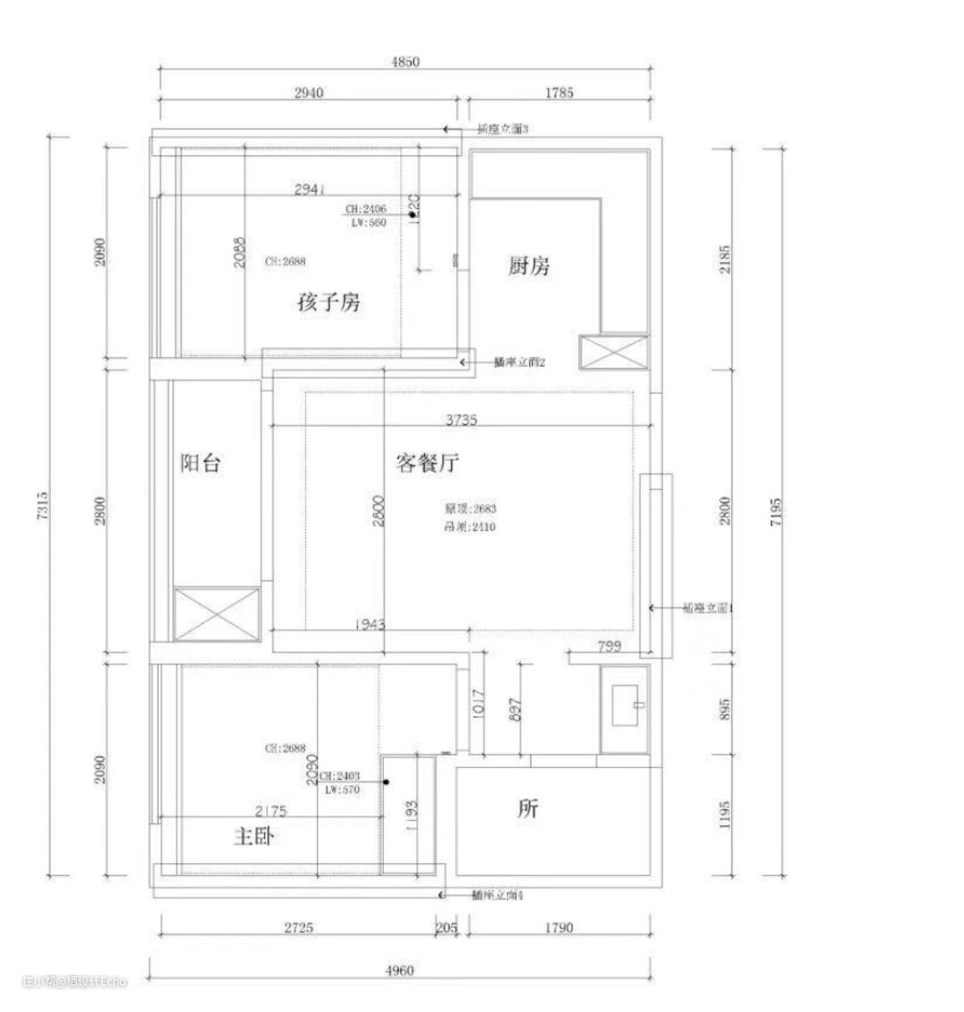
改造前--卧室门开在一侧,在本来就只有6平米不到的空间又浪费了一个开门的空间。摆下一张1米5的床和一个柜子,只剩过道了。

原本进门左侧的鞋柜没有改动,右侧由于有很多深色插座和开关面板在白墙上非常突兀,所以这面墙刷了业主喜欢的墨绿色,弱化深色面板的存在感。电箱用一个磁性黑板装饰。餐桌上方换了吊灯,增加就餐的氛围感。大理石桌面有高级感且容易打理。

墨绿天鹅绒金属脚沙发、黄铜落地灯,这些元素打造轻奢风毫不费力,挂画选择了一副优雅的女性人像,色彩和沙发有呼应又有亮点。



玻璃球的吊灯轻盈又不会压抑,lulu不看电视,所以沙发对面没有摆放笨重的电视柜,以大理石搁板替代,上面摆些画和小物件。

房间宽度只能放下2米长且没有床头板的床。卧室刷了半墙浅一点的绿色,窗帘用了深绿遮光很好的面料再加一层透光不透景的白纱。床头灯是插头款的,对于床头没有灯位的房间来说是很好的选择。

除去过道,床一侧就是靠墙定制的深度55cm的白色通顶衣柜。无把手设计显得更加简洁且在小空间避免刮蹭。

小小的房间打造了一个精致的小书房,浅粉和墨绿是一对经典cp。黄铜落地灯,深木色衣柜和书桌和墨绿色墙面的组合显得沉稳,玻璃小茶几和粉色沙发缓和了深色的厚重感。



深木色的原装木门,由于有深色家具和黄铜这些相对厚重的家具搭配,也不会显得笨重突兀了。


精装修的厨房,没有做改动,由于还没有入住,显得比较空。


宜家的这组户外桌椅非常适合小阳台,半圆桌面,可以可以折叠收起来,阳台植物是在本地花市采购的。
