今天给大家介绍一套59㎡的北京老破小学区房改造。 业主张先生一家是在8年前来的北京,为了小孩入学,买下了这套59㎡学区房。由于俩人平时的工作都比较忙,需要父母偶尔来帮忙照顾孩子。

业主委托我们,在装修改造中需要满足4-5口人居住、收纳和就餐的问题,同时希望能有个亲子活动和休闲健身区。

业主诉求: 1、原2居改成3居,给老人和孩子各一个独立的休憩空间。 2、设置休闲娱乐区。孩子能有玩耍的空间,女业主平时喜欢练瑜伽。 3、需要有一个单独的餐厅空间,能足够一家人吃饭的地方。

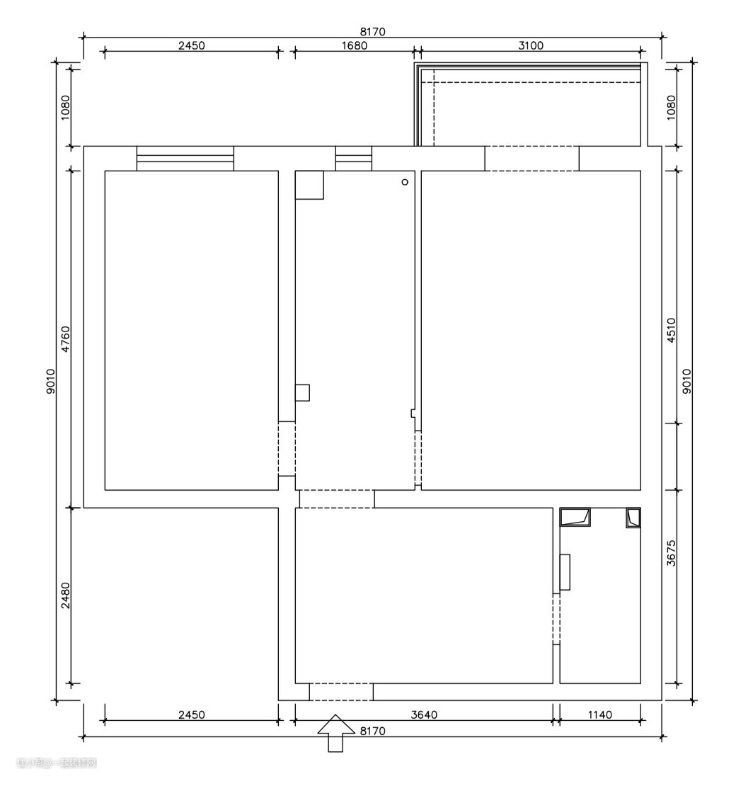
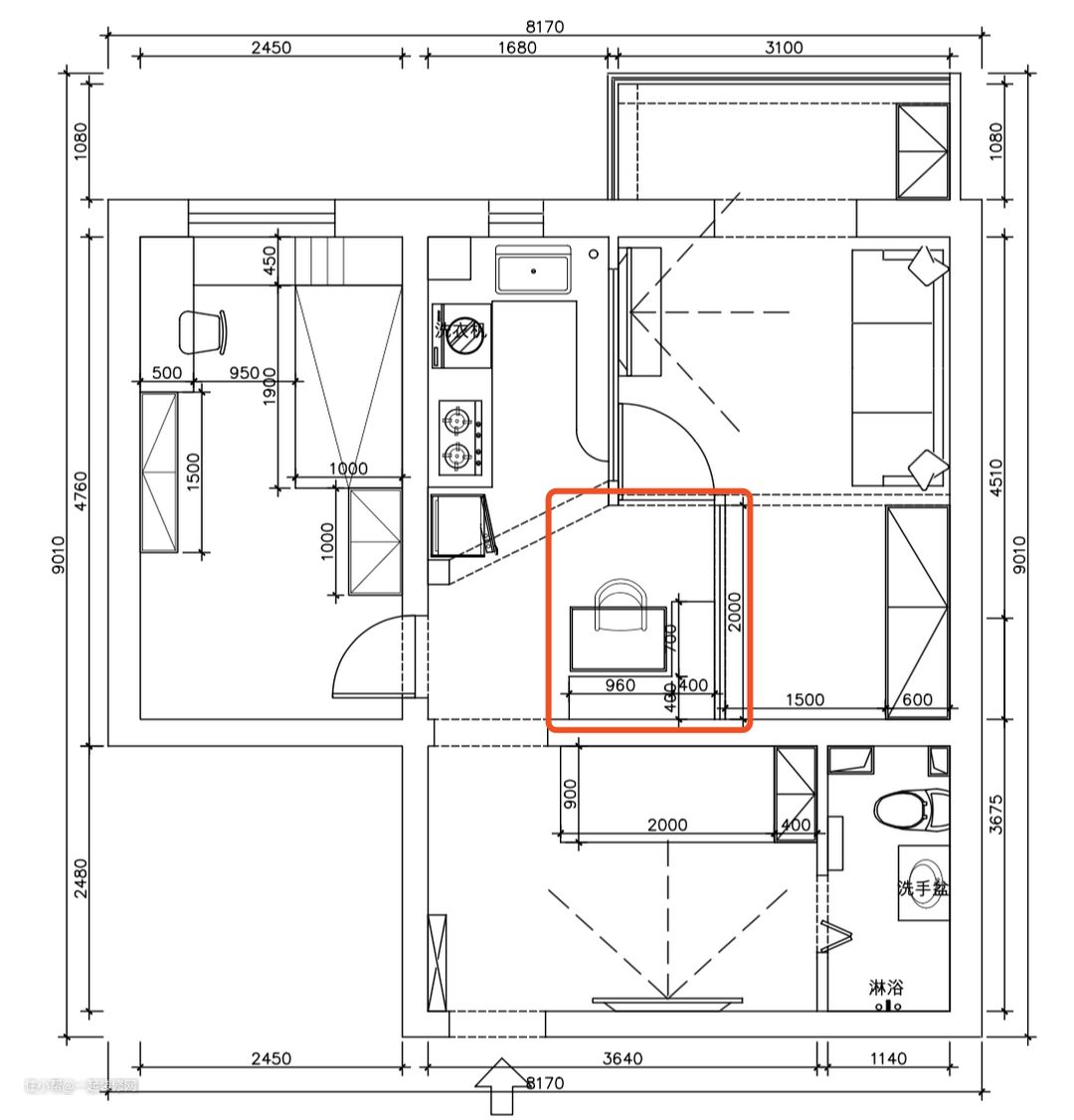
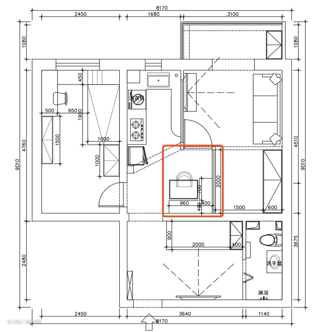
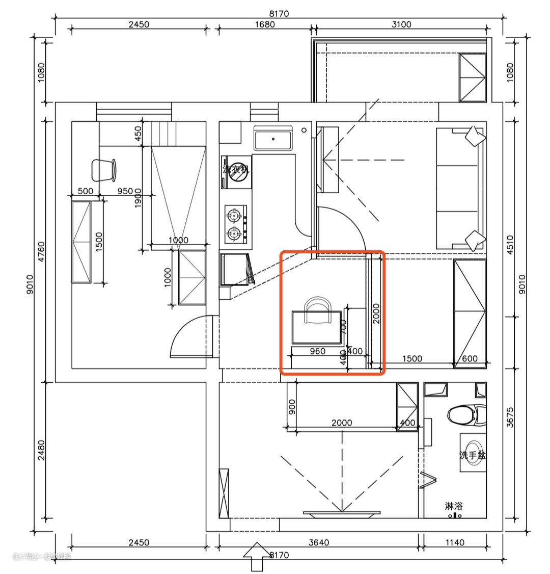
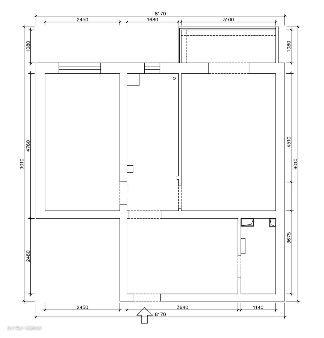
设计重点: 1、增加厨房采光性,使光线能更加充分。 2、分割厨房、卧室的空间,新增一个餐厅的区域。 3、主卧留出足够空间作为休闲区。 4、承重墙太多无法进行大的格局改动,把客厅做为三室来使用。 5、增加收纳空间,放置小朋友的书籍及一家5口人的生活用品。

改造前,一进门就能看到成堆的鞋子,电线也是走的明线,满屋子杂乱不堪。

原来的电视墙乱七八糟,从这个瑜伽垫的位置可以看出来,女业主平时练瑜伽大概也是在这个位置。

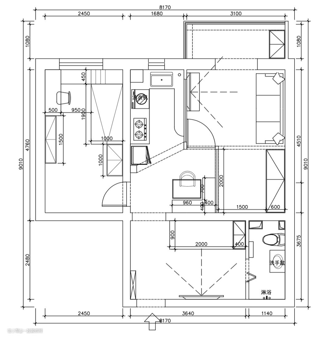
改造后,做了一组定制超薄鞋柜,鞋子斜着放的话也可以放很多。一个大大的穿衣镜...到顶的收纳柜,增加了不少收纳空间。

首先解决了业主“2居改3居”的需求。原有的客厅,变成了一个能当卧室用的客厅。本来的老旧沙发做成了定制折叠沙发床和柜子的组合。

沙发床后面就给老人睡,虽然抽起来有点费劲,但小户型用还是挺香的。电视就摆到对面。

为了能“多”出一个餐厅。设计师在原有户型上,把厨房墙敲掉了大概1.2米,并把卧室的墙也往里推了1米,真的是生生挤出来的一个小餐厅。

餐厅背后的轻体墙开窗,增加采光性。

靠墙的榻榻米小餐椅,也能解决一部分的收纳难题。

在改造中,厨房也是整个户型中改动最大的地方,原来采光仅仅靠一个小窗户,一到下午厨房就变成了昏暗的小黑屋。

冰箱、洗衣机基本占据厨房大部分空间,让原本就逼仄的空间更加狭小。

改造后,在这面轻体墙上开了窗户,来借卧室的光,通风、采光都变得好了很多。

设计了L型操作台面,满足洗切炒的烹饪动线。橱柜旁放置冰箱,洗衣机嵌入到台下,台面上还能做为操作台继续使用。

牺牲最大的就是主卧了。

改造后留出了一部分空间变成活动区,留给平常和孩子做游戏以及女业主练瑜伽使用。两口子睡觉有大概3㎡的面积,后面装上榻榻米就解决了。

次卧就是女儿房,随处摆放着凌乱的书籍和玩具。

改造后,根据业主的需求做了定制。上面床,下面是亲子活动区。

对面一整面墙的衣柜和学习桌,女儿住到18岁都没问题!


卫生间用的折叠门,折叠门的好处就是能极大的节省空间。但头顶的电热水器不仅丑,还十分占地方。

改造后,卫生间内部的空间,也重新做了布局。墙面由原来的300*300墙砖,也换成这种网红小白砖,看起来也亮堂不少。

舍弃了电热水器,使用燃气热水器,增加了卫生间的空间,浴室柜也有安装的位置。
以上就是给大家介绍的小户型改造的前后对比案例。作为刚需小户型的最根本需求,就是实现空间合理性规划。不知道这样实用性满满的小家,你会不会喜欢呢?
