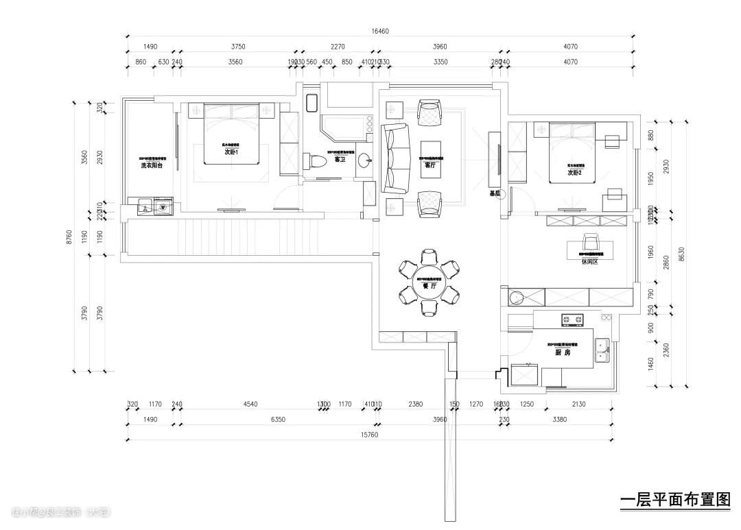
户型解析


设计背景
传统美式专注的是沉稳内敛,而加入轻奢元素,就能达到一种低调中显奢华,优雅中显时尚之感,这也是美式轻奢风的精髓所在,正好符合本案业主对于简而有味的品质生活的期许。

客厅



灰色护墙板,黑色地砖,让客厅硬装上就保持中性基调,搭配双色圆弧沙发,营造出简约大气的空间效果。孔雀蓝与浅米色交织出的清朗明亮,让整个家优雅起来。


大理石与木饰面结合的电视背景墙大气不单调。金属线条的点缀丰富了空间层次,也提升了轻奢质感。
餐厅



客餐厅呈开放式格局,餐桌椅也选择与客厅家具配套款式,形成了整体和谐的呼应,视觉上更开阔大气。
休憩区



客餐厅正对面区域打造成了一个休憩区,在这里可以进行简单的工作、洽谈,也可度过悠然的下午茶时光。
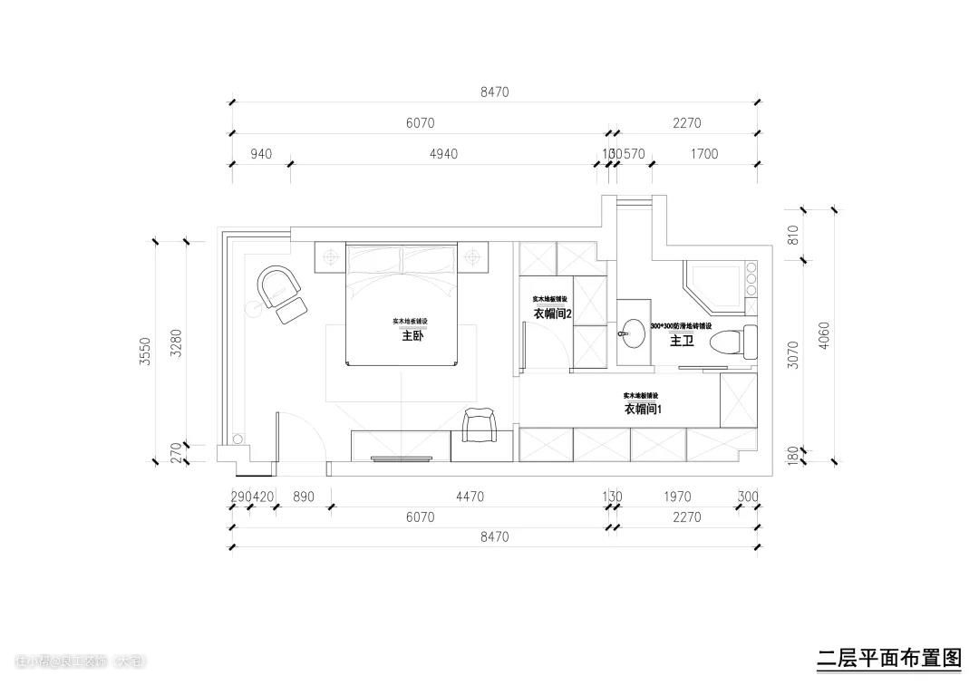
主卧

沿扶梯而上,便是设于二楼的卧室,每个空间都方正从容。


低饱和度的主卧安静耐看,奶茶色背景墙颇有温馨感,整体透露出的是优雅与舒适。


卧室家具成套系成组摆放,形成和谐统一的整体视觉,更显沉稳大气。
次卧


次卧采用了橄榄绿的墙面色调,安宁、静谧,轻易营造出舒适睡眠空间。少许的金属色点缀,烘托出精致氛围。
儿童房



儿童房打造成了一个粉嫩的少女房,淡淡的粉色调墙面与布艺床品,每一个元素都潜藏了童真童趣。
阳台



阳台是居室的延伸空间,充沛阳光、新鲜空气,一桌一椅,构筑一处治愈系休憩空间,随时享受曼妙闲适时光。
厨房

厨房是开阔式的深U造型,黑白配色时尚大气,不会过时,搭配条形金属把手,气质满分。
卫生间

卫生间以经典星空黑为主调,大理石主材让空间更富有质感,简约于形,优雅于里。
