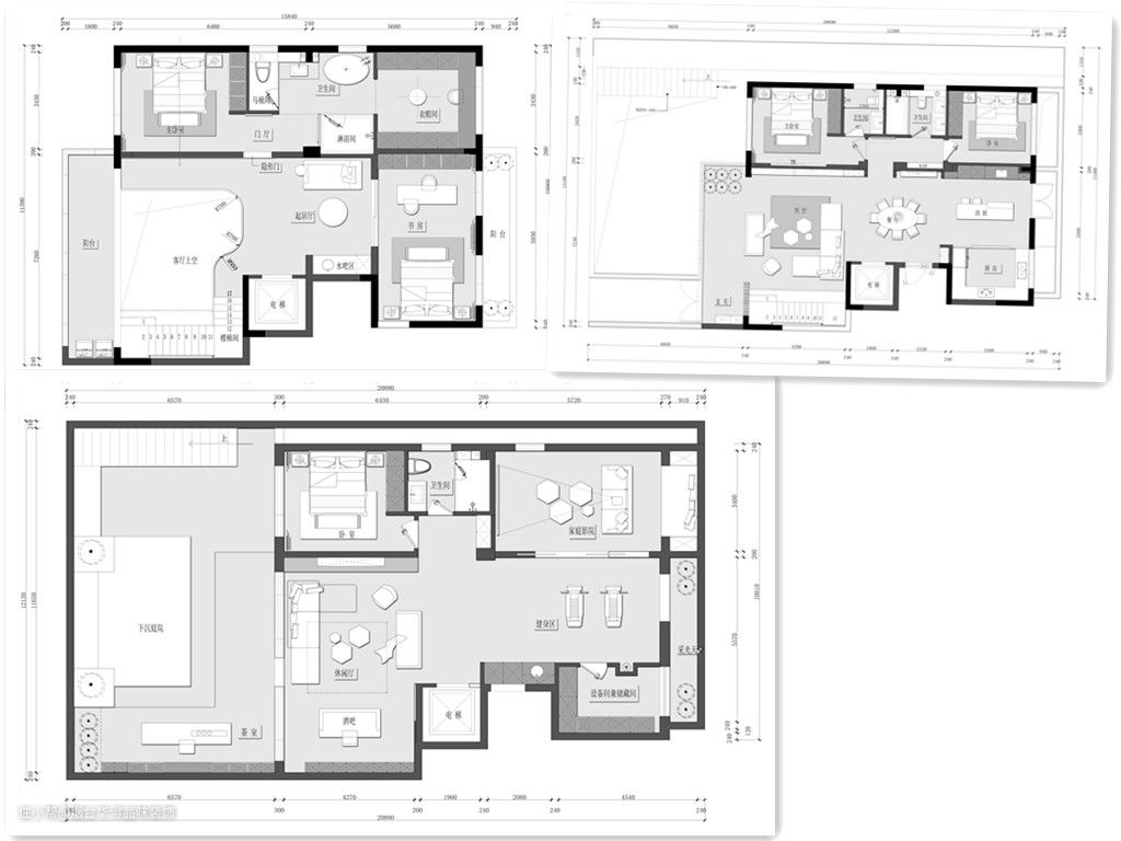
设计说明: 格局上将二层南向卧室去掉,做成客厅的中空及楼梯,加了室内电梯。楼梯不通向负一层,电梯和户外庭院的楼梯可以通向负一层,男主人独享空间。 空间从来不是一种所谓的风格就能囊括,我们一直强调空间应该服务于使用者。主人的气质,当是空间的气质,空间承载着主人的涵养,品味,经历,喜好和对美好生活的热爱与追求。东方的,西方的,传统的,现代的,复杂简单的,围绕着使用者本身,重新组合,不再有明显的界限,以一种独特的气质展现出来。塑造一个空间,即是品读一个人。 原户型图

改造后

改造中

客厅透光性很好,阳光浴应该很诱人。现代风的设计简约大方,皮质感的沙发让整体看上去非常有品味。 实景图

楼梯处的金色装饰墙看上去更又韵味。


从上面俯瞰整个客厅,黑色从皮质的沙发质感知足,地毯的图案和地砖的图案相辅相成,很契合。

效果图




效果图


主卧采用粉色调,搭配棕色和灰色,一眼看上去就很高级,另外金属元素的点缀也让整个空间看上去格外与众不同。暗粉色让整个卧室看上去温馨舒适,卧室采用了无主灯的设计,利用小射灯让整个卧室明亮但是光源缓和,没有那么刺眼,贴心又时尚的设计。整面嵌入式衣柜的设计增加了卧室的可以用空间,美观又实用。 实景图

效果图


衣帽间 爱美是女人的天性,一个衣帽间可以满足女人小小的虚荣心,还能拾起一整天的开心,半开放式的衣柜,一半封闭一半开放,分区分明,一半放衣服,一半放包包和鞋子,爱美整齐两不误。

客厅挑空 客厅搞搞的挑空漏出来的大阳台,阳光晴朗的日子,屋子里全是阳光的味道,别说躺在阳台晒太阳,站在阳台上都是一种享受。

楼梯的设计也很用心,金属框架增添了很多质感,让整个客厅看上去格外显得高大上。

主要材料:意大利岩板、烟熏橡木墙板、贝壳纹地砖
问:有什么值得推荐的好物? 答:欧派全家定制橱柜,日丰太阳能热水器,马可波罗瓷砖等等
