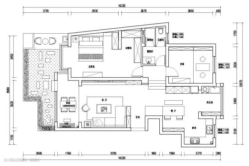
户型解析
据业主的生活需求,以水泥灰+原木色相互搭载,满足工业风的纯粹干练时不失家的温馨舒适。 南北通透的户型,结合良好的采光环境,把客厅、茶室、餐厅、厨房、洗衣房设计在一条动线上,让活动空间充分地释放出来,构筑了一个开放式的生活空间。

玄关
入门即是自然沉稳的气息,水泥灰的玄关柜有藏有露,收纳和实用性兼具,视觉效果整洁舒适。

客厅
木栅栏的隔断里面是客厅区,水泥墙的电视背景墙体现出工业风的冷冽质感。



一面水泥墙,一组休闲沙发,通透的采光和简单的陈设家私,营造出轻松惬意的氛围。

餐厅
餐厅利用自然光源和绿植的结合,烘托出山峦叠嶂的意境,诗意淡雅中丰富了空间层次。



厨房
开放式厨房,合理利用空间,这里有饭菜飘香的明亮厨房,也有推开窗的林木两行,忙碌的生活在此刻被治愈。


主卧
卧室采光极佳,合理运用自然元素,水泥的清冷和木质的温润质朴相互渗透。



书房
一面书墙,一席坐塌,随手取书的自在,呼吸之间满是清爽怡人的书香味 。


阳台
阳光洒在庭院,邀三五好友寻着自然的气息,品茗赏竹,焚香抚琴,足矣。

卫生间
灰色系的卫生间用米白色、白色来点缀,体现空间的干练整洁,低调中给人沉稳的力量。


