业主是一对热爱生活,喜爱艺术品。并且他们对我们的设计师以及设计师的设计高度尊重和配合,才有了现在的高质量落地。每一个位置摆放什么物件都有听取设计师的意见,然后业主夫妻二人也喜欢各处旅游,套鞋稀奇物件回来。于是就有了我们现在看到的,玄关的四幅挂画都是从日本艺术家那里定制回来的画作,玄关/厨房/踏步位的彩砖都是专门定制的手工彩砖;墙面的艺术涂料都是从深圳找的意大利进口涂料做的,质感非常好。置身其中除了有生活的惬意,还有一丝丝艺术的气息,艺术源于生活,高于生活,更应融于生活。

从这里看玄关,是有四副装饰画和用手工定制的彩砖组成,彩砖色彩艳丽,颇有一番美式风情。当然不要小看这四幅挂画,淘宝可是买不到的,这可是业主夫妻二人从日本艺术家那里专门定制回来的画作,是不是不简单。茶几上的青铜奔马的模型,也让中国风融入到整个场景中,寓意马到成功,看来业主对东方文化也是小有研究哦 。

客厅在色彩搭配上想必也是做了很多研究,皮质,绒质,木质,地砖金属等材料融为一体,画面颇为和谐。沙发在色彩上的搭配也是很让人眼前一亮的感觉,各种各样的抱枕避免了色彩疲劳,电视背景墙采用路面铺路的原理,给人一种很接近大自然的感觉。木质复古的电视柜让人很有带入感。

这个角度是在玄关处看到的客厅全貌,暖黄色的色调,温馨的氛围,美式感十足,间隔处也是采用了美式风特有的拱形门的设计。

客厅采用木质家具,深棕色的家具复古感很强,木质的家具加上橱柜和装饰物,文化感很强,吊灯和客厅采用的同一系列的吊灯,很精致。

主卧为了避免到阳光直射经房间,采用百叶窗的设计,方便又实用,还省去拉窗帘的麻烦事儿,主卧依然采用和餐厅一样材质的家具,左姐的处理让这能房间拥有一股浓厚的复古文化感。




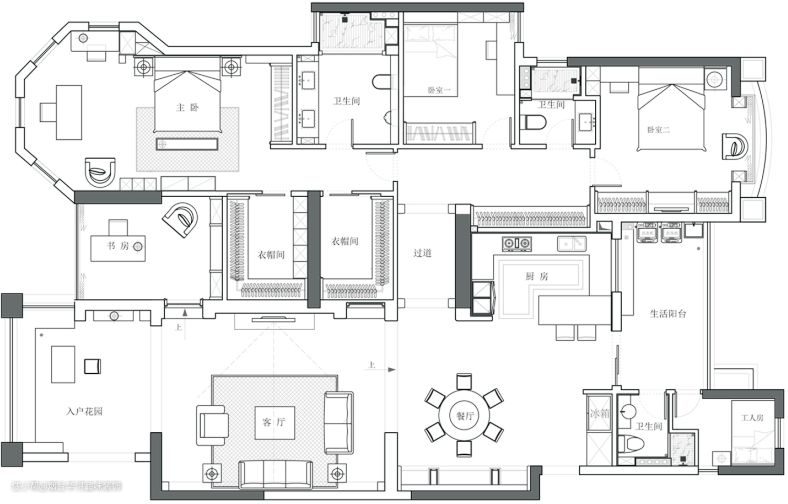
走廊

