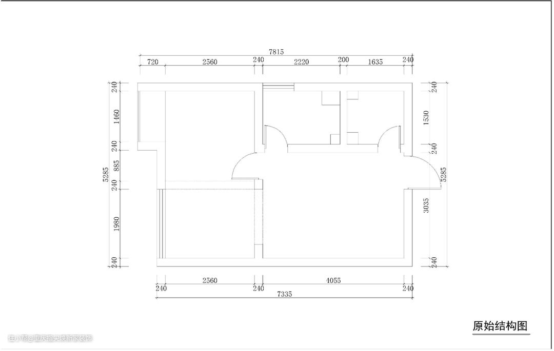
本案例位于渝北新牌坊北城公馆,面积大概在38平方米。 这是屋主刚买的一个二手房,屋主需求是全屋改造,也就是全部拆了重新装修。 这套二手房,存在这些问题: 1、厨房的储物空间过少,橱柜内部潮湿,需要重新规划设计。 2、卫生间看着蛮宽敞的,就是规划有点不合理,加之设施陈旧,担心会漏水,全翻是最保险的。 3、全屋的采光还好,储物空间不多。 小区:北城公馆 面积:38㎡ 户型:2室1厅 项目:全屋改造 设计师:李佳鑫


客餐厅的面积不大,十来个平方,没有单独的餐厅位置。墙面已经变色了,顶面老式的吊灯已经有部分坏死了,里面的灰尘也很多。


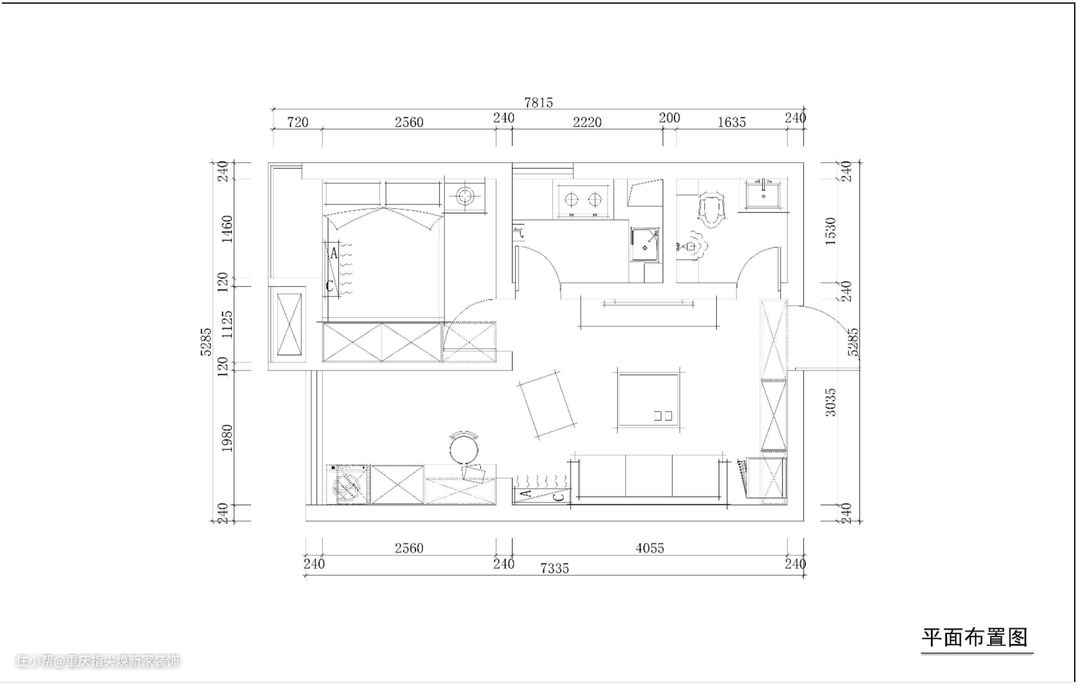
改造后: 增加了我们的入户玄关柜,中间镂空做为临时物品或是常用物品的放置区。下面就是我们的放鞋区。右边的空白区域预计放我们的冰箱,就是用纸箱包装好的那一个。吊柜则放置不常用的物品。

之前的阳台和卧室是用衣柜和石膏板做隔墙,这样的方式不隔音不说,质感也不够。 现在拆掉以前的卧室衣柜,重新砌红砖墙来分割景阳台和卧室,使得两个空间看起来都宽敞了不少。







改造前: 厨房不到5㎡,木门已经被腐蚀,橱柜柜门已经被水汽渗透,墙地面上也还留有以前使用过残留下来的污渍。


改造后: 增加了橱柜的收纳空间,而集成灶也解决了窗户上挂油烟的尴尬,厨房十分的干净整洁。


改造前: 卧室墙面掉色,下半截还用墙纸进行了修补,虽然采光还可以,但是卧室还是像是被蒙尘了一样,生气消失了一半。

改造后: 改变了床的朝向,床头靠墙,床尾朝衣柜,既方便我们拿取衣物,避免了空调对人体的直接制冷还增加了一个床头柜的位置。 从卧室可以直接看透整个客餐厅,绿植是点睛之笔。


改造前: 用衣柜背板做隔墙,阳台看起来不怎么宽敞,布局凌乱空间没得到很好的利用。

改造后: 整个室内没做结构上的改动,重新做了书桌以及储物柜。在这里学习工作都可以。 在储物柜内设计滚筒洗衣机的位置,重新利用了空间但又不显得臃肿,阳台看起来干净整洁了许多。


改造前: 卫生间的整体设施陈旧,布局不合理,使用起来不顺手是肯定的。


改造后: 卫生间重新规划,蹲便和花洒调换位置,使用起来更加顺畅。

