基本情况:本套案例为一个修身养性的度假房。舒适简约又温馨为基调。屋主是一对70后夫妻,有一个帅气儿子。而本套案例的长居者是我们的两夫妻和父母2人。 屋主说:好的设计不去纠结,完善的图纸不去改动,于人便之则是于己便之,不费时也省力,不仅给自己缩短了工期,也给自己节省了钞票,悠哉乐哉。 自言自语:小编曾经幻想过自己的家可以不要传统的沙发茶几电视柜,将客厅融入阳台,让我能拥有一个超级大的绿色培植基地(当然不需要篮球场般大小),和自然亲近,一桌两椅,让小日子惬意起来。看到本套案例,小编诧异,如此大的阳台为何被这般改造,原来,设计师是把自然搬进了客厅。

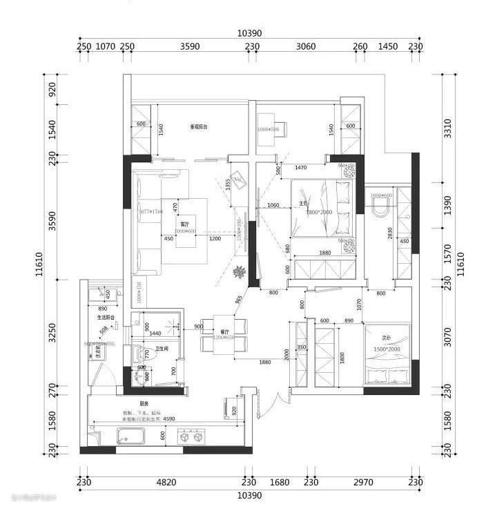
原始结构图 ▲屋内实得面积84平米的两居室,卧室分别居住屋主夫妻2人和父母2人,本套房屋定义为度假房,偶尔回来小憩几日,不需要足够大的空间,却也想走路带风不被磕磕碰碰。

平面布局图 ▲阳台原始长7米,从中间隔断,将一半的阳光封进卧室;将开发商预留的机位收入室内(前提是有多余的位置安放空调外机),放大卧室空间面积;将次卧室的半墙推倒,将墙外空间释放出来,足以增加一个书房出来,储物功能也能随之增加;挖个半墙增加卫生间的使用面积。



▼蓝绿色与灰色相撞划分领地,沙发背景墙以自然之色-蓝绿色的墙面营造一片自然之景,墙面运用简约的挂画做装饰,黑色边框奠定了北欧基调。灰色三人转角沙发,原木色垫底,黑色的圆角站稳根基,配搭墨绿色、粉色和蓝色抱枕活跃气氛。此时的北欧已然丢弃了性冷淡的绰号,回归到一种更自然更有温度的北欧风情之中。

▼灵动的空气中,水泥花盆大株的天堂鸟静置其中,尽显清新高雅之态。


▼远处的龟背竹静观全局,平平稳稳仿佛从墙里盛开而来,在自然色彩的墙面映衬下显得相得益彰。 咖色单人沙发,原木色椅脚,搭上一条貂毛,休闲式度假韵味十足。白色的茶几表面泛着光影,精心打磨过的原木纹桌脚稳稳的扎着马步与小伙伴们保持着协调统一的自然范儿。波西米亚挂毯悬于墙面之上,一旁的绿色相配,怎就感觉自己就坐于阳光洒下的树荫中 温暖惬意...


▼累了的时候,在沙发上静静地躺会儿,一觉醒来,放眼于室内景 色,会发现生活还是如此的美妙,应该会更加贪婪于此。

▼在静谧的空间里,一束光不仅照亮了屋子更是温暖了心扉。


▼连着半开放式厨房的客餐厅,让整个空间更加的开阔,家人朋友的交流互动不仅限于客厅,能够从厨房、餐厅再到客厅。 餐厅区域以白色和灰色为基调,原木色和黑色家具装饰色彩。 原木餐桌配上全黑色餐椅,静坐于此等待味蕾的觉醒,竹编吊灯发散着温暖的光,点亮了嘀嗒嘀嗒的时间,温暖着咕咕作响的胃。在这样一个空间里就餐,似清风徐徐地吹着发丝,似暖阳照在身上舒舒麻麻,神清气爽。


▼餐厅区域不大,也是连接客厅的主动线,没有做过多修饰与装扮,作为不是久居之所,也不需要较大的储物空间,整个屋舍陈设清爽明了,当然也做了应有的储纳之处。


▼为了避免入户的拥堵感,将门厅与餐厅融合,打造成一个共有区域,进门右侧做了一整壁的白色鞋柜,上下柜体结构,中间的长形留空用原木色分割开来视觉上延伸了空间。这样的设计不仅可做空间拉伸的效果也可以放置一些小绿植增强生活感,亦或是放置临时物件,这样大的容量可以归置不少小东小西。 一旁的餐桌也不再孤单,我们的餐桌似乎有了一个像样的餐边柜了。

▼厨房,生活气息最浓郁的地方,一家人团聚,炊烟袅袅,半开放式厨房,拉长了烹饪空间,缩短了与家人交流互动的距离。白色的墙面与白色的操作台面干净整洁干练,原木色柜体提升心里的温度,白色亮光砖无形扩大了空间美感,也美化烹饪时的心境。



▼卧室以灰色白色为基色,居室清新淡雅。搭配蓝色粉色软装饰品调和,心里的温度回升。而要数最温暖,必定是无论从视觉上还是触觉上都很舒服的原木大床。


▼床作为整个卧室里的视觉重点,奠定整个卧室的气场。原木纹的高床板就是这个卧室的气场担当,向上延伸的床板视觉上拉伸了空间高度,与低矮敦实的床架形成反差。当然通顶的原木纹衣柜功不可没,用自己不可撼动的气势奠定着北欧情调,上调温度 不乏风情。

▼同材质的细脚床头柜,储物能力不在话下,装饰品随意摆放都显得格外的精致。原木边框的床头挂画大面留白,视线宁静而致远。

▼卧室最原始的滑门被取掉,极大的扩大了卧室空间面积,延伸视觉,形成一个化妆和小憩的地方。舍弃空调机位,将其融入室内,增大了采光面积。小巧精致的化妆桌配上原木宽窄边框镜,再配上一把单椅,靠一个粉色的抱枕,女人的小世界在这里画上一笔笔。




▼与主卧同行色的顶 墙,搭配不一样的床品有了别样的味道,几何图形的装饰充分表达了北欧韵味。大面积的留空给人以无限遐想,小小的摆饰也有了特有的味道。


▼闲暇之余,一盏灯一杯茶一本书一背影,生活该有的映像。

▼卫生间小巧但五脏俱全,黑色的浴室柜、黑色的浴室镜框,精致干练,马桶上方设置毛巾架,不浪费一丝空间。

- end - 愿岁月静好,愿有一间屋子 能避寒遮雨,有花有草有你
