业主是一对年轻的夫妻,女生是高校教师,男生是银行从业人员。他们本身在在附近有一套房子,和父母一起,里面住着热闹的两代人。本案的这个公寓离那个房子不远,目的是为了分担一部分的功能需求。因为两个房子隔着几百米比较近,我原本以为是有部分家属会搬出来长期住这边。但其实这个公寓只是夫妻俩各自可能会用到的独处空间。 业主的跟我说:这个公寓可以是是两个人的一个get away,稍微脱离日常生活一些,有些仪式感也得放松。有时候也能独处在这写字、画画、读书、听音乐、小酌、休闲等等,因为偶尔加班,主要是文字工作。就好像你做的其它案例一样,可以是美术馆的氛围、也可以是一个小书店的感觉,如果说日常生活在框定的那个觉得稳妥的舒适度里面,这个公寓可以在功能的基础上打破一些束缚。风格其实喜欢带点色调感的复古,中性色和灰调的感觉。 说到这里我大概可以感觉到我的设计方向,其实复古的元素在空间里扮演的是情感承载物,它是可以感染到整个空间氛围的,功能合理是契合基层生活方式,表层的色彩和装饰则是衔接生活气质,我一直都说,我想做一些跟业主里应外合的设计。

1、长条形户型,空间相对比较狭窄。根据需求,需要同时满足休闲娱乐和居住功能。人体工程尺度使用效率需要严谨。2、长条形户型,动线流程需要连贯。为了保证采光,在区域划分时,不应设置太多遮挡保证采光。3、卫生间面积较大,使用率低。

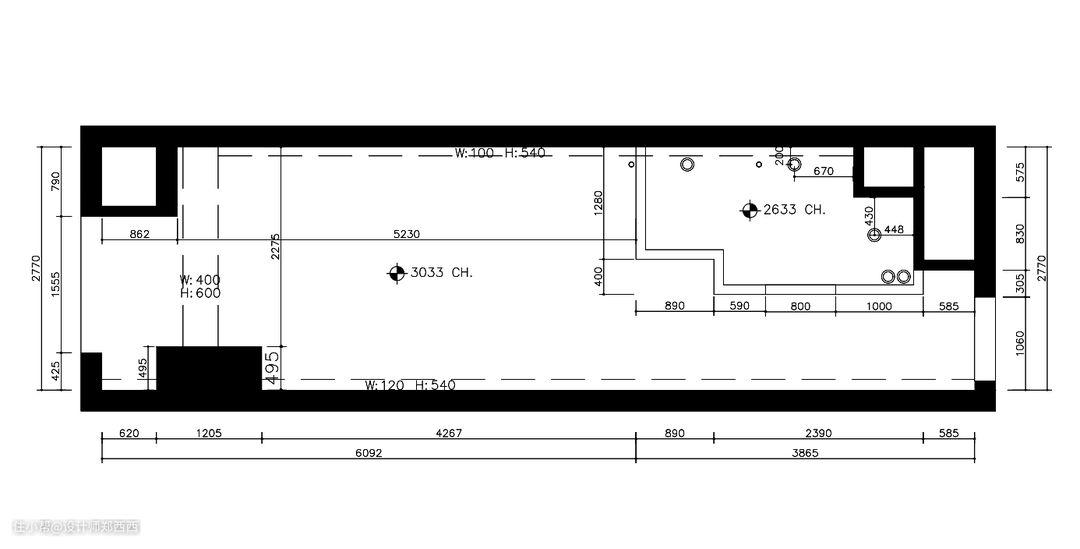
最终确认下来的平面布局是这个方案; 原始结构图方正且开放,如何在开放空间里做到各功能区域的隔而不断。 整个平面布局采用的是通过对各个功能区的围合,形成各自区域的分隔;包括后面介绍到的立面也同样是相似的设计手法。整体格局各个区域的面积占比根据业主需求量而定,在保证人体工程学尺寸舒适度的同时,连贯整个空间,优化开阔性。 方案拆除了原始结构的墙体,重新划分了卫生间格局,缩小了卫生间面积,利用其中的一部分作为衣柜储物区,厨房和客厅卡座、书桌形成围合关系,睡眠区也可以被书桌半遮挡,形成隐私区域划分。最大化灵活的保证休闲空间面积;睡眠区规划为地台, 睡眠区-书桌-卡座-厨房,这些部分都是连接在一起的,各个环节高低错落,方圆有序,不浪费一处空间,也达到了满足业主需求的收纳效果。 #卡座 #书桌 #收纳 #沙发 #日式

地面材料分布,给业主提供了两个选择,最终业主选定的上仅厨房区域为地砖,其它部分为木地板。

设计概念:这是业主喜欢的色调和感觉,本案设计理念结合立意于当代简约生活方式下的的复古色表达。 #弧形#拱门#无主灯#全屋定制#日式#现代#北欧#艺术
根据现场实际户型结构,利用弧形设计元素柔化空间,结合色彩的配搭,流动性也影响整个空间的气质走向。客餐厅和居住区配色低饱和复古,采用色块比例对比和色系碰撞的设计手法。并且在多处留白给予墙面色彩丰富的装饰画更多表现空间。

现场勘查:空间呈现细长条,入户位置采光不佳,为了保证采光和动线通畅,所以中间不再适合有隔挡;消防喷淋根据设计要求由物业进行移位;原始结构没有利用价值,基本全部拆除。

根据现场实际户型结构,利用弧形设计元素柔化空间,结合色彩的配搭,流动性也影响整个空间的气质走向。客餐厅和居住区配色低饱和复古,采用色块比例对比和色系碰撞的设计手法。并且在多处留白给予墙面色彩丰富的装饰画更多表现空间。
在过道位置单独强调一个拱门,目的是为了让空间隔而不断,使原本长条的空间分为三个空间部分:玄关-休闲功能区-睡眠区,通过地面材料和立面造型、色彩去感知功能区域的划分,确保空间秩序感清晰;入户的位置安装墙挂衣帽架,放置随手拿物品,卫生间门右侧的衣柜作为长期衣物储存空间;黑色的线条在视觉上体现出形式感,突出想要表达的色彩和造型,同时房圆之间也有一些对比性。#配色 #复古 #绿色 #复古


业主喜欢的色彩风格比较复古,墙面的装饰画的内容和色彩选择也是想呼应硬装色调。简洁的线条搭配明亮的色块,也可以让空间成为一处摆拍的场景。#卡座 #复古 #橱柜 #厨房 #复古 #餐厅 #小户型 #公寓 #弧形#拱门#无主灯#全屋定制#日式#现代#北欧#艺术 - 卫生间 -

入户玄关层高比较高,有条件在顶部做一些趣味性的设计;这个色块图案灵感来源于荷兰风格派,它主要表达的是对于色块的分隔比例所产生的美感和视觉平衡,通过这个入户玄关,顶部设计隐喻的传递了房间内部的设计手法,室内同样是对空间进行了平面上的区域分隔,达到使用舒适度的平衡,色彩上也产生了一定的联系,蓝绿色调和黄绿色调,红白和灰色去协调出复古的感觉;#蓝色墙 #玄关 #复古 #DIY

在过道位置单独强调一个拱门,目的是为了让空间隔而不断,使原本长条的空间分为三个空间部分:玄关-休闲功能区-睡眠区,通过地面材料和立面造型、色彩去感知功能区域的划分,确保空间秩序感清晰;#卡座 #复古 #橱柜 #厨房 #复古 #餐厅 #小户型 #公寓 #弧形 #拱门 #无主灯 #全屋定制 #日式 #现代 #北欧 #艺术
客厅同时也兼顾着作为餐厅,书桌有时候也可以充当餐椅进行灵活布置,卡座与书桌、橱柜刚好形成一个围合关系。高低错落,体现出空间层次感,和简约的设计手法。#客厅 #日式 #榻榻米 #床 #原木色 #卧室 #复古

客厅同时也兼顾着作为餐厅,书桌有时候也可以充当餐椅进行灵活布置,卡座与书桌、橱柜刚好形成一个围合关系。高低错落,体现出空间层次感,和简约的设计手法。#客厅 #日式 #榻榻米 #床 #原木色 #卧室 #复古

卡座可以作为餐桌也可以是书桌,当客人来的时候,接待量最多可坐5人#配色#卡座 #复古 #橱柜 #厨房 #复古 #餐厅 #小户型 #公寓

墙面有很多地方做了留白处理,给业主后期预留出较多的装饰发挥空间,同时也因为小空间在半身以上的维度不适合做过多视觉遮挡性的装饰,有时候以空间造型为美也是一种对空间格局限制的一种精神互补。#配色 #卡座 #复古 #橱柜 #厨房 #复古 #餐厅 #小户型 #公寓

电视机安装了旋转支架,可以在不同角度进行观看。

板材的纹路特地挑选的横纹,保证视觉张力和纹路连贯性。#原木色 #沙发背景墙 #收纳 #书桌 #办公椅

从床位方向看向厨房,浅色的墙漆可以延伸视觉,增加趣味。墙漆的高度也刚好是卡座背和床背的高度,目的就是塑造围合感,减弱原有弧形狭长的感觉,做到空间尺度适宜。类似低矮化处理的隔断,保证空间采光和视线都不会有阻碍; 空间整体视觉纵向空间分为上中下三个部分,上部分留白,中间部分主要是装饰性物品,下部分则是功能区部分;#卡座 #复古 #橱柜 #厨房 #复古 #餐厅 #小户型 #公寓 #弧形#拱门#无主灯#全屋定制#日式#现代#北欧#艺术


比较喜欢的一把椅子,即现代也比较复古,体验起来也比较舒适。
蓝绿色的砖与木色的搭配比较清新自然。内嵌电磁炉和内嵌洗手盆工艺,视觉上比较简洁。#卡座 #复古 #橱柜 #厨房 #复古 #餐厅 #小户型 #公寓


厨房区域划分比较有限,在柜下放置小冰箱和洗衣机,储物则主要集中在吊柜区域。整体的造型曲线和直线相互呼应,色调也在蓝绿之间进行深浅变化和对比色补充,整体达到一个和谐的视觉效果。#配色#卡座 #复古 #橱柜 #厨房 #复古 #餐厅 #小户型 #公寓 #弧形#拱门#无主灯#全屋定制#日式#现代#北欧#艺术

蓝绿色的砖与木色的搭配比较清新自然。#卡座 #复古 #橱柜 #厨房 #复古 #餐厅 #小户型 #公寓

卡座区与橱柜之间挡板,比橱柜略高;地砖部分与地板高度齐平#卡座 #复古 #橱柜 #厨房 #复古 #餐厅 #小户型 #公寓 #弧形#拱门#无主灯#全屋定制#日式#现代#北欧#艺术

内嵌电磁炉和内嵌洗手盆工艺,视觉上比较简洁。#卡座 #复古 #橱柜 #厨房 #复古 #餐厅 #小户型 #公寓

整个床位空间实际上是一个地台,地台下做了大量的储物;图上的这一踏步高度为250,内置了一个暗谈抽屉,地台的抬高也预示着区域的划分,这个地台也可以作为一个座位,随手拿起书架里的书进行阅读;这个床对面的区域本身是一个建筑柱点,顶上也有横梁,所以我采用了弧线造型对梁位进行了弱化,同时也补充了部分吊顶,呼应地台顶部也同样进行了区域划分。#配色#卡座 #复古 #橱柜 #厨房 #复古 #餐厅 #小户型 #公寓 #弧形 #拱门 #无主灯 #全屋定制 #日式 #现代 #北欧 #艺术 #书桌

因为是公寓,没有阳台,只能用洗烘一体机机然后把衣服晾晒在靠窗通风位置。利用原有建筑结构,在靠近窗户的位置设置了储物柜。#配色#卡座 #复古 #橱柜 #厨房 #复古 #餐厅 #小户型 #公寓 #弧形 #拱门 #无主灯 #全屋定制 #日式 #现代 #北欧 #艺术

床尾看向厨房,床垫压住的部分为暗藏储物空间。#配色#卡座 #复古 #橱柜 #厨房 #复古 #餐厅 #小户型 #公寓 #书桌

床头一角#配色#卡座 #复古 #橱柜 #厨房 #复古 #餐厅 #小户型 #公寓 #弧形 #拱门 #无主灯 #全屋定制 #日式 #现代 #北欧 #艺术


床尾部分安装了衣帽架,利用好那个角落空间;同时放置了业主喜欢的床尾柜放置一些物品;白色的墙面上因为已经不适合再挂画,比较占空间,所以设计了一个彩色图案呼应空间造型。#配色#卡座 #复古 #橱柜 #厨房 #复古 #餐厅 #小户型 #公寓 #弧形 #拱门 #无主灯 #全屋定制 #日式 #现代 #北欧 #艺术

整体灯光选用的是4000k色温,在不同功能区域单独给予了控制,做到灯光均匀。#配色#卡座 #复古 #橱柜 #厨房 #复古 #餐厅 #小户型 #弧形 #拱门 #无主灯 #全屋定制 #日式 #现代 #北欧 #艺术

卡座与书桌交接处作为床头柜区域,床头柜抬高到与床垫同样高;床背板与卡座背板一致的高度,板材的纹路也同样是横纹,有很好的连贯性,与墙面的简洁形成对比。#配色#卡座 #复古 #橱柜 #厨房 #复古 #餐厅 #小户型 #公寓 #书桌
从书桌的位置看向窗外,可以看到原有的梁位被弧线修饰的比较灵动,除了地面空间的几个组合家具的连贯性和围合感,顶部天花的设计也考虑到了连贯性和围合感,弧线可以让视觉显得更加通畅,在开放的空间里,围合的感觉可以增添更多的安全感和隐私性;#配色#卡座 #复古 #橱柜 #厨房 #复古 #餐厅 #小户型 #弧形 #弧形 #拱门 #无主灯 #全屋定制 #日式 #现代 #北欧 #艺术


#现代 #北欧 #艺术

弧形可以弱化视觉上的冲撞感;墙面的色块造型也是呼应围合的设计理念,同时丰富视觉体验。#配色#卡座 #复古 #橱柜 #厨房 #复古 #餐厅 #小户型 #公寓 #弧形 #拱门 #无主灯 #全屋定制 #日式 #现代 #北欧 #艺术

书桌和床头柜的位置相互独立,形式整体。各个细节功能区相互围合的造型呼应设计理念。也保证了各个功能区的物品摆放可以不混淆在一起。卡座下方设置了无把手储物空间,收纳量还是很大的;卡座后期可以根据喜好进行坐垫和靠垫的增加;#配色#卡座 #复古 #橱柜 #厨房 #复古 #餐厅 #小户型 #公寓

书桌和床头柜的位置相互独立,形式整体。也保证了各个功能区的物品摆放可以不混淆在一起。#配色 #卡座 #复古 #橱柜 #厨房 #复古 #餐厅 #小户型 #公寓


书桌旁边设计的是书架,分别用于随手放和长期放两种方式,每一层都做了书挡;同时满足了高款书籍和底款书籍的摆放需求;书桌的两个角做了圆边处理,呼应空间关系的同时,也避免了风险性磕碰;选择的地板的时候拿了全屋定制的板材去对比,类似于黄蜡木;我当时的选择是尽量挑选色彩饱和度接近的材料,做到整体感比较强,小空间也不适合有太多的材料表现。#配色#卡座 #复古 #橱柜 #厨房 #复古 #餐厅 #小户型 #公寓

床头灯刚好可以照亮床头柜的部分,也可以利用这盏灯作为书桌的辅助灯光。#配色#卡座 #复古 #橱柜 #厨房 #复古 #餐厅 #小户型 #公寓

弧形的小细节,也是为了安全考虑。#配色 #卡座 #复古 #橱柜 #厨房 #复古 #餐厅 #小户型 #公寓


比书桌面高的围挡也与书桌面、卡座背板形成了高低秩序感,也各自找到了各自最好的比例关系。我一般在设计前会对不同业主的身高比例去进行尺寸定制,完工后也会亲自体验。比如书桌的高度,卡座的高度有比较多的选择,选择业主最适合的那一种其实才算合格。这个书桌面高度为780,其中抽屉厚度为120;#配色#卡座 #复古 #橱柜 #厨房 #复古 #餐厅 #小户型 #公寓 #弧形 #拱门 #无主灯 #全屋定制 #日式#现代 #北欧 #艺术
卫生间配色清新,选用彩色砖形式进行搭配,着重阐述空间表现力。设计主要是想在现在中带有一些复古的感觉,蓝砖部分是希望营造出泳池的清凉感。洗手台的橙色也是为了与浅蓝色进行对比。卫生间门外层用的是超白长虹玻璃,内层用的是磨砂玻璃。即透光也保证了隐私。#卫生间 #复古 #洗手台 #水龙头 #花洒 #复古砖 #方块砖 #长虹玻璃 #半墙砖 #洁具

洗手台设置了镜前灯和镜前筒灯,筒灯是为了照亮洗手台,镜前灯是为了在洗漱化妆的时候照亮面部;我的身高是165,水龙头的高度定的是可以方便洗脸的高度。#卫生间 #复古 #洗手台 #水龙头 #花洒 #复古砖 #方块砖 #长虹玻璃 #半墙砖 #水磨石 #洁具 #镜前灯


水龙头和花洒都是暗装,小空间可以充分利用使用面积,形式上也更为简洁;灰色的地砖和白色的墙砖再加上黑色的五金结局和淋浴门,协调彩色可以搭配出即复古也现代的感觉,砖块也基本选用的是格子砖呼应围合的设计理念;小的淋浴间推荐顶喷,水冲角度可以更好的覆盖身体;淋浴间做了一个小窗台处可放置一些清洁物品。#卫生间 #复古 #洗手台 #水龙头 #花洒 #复古砖 #方块砖 #长虹玻璃 #半墙砖 #水磨石 #洁具 #镜前灯

洗手盆定制的是台上盆,从形式上会比台下盆更有仪式感,但是台上的使用面积却相对减少。如果加上镜前置物架可以解决这个问题。#卫生间 #复古 #洗手台 #水龙头 #花洒 #复古砖 #方块砖 #长虹玻璃 #半墙砖 #水磨石 #洁具 #镜前灯

淋浴间的玻璃贴了防爆膜,成本会略微增加一些,但是还是为了安全考虑,推荐业主这么做,防患于未然;淋浴门的把手考虑的是短把手朝内,方便使用,长把手朝外可以作为毛巾架使用。#卫生间 #复古 #洗手台 #水龙头 #花洒 #复古砖 #方块砖 #长虹玻璃 #半墙砖 #水磨石 #洁具 #镜前灯

淋浴间半墙砖在没有收边条收口的情况下,做法应当是妮子与瓷砖收口处进行弧度或斜边处理,并且在漆面刷上罩光剂可以达到室外防水的效果,也容易擦洗。

半墙的高度为了对缝做的比较高;暗藏的龙头和混水阀提前预埋;#卫生间 #复古 #洗手台 #水龙头 #花洒 #复古砖 #方块砖 #长虹玻璃 #半墙砖 #水磨石 #洁具




我比较喜欢弧线给空间增加的想象力,业主挑选的挂画;#配色#卡座 #复古 #橱柜 #厨房 #复古 #餐厅 #小户型 #公寓
QUESTION & ANSWER Q & A Q:装修过程花了多长时间? A:疫情期间的项目,四个月左右 Q:说说是什么给了你灵感,打造出现在这个作品的? A:大卫霍克尼和荷兰风格派,都是我喜欢的历史部分,也同样是跟业主的共鸣部分。 Q:你对这套作品最满意的地方在哪里,为什么? A:空间造型关系和连体的感觉,长条形户型做的少,克服了一些空间想象力的问题。 Q:对平面布局做了哪些优化改动,为什么? A:缩小了卫生间区域,因为取舍之下,各个功能空间是做到平均还是侧重,设计师要给业主选择。 Q:在整个装修设计期间遇到最大的挑战是什么? A:尺度吧,小户型往往会遇到很多敏感的尺寸问题,有时候分毫必争会陷入纠结,因为教科书上永远只会告诉你区间,只有经验才能告诉你具体数字。 Q:回头再看这套房子,设计当中有什么遗憾的地方吗? A:有很多我个人主管上更大胆的想法,但因为业主需求的原因,我觉得我的遗憾不代表项目的遗憾。 Q:为了满足客户的个性化需求,你在设计过程中做了哪些事情? A:原创的设计点都算的上是为了满足客户个性化需求而做的事情
