楼盘 | Address珠海 云山诗意 户型 | Apartment 四室两厅 面积 | Square meters 170㎡ 风格 | Style 英式田园风 设计 | Designer 九米设计 施工 | Soft Decor 九米装饰 用“采菊东篱下,悠然见南山”来形容这里,可以说是相当贴切了。 如果把英国的乡村比喻成一个温柔的女子,优雅、细腻、恬静与质朴,没有任何杂念,透漏出强烈的温暖往往让人感动。在家中用英式田园风格装修的方式来品位这种难以用语言表达的温暖。 在房子的挑选上,很重要的一个因素就是为了小朋友未来的教育。在新香洲片区有以一中高中部为核心的教育文化区域,对比老香洲,生活配套没那么方便,但这一片的潜力更大。加上香山湖公园的完善,使该区域更有了一种文化休闲的感觉。作为幼儿园小朋友的父母,云山诗意这套房子能满足南北通、采光、通风、朝南、视野开阔、价格适中……等因素更适合业主的了。

原始结构图

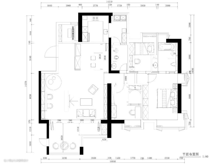
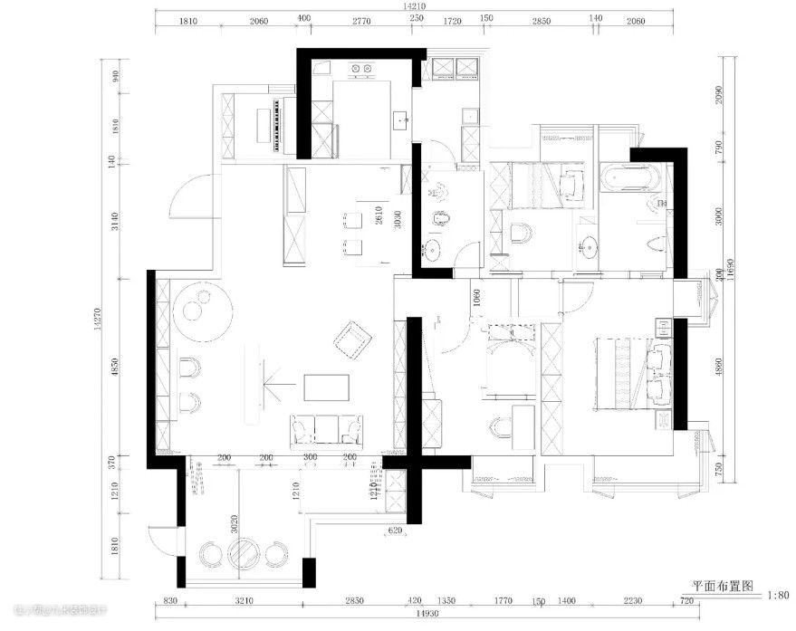
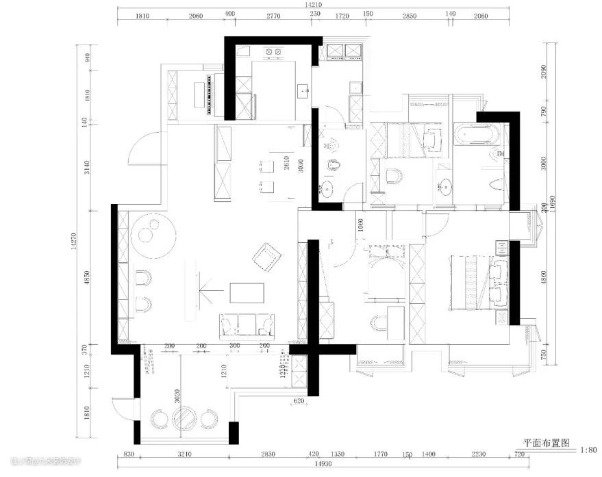
平面布置图




住在英式田园风格的房屋,让人觉得幸福与饱满,仿佛游荡在人间乐园,毫无烦恼。在快节奏生活的今天,这种舒适与宁静倒也成了一种奢侈,最理想的生活方式,人们不遗余力的去追求与寻找,拥有一处世外桃源式的房子,倒也是人们一个重要的奢求。



不仅追求田园风格的装饰效果,也考虑了空间的应用,在空间方面尽量做到配置优化。留下家庭成员日常起居需要的私密空间,其余部分尽可能地做到流向单一,增强整体的流动感,让居住起来更为自在、实用,不浪费和空置宝贵的空间。

经过玄关来到客厅,乍一看中间的电视墙可能有点突兀,但是仔细看下来,恰恰是这个隔断将客厅一分为二,功能分区十分明确,一边可以休闲喝茶聊天看电视,另一边办公学习一家三口的位置都安排的妥妥当当的。看得出夫妻二人是十分重视对孩子的教育的。客厅具备了相当大的储物空间,两面的背景墙全部做成了储物柜,而且已经整整齐齐的摆满了各种各样的书籍。



英式田园装修风格的受众人群多来自有情调的小资和喜欢享受生活的人们。平时喜欢读书,审美和对美好生活的追求感也比较强烈,敏感的内心对这种温暖惬意生活环境有着无法抗拒的向往。


注重生活的舒适性,所以复古的沙发、野花盆栽、花布、铁艺制品都是房屋内常见的装饰物。整体的氛围优雅。装修中强调温馨含蓄,散发着淡定与从容。餐厅一侧做成了卡座,聚餐的时候也不会怕不够位坐。

















