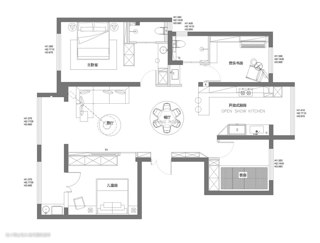
户型解析

房屋结构基本满足屋主需求,所以我们从入住者日常动线思考,进行少量改造,从而达到储物空间满足的情况下却不显拥挤,生活动线更清晰便利,提升全屋居住舒适度。
客厅


客厅最基础的硬装部分配色选用低调沉稳的灰白调,百搭耐看,恒久不变的经典。借家居配色和空间线条走向,让功能区域更为分明,视觉上更利落。
餐厅

厨房

开放式厨房,敞开后空间感更为开阔,强大的餐厨系统,可独立操作又可相互补充。
主卧

卧室是最好的放松自我安全区,独立私密,回归本我。软体家具的选用跟墙面配画结合,感官舒适身心具佳。让我们慢慢来填满我们的家~~

次卧

次卧榻榻米格局和书桌结构,暖色木饰面,使得整个空间舒适感更充足,更温馨。预留灯带,卧室的间接照明,便于夜晚使用。
儿童房

梦幻般的儿童房,治愈孩子每一天。浅米+蓝灰色的空间配色,都营造了小朋友对未来生活最美好的憧憬。
书房

书房准确的来说,更像是一个多功能房,附工作区与休闲功能,又满足业主对独立空间的需求。
卫生间

整体以黑白两种颜色,为了不显得乏味,墙面铺贴了纯白色的瓷砖,增加视觉上的空间感,让卫生间时尚又美观。
其他
这套设计上,更大程度的去贴合一家人生活的便利需求,同时在外观上追求现代前卫的家居风格,我们希望在未来几十年中,这样的设计是永不过时的。
