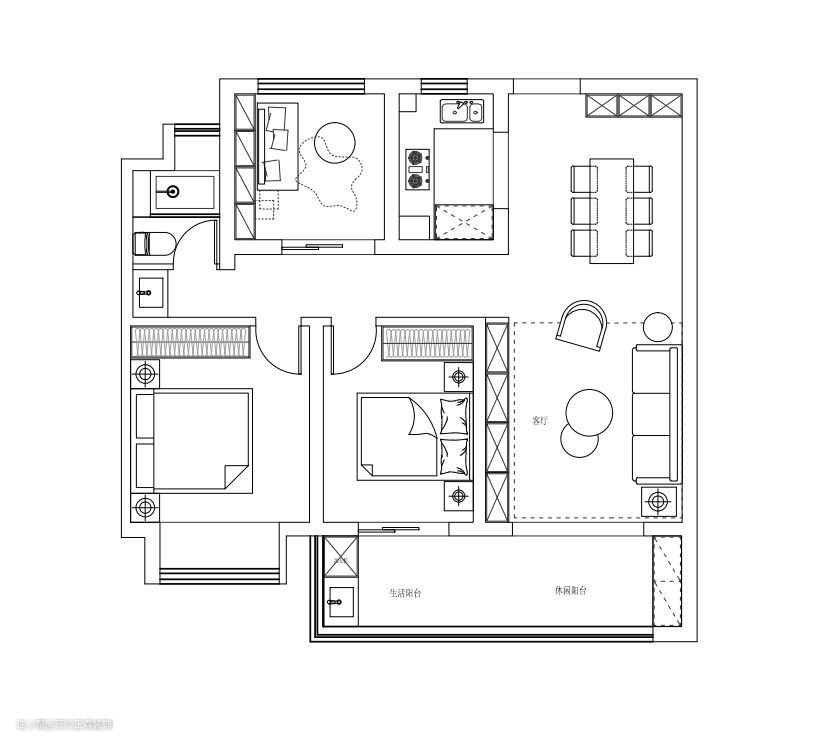
户型解析
项目丨Project Address : 万象汇 面积丨Square Meters: 90平 风格丨Project Style : 现代·轻奢 设计丨Design: 正森装饰设计 关于装饰的第一条规则是,你可以打破几乎所有的其他规则。 ——比利·布拉德温
前后对比
经常会有人吐槽找了装修结束后发现自家的装修效果出现各种雷同的设计,同款的背景墙,同款的沙发,同一个世界统同一种装修。但这次这套设计会告诉你哪怕再常规的户型也能做到与众不同,格外出彩。


玄关
入户左侧的位置都做了定制柜,中空的设计在回家的时候可以把手机钥匙随手搁置,成为室内外的过渡地带,并承担了强大的收纳功能。

客餐厅
通过玄关就是开放式的公共空间,将大阳台纳入到室内以后,整个空间变得更加开阔通透。

客厅作为新家的一个焦点,皮质沙发和大理石茶几无疑是凝聚人气的最佳组合。配上一把休闲骑,就是一家人交流互动的最佳场所。客厅金属的吊顶走边则为整体添加了一抹金属的亮色。


有一种生活, 不是让你“奔波”而是让你“驻足”。 餐厅与客厅协调共生,是欢声笑语的延续。


厨房


主卧

一个家,外表有多坚毅, 内心就有多柔软。 主卧采用皮质硬包作为背景, 与窗帘同步色彩构成舒适的视觉体验。


次卧
次卧 以最简单的布置营造出舒适好眠的氛围。


阳台

卫生间


