本案例是采用了现代简约的装修风格,在色调搭配上,采用了清新的原木色作为主色调,原木色本是大自然的颜色,搭配浅色系的软装凸显时尚大气,仿佛将家装融入自然之中。另外,设计师在搭配上,选用了和谐统一的色调塑造空间,简约的浅色占据主导地位,再搭配原木材质作为空间的点缀,整体呈现干净纯粹的极简风格。虽然整体都没有做过多复杂华丽的造型以及搭配,但就是这样简简单单,没有过多加工的痕迹,给主人翁带来身心的愉悦体验感。
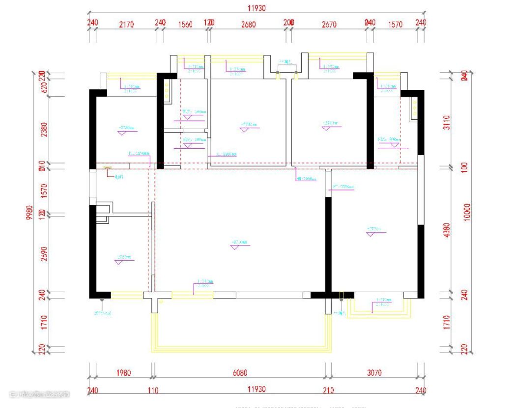
主要是采用了原始户型图与平面布置的对比,凸出简练空间的整洁大气:

原始户型分析:1.入户旁边就有个小次卧,显得有些压抑。2.竖厅的布局,客餐厅一体,空间区域划分不明显。3.户型方正,空间的利用率高,但是动静区分不明显,私密性能得不到保证。4.户型单侧采光,通风与光线不理想。5.一家四口居住,空间的收纳储物功能有待提升。

平面布置图:1.入户的厨房侧,直接做鞋柜,方便日常进出需求。2.入户旁的小次卧设计成书房兼具客房。3.餐厅利用阳台墙做餐边柜,增强收纳同时,又能提升空间的利用率。4.将客卫的洗漱台移到过道,方便使用。5.卧室利用墙面做到顶的定制柜子,增强储物功能。6.采用浅色搭配原木,空间雅致温馨,还提亮光线。
客餐厅一体化,开放式的设计能让空间更显宽阔。简练的天花内置2000K的氛围灯,营造家的温馨氛围。


纯白墙面作为电视背景墙,符合整体客餐厅的简约风格,电视机坐落于墙体正中间,让人视觉瞬间有了落脚点,大面积留白也为业主留出自由发挥的空间。

浅灰色与原木色搭配,让客厅充满安静优雅的姿态,整体也充满了一种很独特的韵味,简洁、端庄又大气。
玄关置顶定制柜作为日常物品收纳区和鞋柜,柜顶与灯具的天花相连接起来,整体性更强。


而中间30公分的镂空,有做了挂钩和插座,增强实用性能,同时柜体安装暗藏灯带和装饰,让空间不显呆板。

另外一边的柜子,做了挂衣区以及鞋子的置放区,虽然整体不大,但大大提升了幸福指数。
整个客餐厅采光充足,而餐厅作为客厅与厨房的过渡区域,利用沙发与定制柜子似分未分的功能区域,空间富有了层次感。


原木色餐桌椅搭配象牙白大理石台面,整体融入自然,打造一个清新的用餐环境。

餐厅旁边利用阳台窗做了定制的餐边柜,既不影响空间的整体通风采光,又能增强空间的储物功能。
橱柜台面升级为壹品装饰国标工艺——前后挡水工艺;“L”型厨房合理利用厨房空间,避免出现卫生死角。


墙体旁边了小柜子方便置物,又可以将双门大冰箱放置其间,优雅紫的冰箱,有些俏皮。

洗漱盘采用了大小两个水龙头,方便使用,放在厨房的一角,不影响厨房的采光。
主卧以浅灰色为主打色,深棕色床让主卧有了重点,轻与重的结合展现出空间的美感与平衡,营造出安静轻松的睡眠空间。



嵌入式的定制柜子,两边连接顶上是衣柜,而中间是置入了电视机以及置物格,主人翁收纳置物方便多了。
长辈房做了推拉门的定制衣柜,开衣柜时不会占据过多的空间,而入户旁边是做了简单的置物格,方便放置日常用品。


长辈房的床具与主卧的相一致,凸显空间的整体性能,同时咖啡色的原木,也是比较符合长辈的审美。

飘台是没有做过多的修饰,主要是长辈可以置物,也可以打造成一个休闲场所,可塑性是比较强的。
女孩房的色调主要是以色活泼明亮为主,丁香紫的乳胶漆直接上墙,给人一种俏皮之感。


飘台的位置主要是小孩的学习区域,飘台做了嵌入式的小书架,旁边是还没回来的多功能的书桌的位置。

儿童房的整体搭配构思,是想要用现代化的时尚软装打造年轻化的生活方式。
书房不仅仅是学习以及主人翁日常办公的场所,旁边做了平开门的衣柜,同时也增强收纳功能。


置办的可拉伸的沙发还没到,平时可以当做沙发坐,有亲朋好友需要留宿时,就可以拉伸成小床了。

空调位置下面是一个比较大的办公学习书桌,空间的布局是比较合理的,没有一寸空间的浪费。
经典黑白格纹打造卫生间空间,给人清爽干净的感觉,再搭配深色储物柜满满的ins风。


采用了干湿分区的区分,洗漱台、马桶、花洒是一字型的排放,整洁方便使用。

主卧是采用了花色的马克砖进行马桶区域的装饰,让空间不再单调,黑白相间的色调又不会过于花俏。
1.如何有效控制装修预算? 答:主要是以简单的配色搭配实用的家具软装,以经济实惠为主。 2.最满意的设计亮点是什么? 餐厅的布局得到了合理的分割,同时又能够增强收纳储物的功能。 3.最值得推荐的软装好物有哪些? 摩力克的窗帘、个性化的简约灯具等等。
