设计施工:中博装饰 小区地址:荀庄 工程面积:300㎡ 硬装花费:52万 设计师:郭明

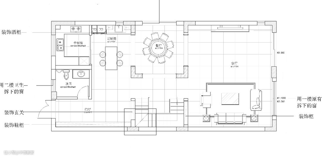
一楼的空间设计师把多余的墙体打通之后,装饰了承重柱。另外一楼的餐厅的,卫生间和客厅窗户,设计师在调整了原有墙体后,用了原来的铝合金窗户重新装回,为客户节省了一些费用。

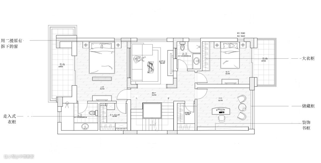
二楼的空间设计师做了一个带走入式衣柜的套房,这个是父母房间,带一个大露台。另外在父母房旁做了一个休闲会客厅,会客厅旁做了个公卫,旁边是个客房。二楼考虑到父母的一些日常杂物会比较多,特意在书房旁设计了一个储物间。收纳空间很强大。

三楼的空间设计师是儿子房间。一半规划成大露台,一半休闲,一半洗衣晾晒。另一半则是一个大套房的形式,因为儿子工作关系,设计师专门作了一个书房,书房和卧室用移门隔开,空间通透还能防止干扰。








玄关处利用实木定制的柜子,可以存放更多的物品。水墨画的设计与青花色瓷器的碰撞是对传统文化的继承,整体空间在细节上凸显了中式的复古气息。






客厅的设计中,设计师采用了水墨风格的电视背景墙,两旁以木质的内嵌墙壁柜增添收纳性能,和中式古典美感,在整体空间沉稳大气的基础上,增添一抹清新的自然感。 新中式的木质沙发配上米色的沙发垫,显得非常大气。 各种装饰的摆件,都表达出传统文化的意境。













餐厅空间分成了两个,一个西餐厅,一个中式圆桌餐厅,西餐厅主要以平时自用为主。靠窗旁配备了备餐台,平时洗水果,烧水用。圆形转盘餐桌搭配树木餐椅,简洁大方,营造出浓郁的复古感。 圆形吊顶明亮大气,搭配一盏中式吊灯,温馨又不失大气。



厨房用了胡桃色的柜子打造,温暖有型,收纳也更加方便。黑色的大型冰箱让爱好美食的主人在这里可以尽情展示自己的厨艺。



主卧这里以轻奢时尚为主,墙面选用白色和灰色来平衡色调,使空间层次感提升。 床上用品以浅咖为主调,打造不失温馨的空间气质;点点亮黄色彩的点缀,却焕发出无限的空间活力。 金属摆件的点缀,既低调又优雅,带来卧室艺术气息,也更好的反映了热爱艺术的生活态度。





二楼正对楼梯口,设计师做了一个敞开式现代会客厅。简约大气。




选用木制家具使空间更为朴实雅致,给人一种舒适宁静的感觉;开放式的置物柜为空间增加层次感,摆放其中的古玩摆件极具东方韵味。




卫生间,灰色大理石搭配黑色洗手台创意十足,丰富空间层次,简洁又大气。


楼梯在挑空的设计中,设计师设计了二层复式,螺旋式的实木楼梯,让整个空间从视觉上更具立体感。



设计师对本案例的一些看法: 1、家具灯具尽量挑选一些简约一些,比较容易打理。 2、色调整体需要统一,不然很难搭配出好的效果。 3、对一些开发商自带的铝合金门窗,能用则用,无需花费大价钱去更换。 4、大衣柜之类的柜体尽量现场木工打,板材可选EO级实木板。环保并且和吊顶不会留缝隙,价格也会比定制的实木柜体要便宜很多。
