1.业主需求: ①常住人口为业主夫妻二人,长辈偶尔过来居住,考虑到以后会有小朋友,首先需要满足三居室的居住需求; ②需要宽敞一点的厨房,预留花池、钢琴区,同时需要一个开放式的书房。 2.设计灵感: ①设计师从与业主沟通中了解到,希望家的设计看起来有质感一点; ②男主人从国外留学回来,对于整体的设计风格希望有中式元素也有西式元素在内; ③女主人计划将来养狗狗跟猫咪; ④从业主的需求出发,空间宽敞且明亮开阔,设计风格灵感来源于开放中的荷花。

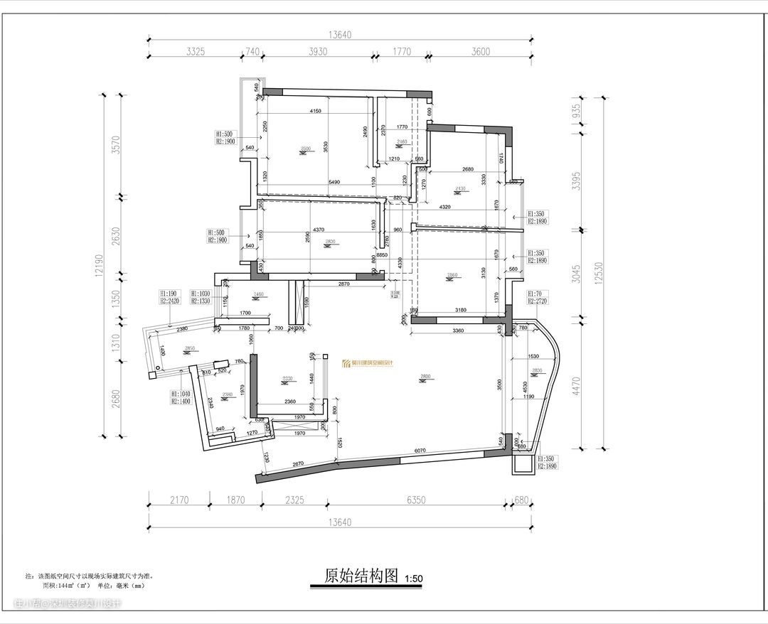
原始结构图存在缺点: ①入户玄关空间异形,无储物柜; ②原始结构次卧过长,空间利用率不足; ③主卧缺少衣帽间。

平面布置图缺点改造: ①入户玄关设计玄关柜与鞋柜的功能结合; ②将次卧与书房位置对调,增加主卧储物空间,使得空间利用率充足,客厅、餐厅和书房三个区互通互透,使得空间感倍增; ③主卧增加衣帽间,增加主卧的储物,同时增加仪式感。

入户即玄关,设计玄关柜,兼鞋柜使用,满足进出门时的储物、换鞋需求。


客厅采用耐脏且富含质感的灰瓷砖通贴,壁灯、吊灯烘托空间氛围,开关时形成鲜明的对比,整个客厅的设计保证了业主喜欢的质感。

客餐厅一体化,开放式的格局,使得整个空间通透明亮,视野也被拓宽。

客厅取消搭配茶几的地毯,减少了空间质感的流失,避免了格格不入的尴尬。

阳台内包,纱帘点缀,温馨且浪漫,营造出来的氛围感非常适合像业主这样的新婚夫妻。

设计温润不失质感的电视机柜,主要作为展示柜使用,储物为辅,壁炉点缀,让幽静的客厅瞬间温暖起来。

中央空调出风口的位置恰到好处,夏日炎炎或是在寒冷的冬日里,调到最适合的温度,业主夫妻二人可以窝在沙发上看电视,一切都刚刚好。

咖色沙发质感满满,呼应有质感的沙发背景,其也是选用了业主喜欢的复古绿,搭配旁边的展示柜,奢华且不失高级。


餐厅背景呼应了沙发背景的设计,复古绿,带一点红,宛如亭亭玉立的荷花,顺应了设计师的设计灵感。

开放性的格局,让客厅、餐厅和厨房更加亲近,在任何一个区域都可以同时看到另外两个区,业主夫妻二人在平时的生活里多了一份互动,保持温柔与浪漫,象征着美好。

餐厅与茶室仅仅一墙之隔,餐厅的背后即是茶室,延续着开放性的一个格局,打破传统的设计,不落俗套。

餐厅极其靠近厨房,方便业主生活上的连贯性,做好饭可将其移至餐桌,就餐就绪。


开放式的厨房连接客厅与餐厅,三者地面灰瓷砖搭配适量木饰家具,形成一体式的结构,同时拓宽了视距。

厨房操作台呈现L型,另外延伸到客厅的一侧延伸式增加一个二层吧台,下方均嵌入储物柜,满足操作面积的同时满足厨房储物。


主卧得益于次卧与书房的互换,增加了主卧的使用空间,配置衣柜、床头柜和梳妆台,还能设计出一个休闲大飘窗,空间利用率大大提升。

业主喜欢绿色,于是给卧室添置了牛油果绿的枕头,搭配淡灰色的小枕头来使用,在吊灯的烘托下,温馨不失格调。


次卧作长辈房来使用,同主卧一样设计了大飘窗,同样材质的床与边几,呼应木饰面地板,让空间更加协调统一。


考虑到业主夫妻未来会有小朋友,于是打造出榻榻米兼上下床结构的儿童房,色彩丰富,造型可爱,与小宝宝的内心世界很贴切。

床头柜的造型可可爱爱,从窗户延伸出一个书桌,将空间有效利用且创意满满。

小桌子、小椅子呼应衣柜的设计,纯净的白与热烈的红相互碰撞,相信可以给到小朋友不一样的惊喜。

主卫

主卫在主卧,设计浴缸加淋浴的方式,窗户的设计有利于主卫的采光同时保留足够的隐私,带给业主不一样的体验。

公卫

公卫干湿分离处理,马桶外置洗手台下,确保整个卫生间的干爽整洁,淋浴区作了防滑设计,暗黑色调的地板仿佛会更加的耐脏。

过道

入户主要有两条过道,一个是玄关通向客厅的过道,一个是客餐厅通向卧室的过道,整体都很宽敞,丝毫不会产生窘迫感。

茶室

开放式的设计,茶室也是相当的宽敞了,可兼书房和钢琴房使用,杂而不乱,满足了业主的需求,和餐厅仅一墙之隔。

衣帽间

衣帽间在主卧,置入衣柜满足衣物的储存需求,暗黑的木质衣柜,豪华、高级又奢侈,体现男女主人的高品位、高审美。


问:设计师在设计过程中的趣闻趣事? 答:①沙发背景跟餐厅背景相呼应,同时透出书房,绿色的结合透露出一点红,宛如荷花;②卧室房门与钢琴区背景对称结合,寓意男女业主相识相知相和。
