本案是280平的排屋别墅,业主是一位单身独立女性,阿里高管,这套房子是她在30岁这个特殊人生阶段送给自己的一份大礼,她对新房的设想更倾向于现代简约风格,希望能够在繁忙的工作之余拥有寻求宁静生活的桃花源。 设计师黄金玲老师针对业主的需求,在对原户型的的每块区域进行了梳理后,使每一寸空间都得到了合理高效的规划,并辅以量声定制的整屋软装方案,最终营造出简洁、质朴和温馨的居家氛围感。



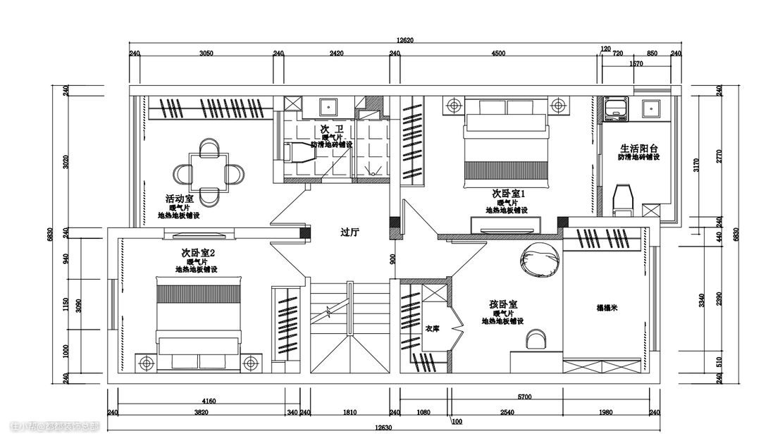
户型分析: 1、厨房面积小,比较狭隘,平时经常会有朋友来轰趴,希望能拥有一个大些的厨房; 2、业主平时比较喜欢一个人带着喝喝茶,练练字,希望在现有空间内规划出一个茶室。



户型改造: 1、将厨房的阳台内包进来,开放式厨房使整体空间更宽敞明亮,增强互动性; 2、主卧阳台内包进来,规划出一个小型休闲区; 3、露台加顶,根据业主的生活习惯,规划出一个禅意十足的茶室。

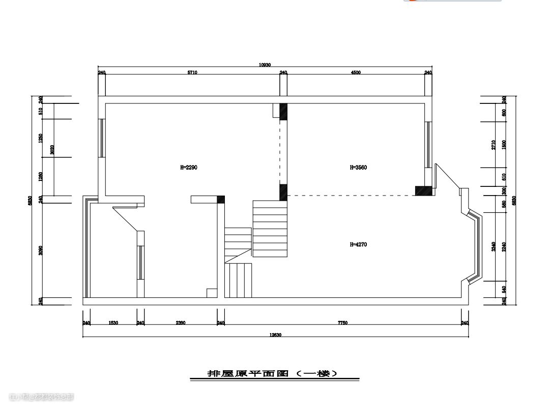
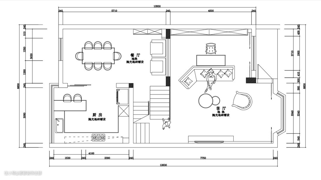
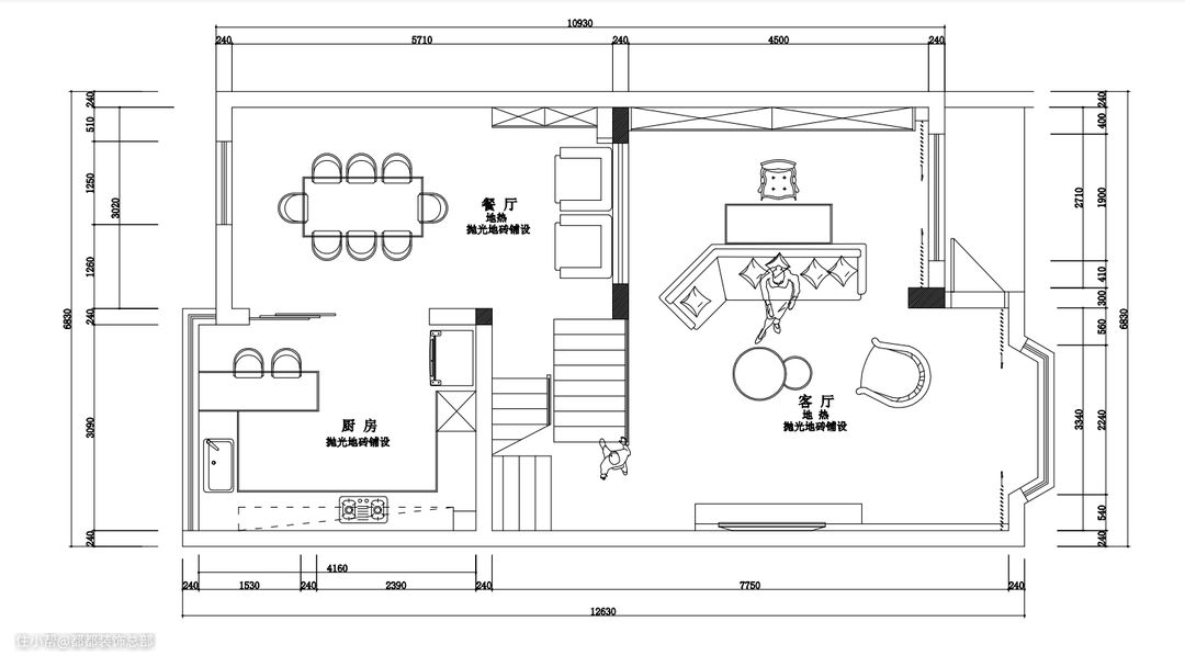
一楼格局比较特殊,是个小跃层。下方是书房和客厅,上方是餐厨,空间与空间之间互不打扰的同时,也实现了连贯和共享。#你家客厅是怎么配色的?

客厅整体以开放式呈现,视线上增加了空间感和通透感,整体风格素雅极简,禅意的原木与现代时尚纹理,相互交错衍生出一种高级感。#客厅装修,你更喜欢哪种风格?


典雅、浪漫,摩登集合于一体,家具的选择大多为意大利品牌,皮质沙发轮廓明显,温暖柔软,配以温柔的獭兔毛保证,幸福的滋味由此而生。#你家客厅是怎么布局的?


原木独特的肌理和温润的质感轻易演绎出温暖、沉稳、文艺的空间氛围;排列整齐的小摆件收藏了业主过去的时光岁月,温暖动人。

轻奢风书桌自带设计感,简约不简单,为空间添加高级感。#晒晒我的新家

木饰面和大理石,温柔与冷冽,纯粹与厚重完美平衡了电视墙的整个空间秩序,给视觉以强烈的反差。#电视一定要放在客厅吗?


将阳台包进客厅,构筑出一个放松的小吧台,透过大面积的落地窗,阳光倾斜而入,用光影构建出温柔而有力的空间氛围。#你最爱哪种装修风格?


实木纹理柔和舒缓,带着漫长岁月的生命力,低饱和度的家具配色,清爽简洁,在这样的氛围中用餐仿佛置身于自然中,辛劳一天的身心得以解放。


酒柜到顶,无把手掩门,酒格、玻璃门搭配通透明亮,内置灯条衬得酒柜更是精致,轻奢感十足。#晒晒你家的餐厅


整体白色开放式厨房,橱柜顶天立地,嵌入各种电器,与白色墙体融合在一起,视觉空间毫无压抑感,岛台的不仅可当做操作台,还可以用餐,简单大气。#你家厨房长啥样?

不论是独自,还是与三五朋友相聚,饮茶听雨都别有趣味。原本空闲的露台,设计师加顶规划成了茶室,柔和色调的墙面有着粗糙质感的肌理,实木茶桌沉稳大气,刚中带柔,整个空间弥漫着佛道的禅意。#藏在家装里的高级感

一堵实木背景墙成为了衣帽间和卧室的隔断,开放式的空间视觉上清爽大气,阳光从两扇落地窗外照进室内,更显得原木暖意十足。#晒晒你家的高颜值家具


简约实木的原木风卧室剔除繁琐设计,用线条勾勒出木质的精致与温馨,呈现出一种返璞归真的优雅生活氛围。


深浅不一,张弛有度的高级灰调从床上蔓延开来,传递出高级宁静的居室氛围,莫兰迪蓝色抱枕、窗帘、沙发穿插其中,给予空间浪漫的生活情调。#如果你也喜欢现代风格


细节处看似漫不经意的装饰,不经意间温暖人心。

阳台包进卧室,面积整体扩大,不论是白日看书,或是夜晚看着窗外万家灯火品酒,独自沉浸在光影律动的世界里放松人心,治愈感油然而生。#晒晒你家的卧室

云想衣裳花想容,实木梳妆台简约百搭,储物格整齐有序,并以简洁的手法,传达出专属的优雅视觉质感。


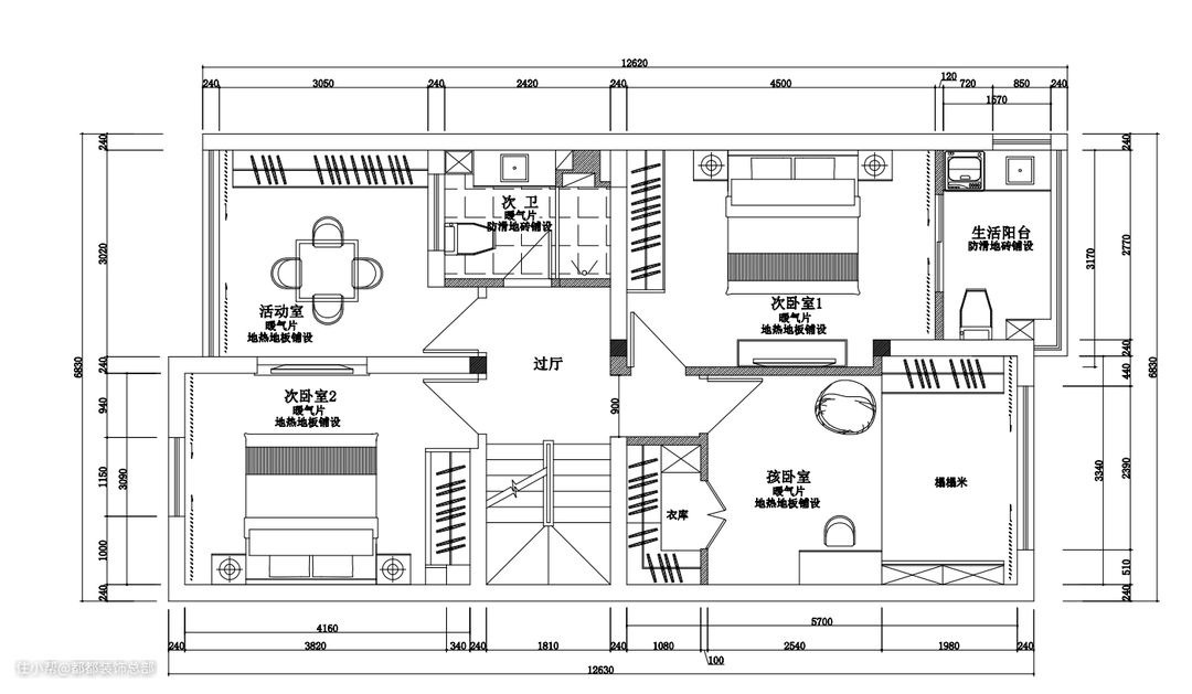
次卧为老人房,整体装修去繁留简,简约淳朴,整体色调选择了让人放松的张蓝色和白灰,清雅素净,再配上沉稳的木质地板,令空间散发出自然之美。#怎么提升房间颜值



虽然业主是单身,但提前预留了儿童房,宽敞明亮,整体色调以蓝色系为主,简单的云朵图案增添了几分童趣,营造出舒适放松的空间氛围。#晒晒你家的儿童房


白色储物柜承包了阳台区域的收纳需求,底部预留空间,嵌进了洗烘机,洗晒功能全部得到实现,一台跑步机让生活习惯更健康。#阳台施工经验大全


卫生间做了干湿分离处理,灰色仿大理石地砖是个性与低调奢华的碰撞,典雅浪漫的浴缸则是享受生活的证明,在狂飙突进的生活里给自己一个放松身心的角落。#晒晒你家的卫生间
问:这套房子最大的难点是什么 这套房子其实整体设计并不难,考虑更多的是功能和储物空间以及采光的问题 问:如何有效控制装修预算? 装修在材料上的耗费是在所难免的,只需要货比三家,装修期间可以在商家活动的时候去购买,如果不急着入住其他相应配套的软装设施也可以多方对比从商家活动中去购买。 问:最满意的设计亮点是什么? 入户玄关客餐厅一体是本案较为出彩的多方,适用性视觉性都非常强 问:阳台如何装修最好? 建议做洗晾晒一体的多功能阳台,还可以做一个储物柜既不会占空间还美观。内包阳台的话,采光最好,就像本案可以放一个跑步机锻炼身体。
