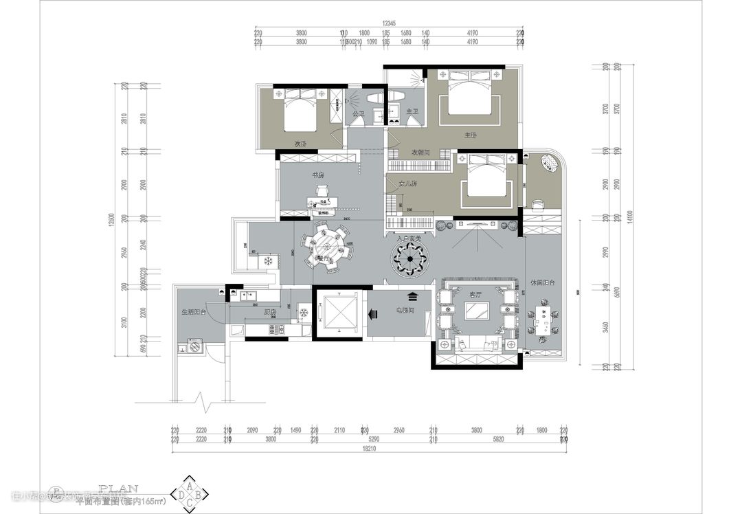
户型解析
大家都知道保利冠江墅在南宁属于高端楼盘了,本案户型是大平层,大平层以其大尺度、高视野、优越的居住体验和生活方式,满足了高端人群对于城市核心居住空间的顶级要求,近年愈发受到追捧。本案业主吴哥宁姐对生活品质追求也比较高,各个空间面积宽阔,居住起来畅快舒适,下面,通过平面布局图一起看看这套户型的设计吧!

客厅
冠江墅客厅与入户大门间隔较远,作为家人活动的中心,回环曲折的动线,更能体现中式传统住宅“藏风纳气”的居住理念。客厅红木家具散发出典雅端庄的气质,传递出书香世家的低调与内涵。



餐厅
餐厅除了这套红木餐桌椅,更吸引人的应是这一圆窗。沿袭先人的审美惯性, 圆形的画面比方形和长方形更为精巧, 更能体现古典美。圆窗圈出一幅幅圆形的画面, 是风景,更是意境。

厨房
二字型厨房布局,合理的利用空间面积。

主卧
简约,直白,随性的中式卧室设计,没有繁杂造型与花花绿绿,少了矫揉造作,多了一份温和惬意。

次卧
素色次卧室设计的出发点是实用舒适,无论是谁留宿都能寻得家的温暖。

儿童房
女儿房拥有超好的视野,靠近窗户设计了阅读区,全房配色既有少女的活泼可爱,又有成熟与时髦的气息,这样的设计无论是小女孩还是大女孩都适用,完全可以陪伴孩子度过很长一段时间。

书房
中式书房散发着古朴典雅的气息,让业主辛苦一天回到家中有一个好的文化氛围,足以洗涤一天的尘埃,让自己得到升华,才能创造更好的生活。

阳台
生活阳台空间的设计以实用为主,设计了洗衣区,文化砖的墙面设计,复古又自然。

