We're sorry but react app doesn't work properly without JavaScript enabled. Please enable it to continue.
访问APP
目录
01 户型解析
02 玄关
03 客厅
04 餐厅
05 厨房
06 主卧
07 次卧
08 卫生间
客厅
餐厅
主卧
次卧
厨房
卫生间
玄关
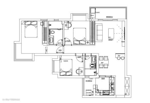
户型解析
124㎡轻奢风,打造质感理想家
千思装饰总店
关注
户型
三居
风格
轻奢风
面积
124㎡
位置
长沙市
方式
全包
预算
16万
户型解析
玄关
客厅
餐厅
厨房
主卧
次卧
卫生间
相关标签
两室一厅装修
三室一厅装修
小户型装修
loft公寓装修
地中海装修风格
混搭风格装修
欧式装修风格
田园风格
小户型30平米装修
小户型60平米装修
110平米三室一厅简装
120平三室两厅简约装修