项目位于深圳市,93m²的日式风,硬装施工+柜子定制花费了15万,房子是标准的三室两厅户型,设计师以原木色+灰白为基调设,设计师是余军余工。 女业主喜欢下厨房,各类的电器都比较齐全,需要有足够的空间来容纳摆放,还需要与客餐厅有互动性的功能,不过原户型的玄关和厨房是连在一起的,采光也很差,希望能改进一下: 设计师是设计把原来的厨房的墙体打掉,设计成开放式厨房,在厨房与客厅之间做了多功能的餐吧台+餐桌; 同时把餐吧台和餐厅链接在一起,延伸空间感,增加与厨房、客厅的互动性。 利用次卧的空间设计了一个单独的办公区域,并且和卧室隔开来,与卧室互相不打扰,并且利用一部分儿童房的空间做了一排柜子来增加储物!


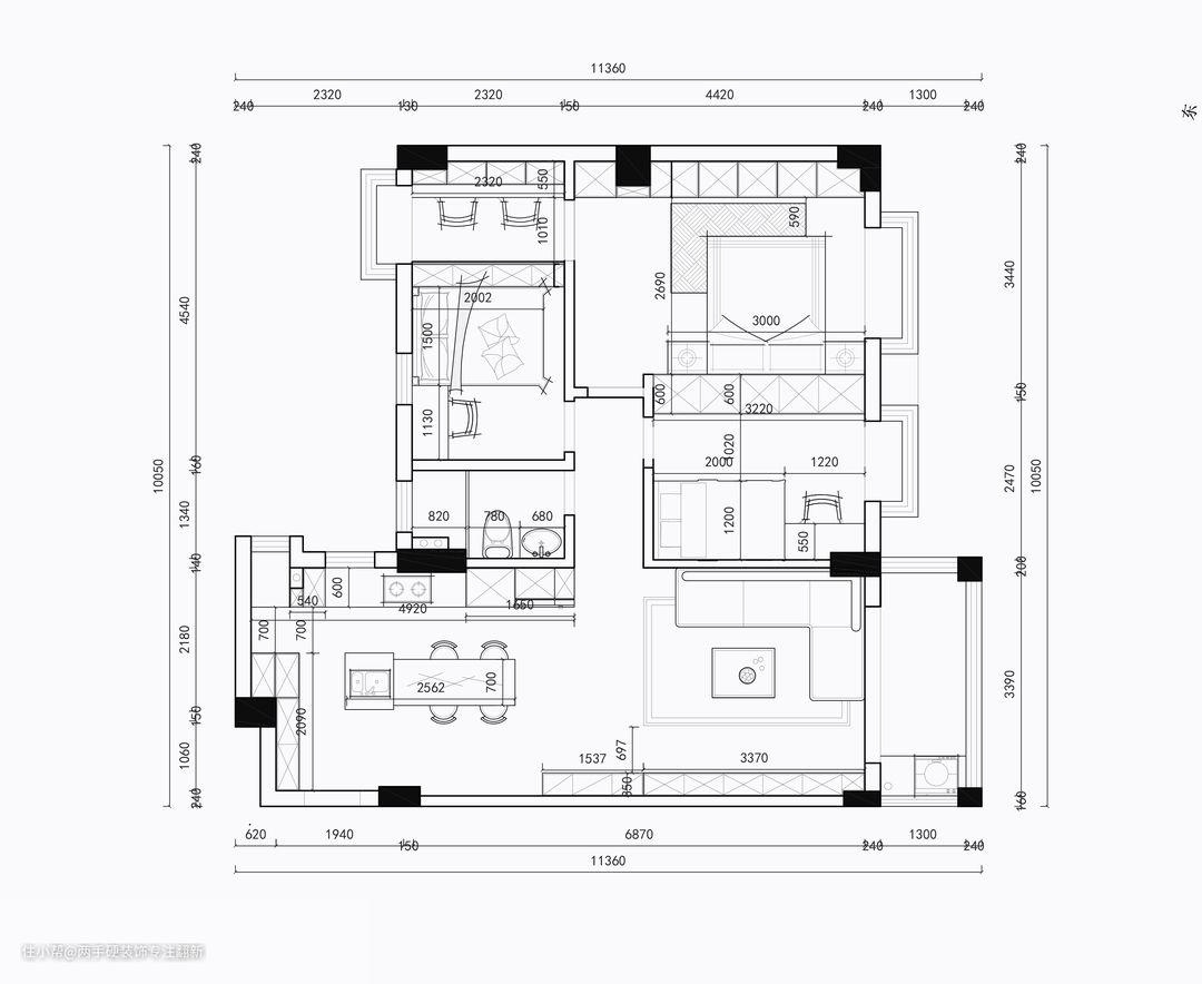
旧户型:①,厨房之前是封闭式的做法,采光通风各方面都很差;业主喜欢下厨房,各类的电器都比较齐全,需要有足够的空间来容纳摆放,还需要与客餐厅有互动性的功能。 ②,业主希望能有个独立的办公空间,能够不互相打扰的就更好了。

改造方案:①,把厨房的墙体打掉,设计成开放式厨房,在厨房与客厅之间做了多功能的餐吧台+餐桌;同时把餐吧台和餐厅链接在一起,延伸空间感,增加与厨房、客厅的互动性。 ②,利用次卧的空间设计了一个单独的办公区域,并且和卧室隔开来,与卧室互相不打扰,并且利用一部分儿童房的空间做了一排柜子来增加储物!


一进来大门的左手边是鞋柜的位置;整体柜身采用白色哑光烤漆的设计,在鞋柜中间镂空了500mm高度,四周设计了一圈木色点缀装饰了柜体的颜色;侧面预留了一个插座,方便平时生活小电器的用电需求;下面留空150mm的高度是设计给平时常换鞋往里面放,在家门口既不会显得凌乱又方便穿换。


客厅是电视背景墙是柜子+投影仪的结合,整体柜身采用白色哑光烤漆的设计,同样是在柜子中间镂空了500mm高度,四周设计了一圈木色点缀装饰了柜体的颜色;侧面预留了一个插座,方便平时生活小电器的用电需求,也有用来放一些喜爱的小摆件!

全屋涂刷统一的白色乳胶漆,木色以偏黄调的细腻橡木,棉、麻、藤、竹的自然元素点缀其中。电视背景墙直接用投影屏幕代替,一家人可以躺在沙发上追剧,享受生活。









