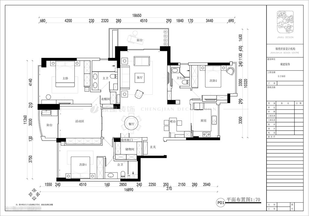
项目地址:东方府邸 项目类型:住宅 项目面积:192㎡ 项目风格:意式轻奢风格


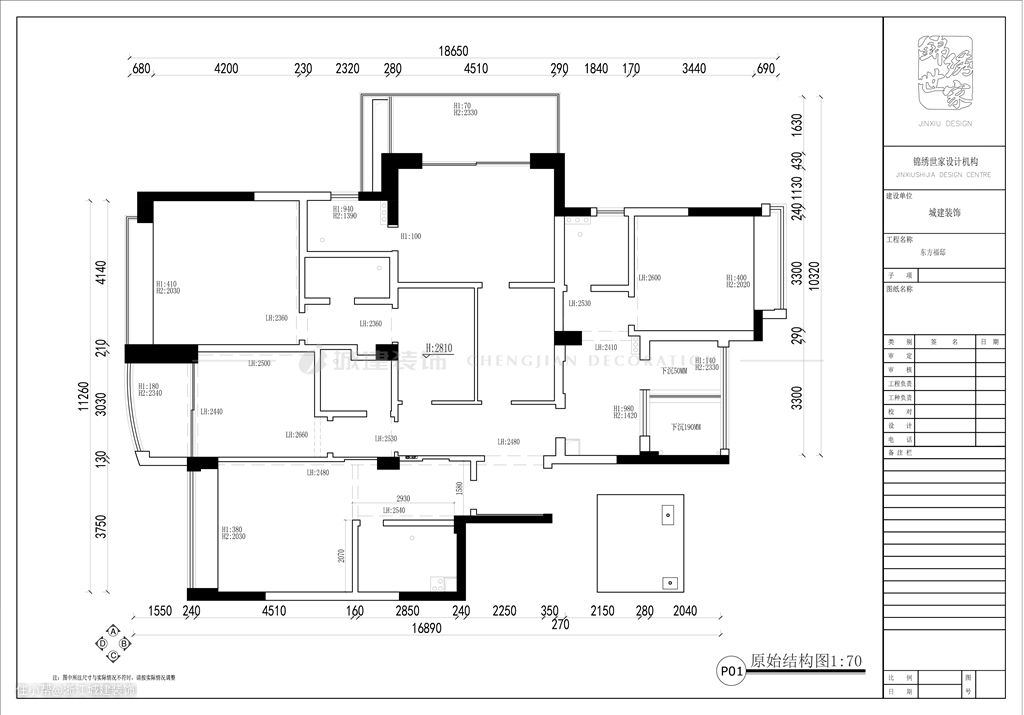
本案原始布局可谓“纵横交错”。 设计师将空间解构,重新排序之后, 厨房、卧室分布在南北两侧, 家的“C位”则变成了东西贯通的客餐厅。
玄关 · The Porch 独立的玄关区,让归家更有仪式感; 往里走,映入眼帘的便是通透敞亮的客餐厅。

客厅 · Living Room 空间整体以灰色为基调,灰色的墙布、灰色的硬包、泛着柔润光泽的木饰面...克制而平和的氛围空间里,亮面石材与金属等元素的相映,让低调的轻奢质感不经意流淌,传递出温暖有品质的生活气息。


布艺与皮质、双人与单人沙发的搭配,让空间内容更丰富,带来不同的放松享受;嵌入式的不锈钢置物柜,储物的同时装饰了墙面,让背景墙面不单一。









开放式西厨区,白色台面吧台与白色墙砖既是空间之间的区隔过渡,也是与客餐厅元素的相互呼应,让整体空间更有层次更和谐。



厨房 · The Kitchen 开放式西厨区,白色台面吧台与白色墙砖既是空间之间的区隔过渡,也是与客餐厅元素的相互呼应,让整体空间更有层次更和谐。

厨房的玻璃移门,补充了西厨区光线的不足。u字形厨柜,满足了日常烹饪操作空间,亮面的灰色,雅致有格调,嵌入式冰箱让空间更统一。




餐厅 · Dining Room 米白色皮质餐椅+白色大理石餐桌,轻奢格调的餐厅里,家人围坐,享受美食,温馨十足;长虹玻璃移门的运用,让南边阳台的光线渗透进来,餐厅空间视觉“呼吸感”更轻盈。




卧室 · The Bedroom 主卧,从墙面到衣柜,是灰色的深浅渐变,空间视觉更有层次;从硬装到软装,都选择极简的线条勾勒,摈弃繁琐,让作为休息的空间更显静谧。



次卧,是比起主卧,更加极简的基调,纯灰色背景,浅灰色的床...衣柜的一抹绿作为跳色,让灰色的空间并不沉闷。




卫生间 · The Bathroom 卫生间以经典的黑白搭配。双台盆设计、超大智能浴室镜,让洗漱成为享受;一字型淋浴房十分宽适,舒缓的水流,洗去一天的疲惫。



