业主 penny 是一位文艺范的网红小姐姐,自己做淘宝店兼当模特。小姐姐在买房前发了三套户型图给我做户型诊断,当时吓到我了,因为我还以为她有三套房子装修,哈哈哈哈~ 耐心分析后屋主决定入手了这套,和原房东砍价成功后的第一时间就毫不犹豫的找到我,做部分改造及软装设计,开始了愉快的合作。

祈福新村的老房其实标准不是很高,风格都很雷同。但是正因为标准不高,很好的一点就是大白墙的简单,想怎么改造都方便。不像有些精装修房,标准高做复杂了反而增加了改造的难度,拆起来都是钱钱钱呀,效果会有所欠缺。所以买老房的同学们,买房之前一定要考虑慎重!! Penny 因为职业的关系喜欢一些小众的东西,房间里有很多东西都是在创意摆件,民宿或者网红店淘回来的。那一些浅尝即止的小确幸都填满了我们的美好生活。整屋奶白色的元素、北欧+INS风,SKR到你了吗?

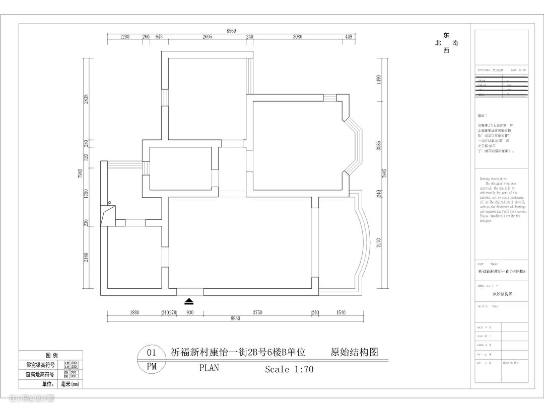
【原始户型图】 该户型很方正,两房一厨一卫一阳台,套内50m²对这年轻小两口来说再合适不过了。但有几点比较突出的就是: 1.入户的位置无处安置的鞋柜; 2.餐厅和厨空间较小,特别是厨房,对爱烹饪的女屋主是致命打击; 3.小孩房的尺寸也相对较小不能同时满足上下床书桌和衣柜。

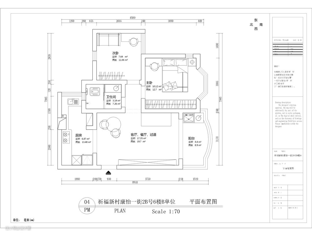
【软装搭配图】 新户型改造亮点: 1.入门左边设计鞋柜电视柜一体式让空间更加整体走行动线流畅; 2.原生活阳台纳入厨房后采光和通风更好,增加了厨房台面和定制柜子,可以放置洗碗机烤箱和大冰箱时,增加收纳空间; 3.客厅的大空间,我们还是决定将客厅、餐厅合为一室,让餐厅面向厨房,也是实现功能上的结合。 4.考虑屋主只有两人世界的生活,所以餐厅没有扩大,这样居住生活更加舒适; 5.因为 INS 风贴近于北欧的简约主义,所以我们决定在简约设计的基础上穿插网红元素(特别体现在书房与餐厅),让家中的照片也可以是很美的风景。

女主说,初看旧房时,是有些迷茫的。朋友提供了太多的设计风格,让女主有些眼花缭乱。最后还是根据自己的喜好,找到了我,精心设计每一处,精心挑选每一件家具。 最后落地后有没有被惊艳到,原本的老房像是被施了魔法,摇身一变,变成了高级大豪宅。光是看这个配色,就足够高级,足够大气上档次啦!

这改造前后对比的客厅,绝对给人视觉上的巨大冲击。拱门搭配嵌入式灯带,其他留白,显得格外宽敞。

微风拂面,撩动卡其色窗帘,也吹动了我的心。全屋清新明亮,一尘不染,住在这样的卧室,没有刺眼的光污染,自然光的投射暖到心窝里,也太舒服了吧。

这是业主家卫生间翻新前后对比,水电是装修最费心的,但是也是一件很神奇的事情,看到一个房子从旧房到毛坯再到完工,就像自己的心血,看着自己的孩子变得越来越好一样。

用柜体隔出来的“迷你门厅”。业主打算在穿鞋椅旁边买个穿衣镜,可以遮挡电箱、从视觉上扩大门厅的面积,站在这里还可以看到整个公共区域和厨房。😁

门厅柜和电视柜结合,顶天立地的设计,门厅柜分为“上下”两个空间。上对开门内部是顶部储物区和上衣柜。下对开门内部是下鞋柜。侧面柜体可悬挂口罩、钥匙及球拍等零散物品。

从客厅沙发方向看向玄光处,进门左侧是厨房,中间是餐厅,右边是客厅,空间布局很是惬意。

客厅全貌,招猫逗狗,追剧,看书,听音乐。晚间大部分时间都是在客厅度过的。为了有足够大的活动区域,客厅中间没有选择茶几,取而代之的小边几上面可以放各种必需品,里面还可以收纳电视空调机顶盒遥控器、手机电源线和kindle。中央空间藏在门厅里,外面是白烤漆铝合金百叶窗,制热、制冷都已使用,效果良好。

本案电视墙更准确的名字应该是“客厅电器柜”。看得见的电视机、空调,看不见的光猫、路由器、高清播放器、Dyson DC52,以及相应的空调管路、线路和电源都被规划在这个柜子里。符合唐姐姐“完美设计”的原则,也满足了屋主“风格极简、容易打扫、使用方便”的要求。多盏射灯+灯带为客厅提供了充足的夜间照明,谁说客厅一定要装主灯呢?

我和屋主提了,不建议电视柜下面放小物件,不然扫地机器人会内卷,然后停止运转。

躺在沙发看着电视,窗边的微风吹进我心里。

为了统一纯白极简带来的视觉感,不破坏风格的统一,壁画、抱枕直接去掉,连窗帘也是纯白系,让空间充满温度。

北欧复古风沙发,沙发套选用的是进口羊羔绒面料,布质柔韧细腻,坐上去真的很舒服,就是手欠的人儿喜欢把小颗粒扣下来。 沙发旁放北欧风的猴子创意托盘,可边看电视边吃水果。

站在阳台看向客餐厅的角度。整屋以白色乳胶漆为基础色,选择清纯的奶白砖,作为规整形体的构图,让整个空间看起来虽然简洁但不失大气,彰显小仙女的独有气质。对电视机的位置也是进行了框定,让人把注意力放在中心位置。

餐厅与客厅相连,白色墙面与蓝色的餐桌相搭配,营造出一种简单的设计感。#餐厅 #餐桌 #餐椅 #客厅

餐桌同样是现代的大理石艺术圆餐桌,座椅是符合人体工学的原木藤编椅,防滑还耐脏,还带有一定的复古风味。


碗盘也是精挑细选的北欧复古风~

猫咪也屋主家的重要成员,所以设计时也替业主想到爱宠的小家营造,所以猫的餐厅和屋主的餐厅在同一个地方,让它更好地陪伴主人左右~

清晨起来能在这样的环境,再美美的吃上一份早餐,优雅又美丽可能会让屋主的朋友们羡慕到si吧。

站在厨房的门口,这是整个设计方案耗时最长的空间。业主想要一个可以每天做饭,塞得下所有小厨电、餐具、净水器、蒸烤一体机、洗碗机、冰箱的厨房。经过无数次的讨论、修改、到实体店亲测*N,最终打造了一个占整个装修设计花费1/3。 方太的油烟机用了两个月了,屋主感觉非常的棒。和她老家用的旧油烟机相比,还是这款给力,吸力很大,排烟效果特别好,还静音。

屋主的抽烟机是方太黑旋风,侧吸的,确实超级好用。带业主去他家附近的专柜找侧吸的,屋主家是半开放式厨房,平时都屋主自己做菜,用的还是油烟很大的传统铁锅,并且喜欢用猛火,用下来的感受是连头皮头发都不会有油烟味。 敲黑板:严格遵守产品说明,按与灶台要求的距离安装,对油烟机的功能发挥也很重要。很多人会说侧吸不适合中式爆炒,我打黑人问号!我妈家是个伊莱克斯的中式油烟机,顶吸的,说什么更符合中式炒菜需求,我妈炒菜的时候关上厨房门,客厅一样能闻到油烟味,害我每次都怀疑她没开油烟机! 🏷油烟机+燃气灶品牌:方太 🔖型号:JCD7 📏尺寸:900x405x435mm 🛒购买渠道:京东

在橱柜厂的质疑下,结合业主亲测使用经验和我的设计建议: ① 我坚定地做了90cm高的地柜,业主上一个家80cm高操作台,用久了腰酸脖子疼; ② 烤箱灶90cm高,没有炒菜区比操作区还高的道理; ③ 提前选购好蒸烤一体机,再设计厨柜的尺寸。 实际使用下来,这个高度非常适合业主。 另外,台面进深62cm,没有做挡水条和下沿。美观而且实用。 建议:厨房设计一块,如果每天下厨的住友,一定要根据自己的情况去设计和定制,不然受苦的是你。

✨搭配油烟机配套购买的燃气灶台,使用两个月了,屋主的反馈总体上还是比较好用的。 🔥功能简单:非常经典的两眼灶台,一边炒菜一边煮汤美滋滋的,轻易打火,火势均匀,普通家庭够用了。 👩🏻🍳颜值超高:和油烟机同步的黑色玻璃面板,同样的易清洁保养,超级喜欢它的条形旋钮设计,使得手上油滋滋也可以轻易旋钮。 🔥火力超足:同样满足江西人重油重辣的大火爆炒,游刃有余。 👩🏻🍳清洁方便:玻璃面板就是溢汤无忧,支架及底盘则可以自由拆卸随时清洗,日常用花王泡沫喷喷,深度清洁则换氧净热水浸泡,就可以长期维持光鲜亮丽。 🏷油烟机+燃气灶品牌:方太 🔖型号:FD21GE 📏尺寸:710x410x135mm 🛒购买渠道:京东

不想让砖缝看起来生硬,没有选择传统的奶白砖搭金色缝,而是用了白色,很清新自然。贴小白砖的住友也可以做更多的填缝颜色尝试。


可抽拉水龙头和大单槽台下洗菜盆是我非常满意的单品。操作台墙面用的灰板漆,使用体会是防水耐擦,极具美感,可以作为瓷砖之外另一个不错的选择。


女主人将最爱的白色布满整屋,连卧室也不放过,没有花里胡哨的颜色,白色主卧背景墙,也是男主人小心呵护女主人的决心。白天职场打拼,回到家就是有王子陪伴的公主。#白色 #床头背景墙

无主灯设计,天花设计不在于有多华丽,而在于设计的细节处理,原本设计是割一个双眼皮吊顶+悬浮式吊顶+洗墙灯带,但屋主亲测后觉得像上图这样的自然光才是最柔和的,而且夜晚不需要太亮,私密感性的空间感最为重要。#无主灯 #悬浮吊顶 #双眼皮吊顶

飘窗处没有定制柜子,让飘窗空间最大化享受。日常摆放自己喜欢的书籍,闲暇之余坐在飘窗上看看书,做做白日梦。

卧室衣柜的推拉门有上轨道固定,所以做了通顶。

在床上满脸疑惑的猫仔,因为第一次见到摄影师,所以很谨慎。卧室面积不大,基本满足睡觉+储物的功能。夏天一直盖绗缝被,透气,舒适,柔软。猫毛什么的,用毛刷除毛器很容易刷干净。

宜家的维特索笔记本电脑桌~

宜家的魁思伯床头柜入手时很喜欢的,就是床头灯的线太破坏整个画面了~

书房其实已经变成了集储藏收纳、休息、冥想、健身等多种功能为一体的空间。


屋主入手的健身器材还在路上,这是撸铁狂魔的独立空间。

岩板定制的洗手台是真的很好用,整体性好,不渗色,非常好打理。 图片左边白色的是加热毛巾架,绝对是居家好帮手,谁装谁知道。装修的时候,别忘记预留好电源线。 600*1200瓷砖竖铺,两片到顶,缝少,整洁大气,强烈推荐。#岩板 #加热毛巾架 #长虹玻璃 #卫生间墙砖

干湿分离,蹲坑+淋浴房与洗手台隔开,两处都预留走水槽,冲凉不踩水里。淋浴间的壁龛设计,解决了很多家庭放置沐浴露与洗发水的历史遗留问题。而且还很好看。 悬浮式洗手台简直解释女主人的福音,以后再也没有卫生死角了,也不存在洗手台因拖地长期接触水渍的原因柜门胶发霉了。

作为一个4平米的小卫生间,三门镜柜是主要的储物空间,把厚度做到和马桶假墙一样的23cm,比普通镜柜更加实用。高1米的镜子对扩大空间感也非常有帮助。

洗手台俯视全貌图,内嵌式设计,让水不会溅出来。😁

北欧老虎的地毯造型给客厅增添一抹潮流元素。

科沃斯的扫地机器人

自动翻页的钟表,超级有趣

客厅的拱形门洞很好的呼应了圆形的桌子,门洞的造型是原建筑造型,设计之初想把门洞改造得不要那么圆润,但为了最大限度的保留采光面,没做调整的门洞反而显得特别。

从客餐厅看向书房的方向~

从房间看向客餐厅的方向~

主材清单

软装清单
